Prodej ubytování, Karlovy Vary, Zámecký vrch, 934 m2

Zámecký vrch, Karlovy Vary

44 000 000 Kč
/za nemovitost
Hypotéka od 196 653 Kč /měs. Chci hypotéku

Parametry nemovitosti

AdresaZámecký vrch, Karlovy Vary
StavbaCihlová
Stav objektuPřed rekonstrukcí
Užitná plocha934 m2

Origo partneři v Karlových Varech

Pojištění a finance

Popis

Jedinečný investiční projekt – budovu bývalého hotelu, která se nachází na prestižní ulici Zámecký Vrch v samém srdci lázeňské zóny Karlových Varů. Tato nemovitost je ideální pro rekonstrukci a přeměnu na butikový hotel, což zajistí vysokou návratnost a prestiž.
Charakteristika nemovitosti:
• Poloha: Budova se nachází na jedné z nejmalebnějších ulic Karlových Varů, v bezprostřední blízkosti slavných kolonád s minerálními prameny. To zajišťuje nemovitosti vysoký turistický a investiční potenciál.
• Stav: Byly již provedeny veškeré nezbytné statické práce na zpevnění nosných konstrukcí, což je jedna z nejnáročnějších a nejdražších fází. To výrazně zkracuje lhůty a náklady na dokončení projektu. Budova je připravena k celkové rekonstrukci.
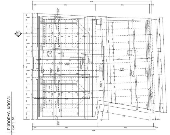
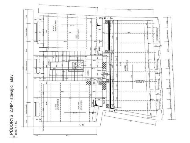
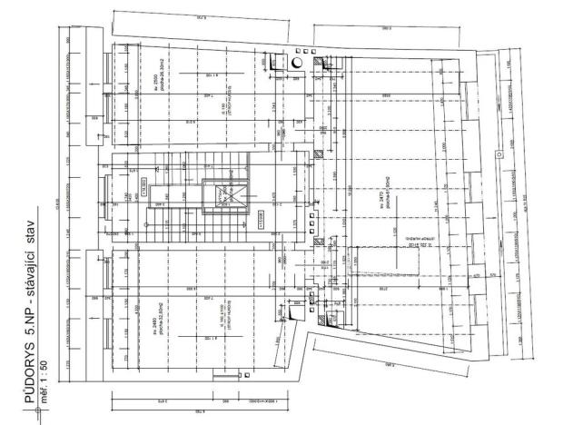
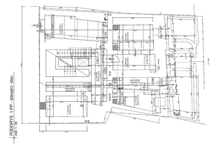
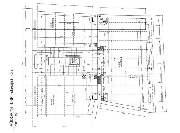
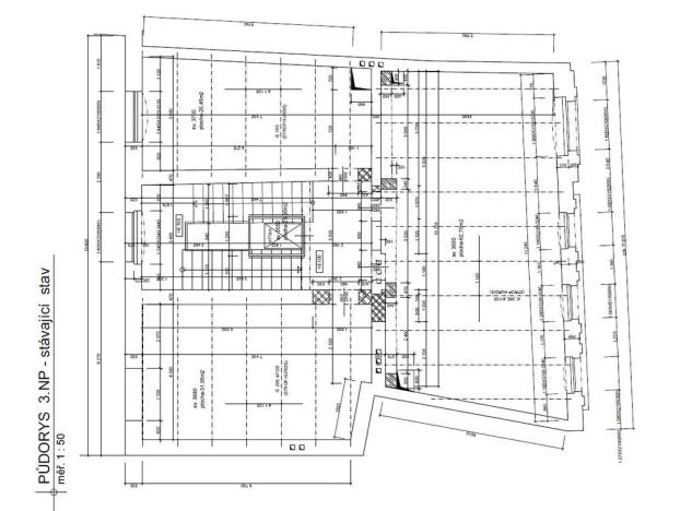
• Potenciál: Projektová dokumentace a fotografie názorně ukazují možnosti vytvoření moderní a funkční nemovitosti. Půdorysy pater umožňují navrhnout prostorné apartmány nebo pokoje s vysokými stropy a podkroví nabízí perspektivu pro vytvoření exkluzivního penthouse nebo dalších prostor.
• Dostupná dokumentace: K nemovitosti je přiložena architektonická dokumentace a povolení, které potvrzují připravenost budovy k rekonstrukci a poskytují úplný přehled o jejích konstrukčních vlastnostech.
Výhody pro investora:
• Připravenost k výstavbě: Provedené statické práce umožňují okamžitě začít s dokončovacími pracemi a vnitřním uspořádáním.
• Vysoká návratnost: Jedinečná poloha a status luxusního lázeňského města zajišťují vysokou poptávku po bydlení a hotelových službách.
• Investice do historie: Koupě nemovitosti v historickém centru Karlových Varů je nejen výhodnou investicí, ale také příležitostí stát se součástí bohatého kulturního dědictví.
Tato nemovitost je vzácnou příležitostí k získání budovy s již provedenými přípravnými pracemi v jedné z nejvyhledávanějších lokalit České republiky.

Makléř

Máte zájem o tuto nemovistost?

Tímto, v souladu s nařízením Evropského parlamentu a Rady (EU) 2016/679, v platném znění, prohlašuji, že mi je alespoň 16 let a uděluji tak svůj souhlas se zpracováním zadaných údajů (jméno, telefon, e-mail, ip adresa) společnosti B3 Technology, s.r.o., IČ: 07330600, se sídlem Novostavby 126/23, 435 11 Lom (správce dat), za účelem předání dotazu z tohoto formuláře Vámi vybranému inzerentovi a zpětného kontaktování mé osoby. Osobní údaje bude správce zpracovávat manuálně i automaticky přímo prostřednictvím svých zaměstnanců. Informace předané tímto formulářem budou uloženy v databázi správce maximálně po dobu 10 let. Odvolání souhlasu s uložením a zpracováním poskytnutých dat lze e-mailem na info@origo-reality.cz. V případě podezření na neoprávněné použití Vámi poskytnutých údajů máte právo předat podnět k šetření Úřadu pro ochranu osobních údajů. Více informací
Chystáte se prodat nemovitost?
Pomůžeme Vám!
Theleadway banner

Přihlášení k odběru

Nenechte si ujít nejnovější nabídky prodeje ubytování v Karlových Varech.