Prodej bytu 3+kk, Praha - Hlubočepy, Hugo Haase, 78 m2 (ID: 2038030)

Hugo Haase, Praha 5, Hlubočepy

3 990 000 Kč
/za nemovitost
+ anuita, včetně právního servisu
Hypotéka od 17 833 Kč /měs. Chci hypotéku

Parametry bytu

AdresaHugo Haase, Praha 5, Hlubočepy
ID1263
StavbaCihlová
Stav objektuProjekt
Patro5. z 6
VybavenoNe
Typ objektuPatrový
VlastnictvíDružstevní
Užitná plocha78 m2
Podlahová plocha78 m2
OdpadVeřejná kanalizace
KomunikaceAsfaltová
DopravaMHD
Balkon
Výtah
Bezbarierový přístup
Převod do OV
Parkování

Origo partneři v Praze 5

Stěhovací služby

Výkup a prodej starého nábytku

Popis

Nabízíme postoupení nového družstevního bytu 3+kk v projektu Kaskády Barrandov (dům N) úspěšného developera FINEP v ulici U Náhonu, Praha 5 - Hlubočepy.
Předpoklad kolaudace 05/2026.

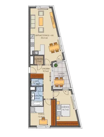
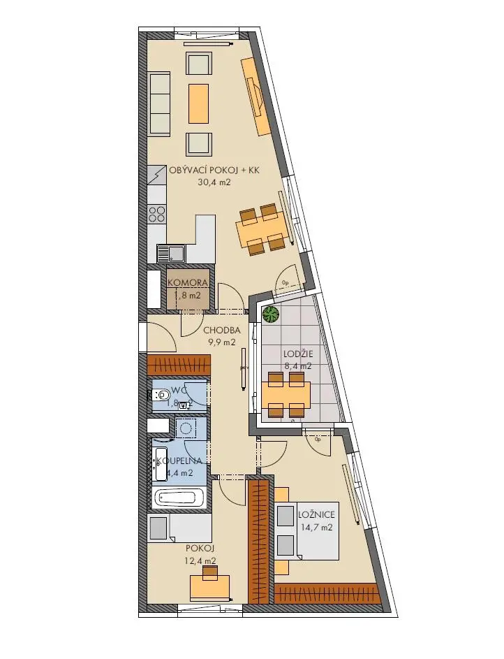
Bytová jednotka 3+kk o velikosti 78,1 m2 + lodžie 8,4 m2 se nachází v 5. nadzemním podlaží (z celkových šesti) s orientací na sever, východ a západ.

Dispozice bytu: obývací pokoj s kuchyňským koutem, ložnice, pokoj, koupelna, samostatné WC, chodba, komora, lodžie.

Cena za postoupení bytu: 3 990 000 Kč (zaplatíte nyní z vlastních zdrojů)
Doplatek anuity za byt: 7 900 763 Kč (po kolaudaci a převzetí bytu)

Nepotřebujete hypotéku, žádné schvalování bankou, bez dokazování příjmu.

Anuita se splácí až po převzetí dokončeného bytu (předpoklad kolaudace 05/2026). Nyní zaplatíte pouze cenu za postoupení.
Garážové stání a sklep za příplatek.

Aktuálně měsíční splátka anuity bytu činí 42 761 Kč.
Developer bude před dokončením projektu jednat s financující bankou o snížení úrokových sazeb na základě aktuální situace na trhu.

V době výstavby nelze převést do osobního vlastnictví.

Za 15 minut chůze se dostanete do Prokopského údolí.
Tramvajové linky ze zastávky Náměstí Olgy Scheinpflugové jezdí 13 minut na Smíchovské nádraží (metro B, vlaková spojení) či na Národní divadlo.
Plavecký komplex Aquadream.
Skvělá občanská vybavenost - potraviny, kavárny, základní a mateřská škola.

Makléř

Máte zájem o tento byt?

Tímto, v souladu s nařízením Evropského parlamentu a Rady (EU) 2016/679, v platném znění, prohlašuji, že mi je alespoň 16 let a uděluji tak svůj souhlas se zpracováním zadaných údajů (jméno, telefon, e-mail, ip adresa) společnosti B3 Technology, s.r.o., IČ: 07330600, se sídlem Novostavby 126/23, 435 11 Lom (správce dat), za účelem předání dotazu z tohoto formuláře Vámi vybranému inzerentovi a zpětného kontaktování mé osoby. Osobní údaje bude správce zpracovávat manuálně i automaticky přímo prostřednictvím svých zaměstnanců. Informace předané tímto formulářem budou uloženy v databázi správce maximálně po dobu 10 let. Odvolání souhlasu s uložením a zpracováním poskytnutých dat lze e-mailem na info@origo-reality.cz. V případě podezření na neoprávněné použití Vámi poskytnutých údajů máte právo předat podnět k šetření Úřadu pro ochranu osobních údajů. Více informací
Chystáte se prodat nemovitost?
Pomůžeme Vám!

Přihlášení k odběru

Nenechte si ujít nejnovější nabídky prodeje bytů 3+kk v Praze 5.