Prodej bytu 3+1, Praha - Stodůlky, Svitákova, 73 m2

Svitákova, Praha 5, Stodůlky

3 106 674 Kč
/za nemovitost
+ anuita, včetně právního servisu
Hypotéka od 13 885 Kč /měs. Chci hypotéku

Parametry bytu

AdresaSvitákova, Praha 5, Stodůlky
ID1292
StavbaCihlová
Stav objektuNovostavba
Patro4. z 8
VybavenoNe
Typ objektuPatrový
VlastnictvíDružstevní
Užitná plocha73 m2
Podlahová plocha73 m2
Třída energetické náročnostiB - Velmi úsporná
OdpadVeřejná kanalizace
TopeníÚstřední dálkové
KomunikaceAsfaltová
TelekomunikaceInternet
VodaVodovod
Garáž
Lodžie
Výtah
Bezbarierový přístup
Převod do OV
Parkování

Origo partneři v Praze 5

Stěhovací služby

Výkup a prodej starého nábytku

Popis

Nabízíme postoupení nového družstevního bytu 3+1 v projektu Britská čtvrť (dům C1) úspěšného developera FINEP v blízkosti ulice Bessemerova, Praha - Stodůlky.

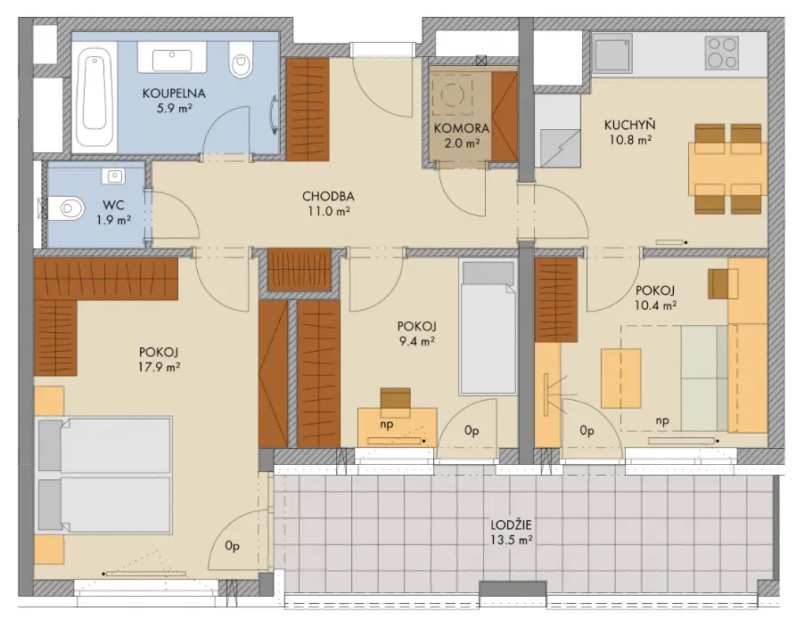
Bytová jednotka 3+1 o velikosti 73,6 m2 + lodžie 13,5 m2 se nachází ve 4. nadzemním podlaží (z celkových osmi) s orientací na jih.

Dispozice bytu: kuchyň, pokoj 1, pokoj 2, pokoj 3, koupelna, WC, chodba, komora, lodžie.

Cena za postoupení bytu: 3 106 674 Kč (zaplatíte nyní z vlastních zdrojů)
Doplatek anuity za byt: 9 861 358 (po kolaudaci a převzetí bytu)
Celková cena bytu = cena za postoupení plus doplatek anuity.

Nepotřebujete hypotéku, žádné schvalování bankou, bez dokazování příjmu, bez věkového omezení.

Anuita se splácí až po převzetí dokončeného bytu (předpoklad kolaudace 12/2027). Nyní zaplatíte pouze cenu za postoupení.
Garážové stání a sklep příslušící k bytu za příplatek.

Aktuálně měsíční splátka anuity bytu činí 52 387 Kč.

V době výstavby nelze převést do osobního vlastnictví.

Přímo na náměstí Britské čtvrti je umístěna linka metra B - Stodůlky.
Výborná dostupnost do centra města i na letiště Ruzyně.
Nákupní centrum Avion - Tesco. IKEA, Jysk.
Globus, Makro, Baumax, metropole Zličín.

Kupující nad rámec výše uvedené ceny za postoupení družstevního podílu hradí vstupní poplatek do družstva 15 000 Kč a poplatek za převod družstevního podílu 50 000 Kč.

Makléř

Máte zájem o tento byt?

Tímto, v souladu s nařízením Evropského parlamentu a Rady (EU) 2016/679, v platném znění, prohlašuji, že mi je alespoň 16 let a uděluji tak svůj souhlas se zpracováním zadaných údajů (jméno, telefon, e-mail, ip adresa) společnosti B3 Technology, s.r.o., IČ: 07330600, se sídlem Novostavby 126/23, 435 11 Lom (správce dat), za účelem předání dotazu z tohoto formuláře Vámi vybranému inzerentovi a zpětného kontaktování mé osoby. Osobní údaje bude správce zpracovávat manuálně i automaticky přímo prostřednictvím svých zaměstnanců. Informace předané tímto formulářem budou uloženy v databázi správce maximálně po dobu 10 let. Odvolání souhlasu s uložením a zpracováním poskytnutých dat lze e-mailem na info@origo-reality.cz. V případě podezření na neoprávněné použití Vámi poskytnutých údajů máte právo předat podnět k šetření Úřadu pro ochranu osobních údajů. Více informací
Chystáte se prodat nemovitost?
Pomůžeme Vám!

Přihlášení k odběru

Nenechte si ujít nejnovější nabídky prodeje bytů 3+1 v Praze 5.