Prodej bytu 3+kk, Praha - Chodov, Ke Kateřinkám, 68 m2

Ke Kateřinkám, Praha, Chodov

9 190 000 Kč
/za nemovitost
Hypotéka od 41 074 Kč /měs. Chci hypotéku

Parametry bytu

AdresaKe Kateřinkám, Praha, Chodov
IDMO
StavbaPanelová
Stav objektuVelmi dobrý
Patro8.
VlastnictvíOsobní
Užitná plocha68 m2
Třída energetické náročnostiC - Úsporná
Sklep
Lodžie

Origo partneři v Praze 4

Stěhovací služby

Výkup a prodej starého nábytku

Popis

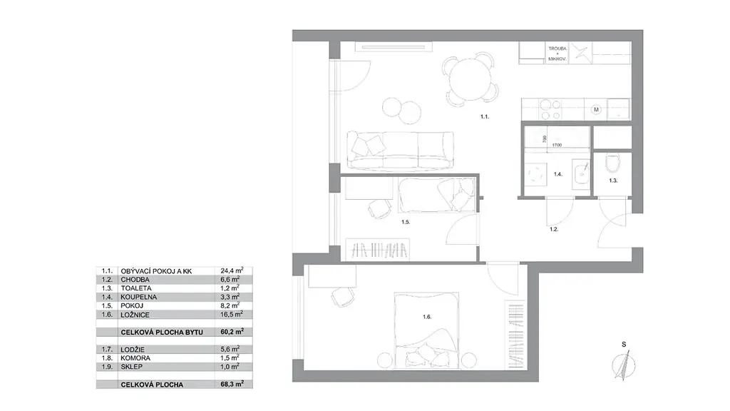
Nabízím k prodeji krásný byt v osobním vlastnictví o dispozici 3+kk a celkové ploše 68 m² s lodžií v blízkosti metra Opatov.
Byt se nachází v 8. patře domu s výtahem, v lokalitě s výbornou dostupností a kompletní občanskou vybaveností.


Byt prošel kvalitní a nákladnou rekonstrukcí ve vysokém standardu.
K bytu navíc náleží i praktická komora na chodbě a sklep v přízemí domu.


Dispozice nabízí prostornou vstupní chodbu, koupelnu s
vanou, samostatné WC, dvě ložnice a praktický obývací pokoj s kuchyní vyrobenou na míru. Z obývací části je přímý vstup na prostornou lodžii. Uvedená podlahová plocha v přiloženém půdorysu má pouze orientační charakter.


Kuchyňská linka je vybavena spotřebiči (indukční varná deska, trouba, mikrovlnná trouba, myčka).

V kompletní rekonstrukci ve standardu novostavby je zahrnuto:
- nová elektroinstalace
- kompletní úprava povrchů stěn
- nová vinylová podlaha
- kvalitní prémiové obklady
- nová sanita (vana, sprcha, umyvadlo, skříňka a toaleta)
- nové osvětlení bytu
- nová kuchyňská linka vyrobena na míru se spotřebiči

Dům má dobře fungující SVJ, které se o nemovitost dlouhodobě a pečlivě stará.

Rád Vám byt osobně představím, abyste se mohli přesvědčit o jeho kvalitě i praktičnosti této adresy.

Makléř

Máte zájem o tento byt?

Tímto, v souladu s nařízením Evropského parlamentu a Rady (EU) 2016/679, v platném znění, prohlašuji, že mi je alespoň 16 let a uděluji tak svůj souhlas se zpracováním zadaných údajů (jméno, telefon, e-mail, ip adresa) společnosti B3 Technology, s.r.o., IČ: 07330600, se sídlem Novostavby 126/23, 435 11 Lom (správce dat), za účelem předání dotazu z tohoto formuláře Vámi vybranému inzerentovi a zpětného kontaktování mé osoby. Osobní údaje bude správce zpracovávat manuálně i automaticky přímo prostřednictvím svých zaměstnanců. Informace předané tímto formulářem budou uloženy v databázi správce maximálně po dobu 10 let. Odvolání souhlasu s uložením a zpracováním poskytnutých dat lze e-mailem na info@origo-reality.cz. V případě podezření na neoprávněné použití Vámi poskytnutých údajů máte právo předat podnět k šetření Úřadu pro ochranu osobních údajů. Více informací
Chystáte se prodat nemovitost?
Pomůžeme Vám!

Přihlášení k odběru

Nenechte si ujít nejnovější nabídky prodeje bytů 3+kk v Praze 4.