Pronájem kanceláře, Plzeň, Pražská, 162 m2 (ID: 2019661)

Pražská, Plzeň, Vnitřní Město

14 700 Kč
/za měsíc
Energie a služby: 4.000 Kč (EE, topení, voda, úklid společných prostor a odvoz odpadků). + KAUCE 20.000, PROVIZE 1 NÁJEMNÉ
Získejte výhodnou HYPOTÉKU Chci hypotéku

Parametry nemovitosti

AdresaPražská, Plzeň, Vnitřní Město
StavbaCihlová
Stav objektuVelmi dobrý
Patro4. z 4
Lokalita objektuCentrum obce
Užitná plocha162 m2
Podlahová plocha106 m2
Třída energetické náročnostiG - Mimořádně nehospodárná
OdpadČOV pro celý objekt
TopeníLokální plynové
KomunikaceDlážděná
DopravaVlak, Dálnice, Silnice, MHD, Autobus
VodaVodovod
Zdroj topeníPlynový kondenzační kotel
Výtah

Origo partneři v Plzni

Stěhovací služby

Pojištění a finance

Popis

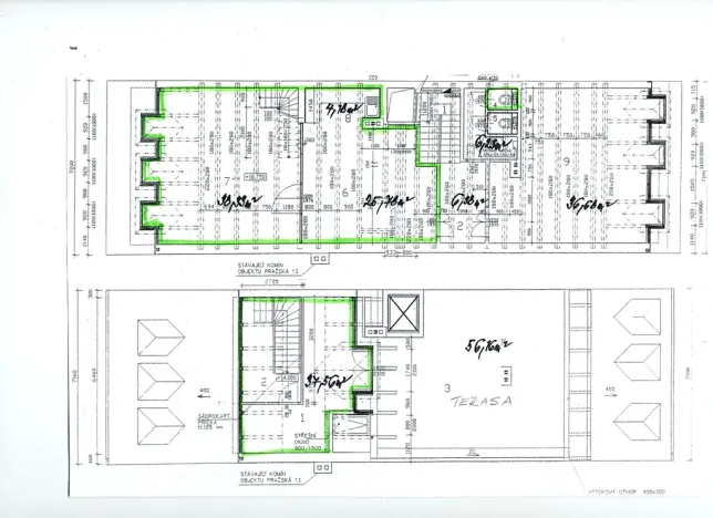
Nabízíme k pronájmu velmi reprezentativní luxusní nebytové prostory přímo v centru Plzně, Pražská ul. Nachází se v renesančním domě u nám. Republiky v podkroví ve 3.patře. Jedná se o 2 kanceláře s mezonetem o celk. výměře 102 m2 + terasa, vlastní kuchyňka a WC. Z předsíňky se vchází do místnosti o rozloze 25,78 m2 (recepce, sekretariát), z té je vstup do kuchyňky (4,18 m2) a prosklenými dveřmi se vejde do rozlehlé místnosti o vel. 38,33 m2, ze které vede dřevěné schodiště do mezonetového prostoru o vel. 37,56 m2, z něhož přístup na terasu o vel. 56 m2. Samostatná toaleta se nachází na vstupní chodbě. Vše vyznačeno na přiloženém nákresu - zeleně označené plochy. Nábytek lze v případě zájmu odstranit. Prostory mají vlastní zabezpečovací zařízení. Nájemné: 14.700 Kč. Energie a služby: 4.000 Kč (EE, topení, voda, úklid společných prostor a odvoz odpadků). Kauce 20.000 Kč. Provize 1 nájemné. Volné ihned.

Makléř

Máte zájem o tuto nemovistost?

Tímto, v souladu s nařízením Evropského parlamentu a Rady (EU) 2016/679, v platném znění, prohlašuji, že mi je alespoň 16 let a uděluji tak svůj souhlas se zpracováním zadaných údajů (jméno, telefon, e-mail, ip adresa) společnosti B3 Technology, s.r.o., IČ: 07330600, se sídlem Novostavby 126/23, 435 11 Lom (správce dat), za účelem předání dotazu z tohoto formuláře Vámi vybranému inzerentovi a zpětného kontaktování mé osoby. Osobní údaje bude správce zpracovávat manuálně i automaticky přímo prostřednictvím svých zaměstnanců. Informace předané tímto formulářem budou uloženy v databázi správce maximálně po dobu 10 let. Odvolání souhlasu s uložením a zpracováním poskytnutých dat lze e-mailem na info@origo-reality.cz. V případě podezření na neoprávněné použití Vámi poskytnutých údajů máte právo předat podnět k šetření Úřadu pro ochranu osobních údajů. Více informací
Chystáte se prodat nemovitost?
Pomůžeme Vám!
Theleadway banner