Soccer reality

Prodej bytu 4+kk, Praha - Vysočany, Kolbenova, 117 m2

Kolbenova, Praha, Vysočany

18 540 000 Kč
/za nemovitost
K bytu je možno dokoupit sklep a garážové stání.
Hypotéka od 82 863 Kč /měs. Chci hypotéku

Parametry bytu

AdresaKolbenova, Praha, Vysočany
ID15811103
StavbaSmíšená
Stav objektuNovostavba
Patro1. z 5
Lokalita objektuCentrum obce
VlastnictvíOsobní
Užitná plocha117 m2
Podlahová plocha128 m2
Třída energetické náročnostiB - Velmi úsporná
Ukazatel energetické náročnosti75 kWh/m2 za rok
Elektřina230V
OdpadVeřejná kanalizace
KomunikaceAsfaltová
TelekomunikaceInternet
DopravaSilnice, MHD
VodaVodovod
Topné tělesoPodlahové vytápění
Zdroj topeníÚstřední dálkové, Jiné
Garáž
Sklep
Výtah
Bezbarierový přístup
Parkování

Origo partneři v Praze 9

Stěhovací služby

Výkup a prodej starého nábytku

Popis

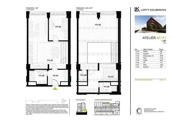
Nabízíme k prodeji jedinečný ateliér o dispozici 4+kk s celkovou výměrou 128 m2. Ateliér se nachází v přízemí budovy. Jsou zde dvě koupelny a jedna samostatná toaleta.

Loft je vybaven:
rekuperací
klimatizací
podlahovým topením
předokenními žaluziemi

K atelieru je možné přikoupit garážové stání a sklep.

Tento developerský projekt získal ocenění jako uznání za nejlepší stavbu využívající stávající objekt v bývalé průmyslové lokalitě. Jedná se o objekt, kde díky revitalizaci a rekonstrukci bývalé továrny ČKD, se proměnil v moderní, designové bydlení. Developer do 3. patra v bytech zachoval původní prvky z továrny, jako jsou například trámy, krakorce a v tomto případě repasovaná původní světla. Od 4. patra se jedná o novostavbu. V projektu můžeme najít byty od 1+kk až po 6+kk.

Skvělá dopravní dostupnost, kde se před domem nachází zastávka tramvaje a metro Kolbenova 300 m od objektu. Přímo naproti je komplex Pragovka, nabízející jak kulturní, sportovní tak kulinářské vyžití. Skoro za rohem se nacházejí obchodní centra jako Fénix a Galerie Harfa. Pro fanoušky sportovních zápasů a velkých koncertů ideální bydlení v blízkosti O2 arény a zároveň blízkosti přírody jako Klíčovské sady.

Byt je k dispozici ihned, pro více informací o objektu a jiných dispozic bytů/ateliérů přímo od developera mě prosím kontaktujte.

Makléř

Máte zájem o tento byt?

Tímto, v souladu s nařízením Evropského parlamentu a Rady (EU) 2016/679, v platném znění, prohlašuji, že mi je alespoň 16 let a uděluji tak svůj souhlas se zpracováním zadaných údajů (jméno, telefon, e-mail, ip adresa) společnosti B3 Technology, s.r.o., IČ: 07330600, se sídlem Novostavby 126/23, 435 11 Lom (správce dat), za účelem předání dotazu z tohoto formuláře Vámi vybranému inzerentovi a zpětného kontaktování mé osoby. Osobní údaje bude správce zpracovávat manuálně i automaticky přímo prostřednictvím svých zaměstnanců. Informace předané tímto formulářem budou uloženy v databázi správce maximálně po dobu 10 let. Odvolání souhlasu s uložením a zpracováním poskytnutých dat lze e-mailem na info@origo-reality.cz. V případě podezření na neoprávněné použití Vámi poskytnutých údajů máte právo předat podnět k šetření Úřadu pro ochranu osobních údajů. Více informací
Chystáte se prodat nemovitost?
Pomůžeme Vám!

Přihlášení k odběru

Nenechte si ujít nejnovější nabídky prodeje bytů 4+kk v Praze 9.