Soccer reality

Prodej bytu 4+kk, Praha - Kbely, Sedlářova, 105 m2

Sedlářova, Praha, Kbely

17 450 000 Kč
/za nemovitost
Hypotéka od 77 991 Kč /měs. Chci hypotéku

Parametry bytu

AdresaSedlářova, Praha, Kbely
StavbaSmíšená
Stav objektuNovostavba
Patro5.
VlastnictvíOsobní
Užitná plocha105 m2
Třída energetické náročnostiA - Mimořádně úsporná
Sklep
Terasa
Parkování

Origo partneři v Praze 9

Stěhovací služby

Výkup a prodej starého nábytku

Popis

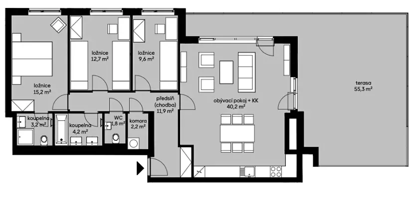
Jedinečný byt o dispozici 4+kk v novostavbě projektu Albatros Kbely v Praze 9 ihned k nastěhování! V zastoupení majitele vám nabízíme prostorný byt s celkovou užitnou plochou 105 m2 a nadstandardně rozlehlou terasou 48 m2 umístěný v nejvyšším 5. NP bytového domu dokončeného v roce 2024. Součástí prodeje jsou 2 soukromá garážová parkovací stání a sklep.

Ze vstupní chodby s prostornou vestavnou skříní se vstupuje do jednotlivých samostatných místností. Velkorysý obývací pokoj s kuchyní nabízí příjemných 40 m2 a 2 vstupy na vzdušnou terasu s výhledem do zeleně. Pozornost upoutá atraktivní kuchyňská linka kompletně vybavená vestavnými spotřebiči značky Elektrolux. Pohodlná sedací souprava je nová a může být v bytě ponechána budoucím majitelům.

Dva dětské pokoje (10 m2 a 13 m2) využívají protější koupelnu s vanou a elegantním nábytkem, se kterou sousedí samostatné WC. V jednom z pokojů je dětská nábytková sestava, která může být v případě zájmu součástí prodeje.

Ložnice (16 m2) zaujme především walk-in šatnou, která nahradí běžné šatní skříně a praktickou en suite koupelnou se sprchovým koutem a WC.
V komoře jsou rozvody pro připojení pračky a sušičky, která tak nebude rušit v obytných místnostech.

Stínění na oknech zajišťují praktické elektricky ovládané vnější zatemňovací rolety. Podlahy jsou převážně laminátové, v koupelnách a technické komoře je dlažba. Byt disponuje také technikou pro řízené větrání v obytných budovách.

Projekt Albatros Kbely představuje moderní rezidenční bydlení v jedné z nejpříjemnějších a nejrychleji se rozvíjejících částí Prahy. Lokalita nabízí ideální rovnováhu mezi klidným bydlením v zeleni a výbornou dostupností do centra města. V bezprostředním okolí se nachází rozsáhlé přírodní plochy, cyklostezky i parky, které vytvářejí příjemné prostředí pro každodenní relaxaci i aktivní životní styl.
Samotný projekt od renomovaného developera Skanska je navržen s důrazem na kvalitní architekturu, udržitelnost a vysoký standard bydlení. Součástí nové čtvrti je promyšlená infrastruktura, veřejné prostory včetně parku a hřišť s volnočasovým a sportovním vybavením, služby i občanská vybavenost, díky čemuž vzniká moderní a komfortní místo pro život.
Lokalita Kbely zároveň nabízí kompletní občanskou vybavenost včetně škol, školek (školka Albatros je v těsné blízkosti bytu), obchodů (supermarkety Norma a Billa jsou v dochozí vzdálenosti pár minut od bytu), restaurací i sportovních zařízení a velmi dobré dopravní spojení do centra Prahy, ať už autem, autobusem nebo vlakem. Metro Letňany je vzdálené pouhých 5 minut cesty autobusem.

Makléř

Máte zájem o tento byt?

Tímto, v souladu s nařízením Evropského parlamentu a Rady (EU) 2016/679, v platném znění, prohlašuji, že mi je alespoň 16 let a uděluji tak svůj souhlas se zpracováním zadaných údajů (jméno, telefon, e-mail, ip adresa) společnosti B3 Technology, s.r.o., IČ: 07330600, se sídlem Novostavby 126/23, 435 11 Lom (správce dat), za účelem předání dotazu z tohoto formuláře Vámi vybranému inzerentovi a zpětného kontaktování mé osoby. Osobní údaje bude správce zpracovávat manuálně i automaticky přímo prostřednictvím svých zaměstnanců. Informace předané tímto formulářem budou uloženy v databázi správce maximálně po dobu 10 let. Odvolání souhlasu s uložením a zpracováním poskytnutých dat lze e-mailem na info@origo-reality.cz. V případě podezření na neoprávněné použití Vámi poskytnutých údajů máte právo předat podnět k šetření Úřadu pro ochranu osobních údajů. Více informací
Chystáte se prodat nemovitost?
Pomůžeme Vám!

Přihlášení k odběru

Nenechte si ujít nejnovější nabídky prodeje bytů 4+kk v Praze 9.