Prodej rodinného domu, Sadská, Karla Viky, 138 m2 (ID: 1977191)

Karla Viky, Sadská

13 900 000 Kč
/za nemovitost
Hypotéka od 62 125 Kč /měs. Chci hypotéku

Parametry domu

AdresaKarla Viky, Sadská
ID927076
StavbaCihlová
Stav objektuNovostavba
VybavenoAno
Druh objektuSamostatný
Lokalita objektuOkraj obce
VlastnictvíOsobní
Užitná plocha138 m2
Plocha pozemku1148 m2

Origo partneři v Sadské

Popis

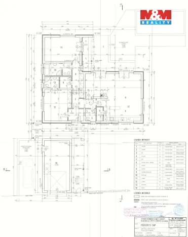
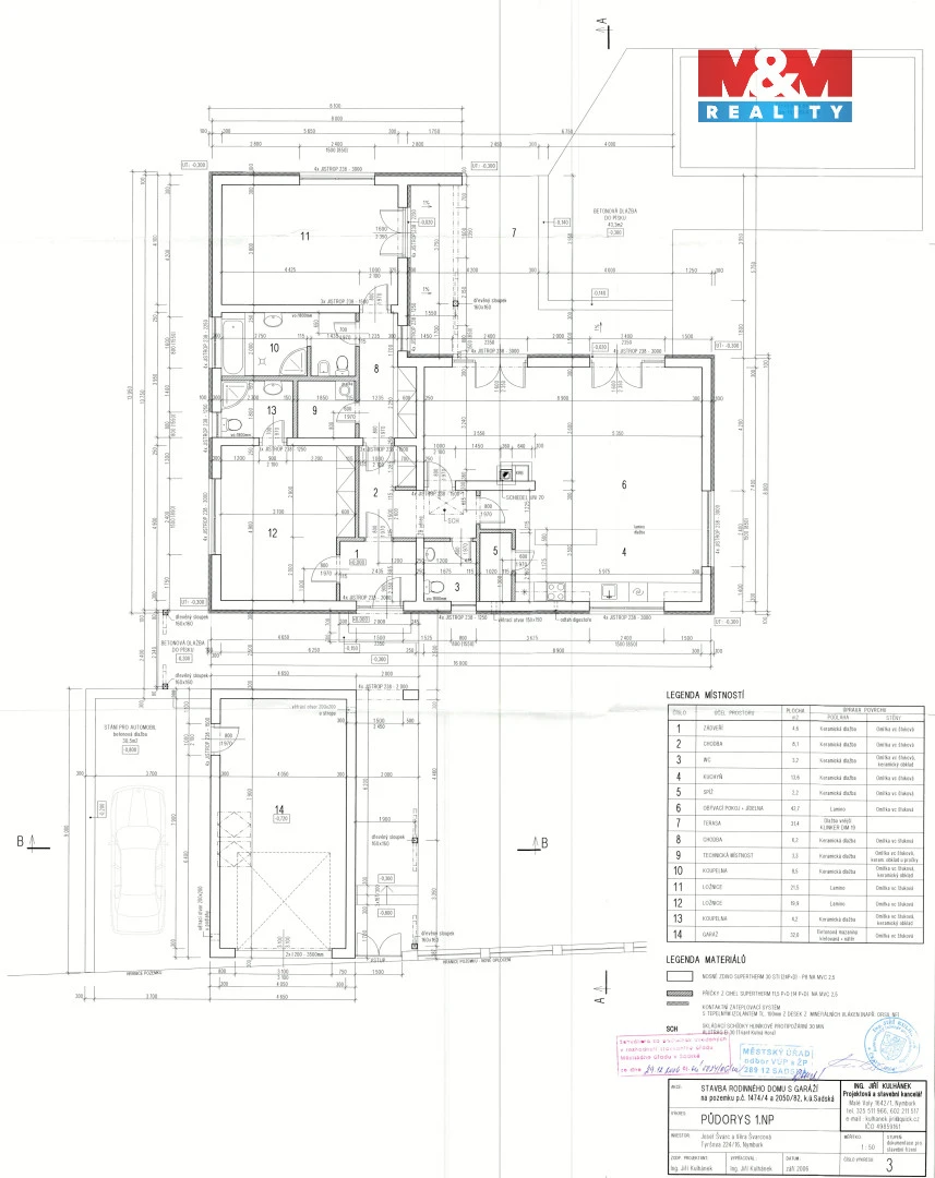
Nabízíme exkluzivní rodinný dům v klidné lokalitě Sadská, ideální pro ty, kteří hledají komfort a moderní technologie. Tento cihlový dům je téměř jako novostavba a nabízí dispozici 3(4)+KK s užitnou plochou 138 m². Nachází se na samostatném pozemku o rozloze 1148 m² na okraji obce. Dům je ve špičkovém stavu a nebyl téměř vůbec používán. Moderní vybavení zahrnuje tepelné čerpadlo země-voda, požární hlásiče, venkovní žaluzie, centrální vysavač a anténní rozvod do všech místností. Zahrada v TOP stavu je automaticky zavlažována vodou z kopané studny, která také zásobuje solární sprchu a zastřešený bazén vyhřívaný tepelným čerpadlem. Bezpečnost zajišťuje elektronický zabezpečovací systém a Wi-Fi. Vynikající dopravní spojení: Praha Černý Most je pouhých 30 minut jízdy. Jezero Sadská je vzdálené 1 km a rekreační oblast Kersko 6 km.

Makléř

Máte zájem o tento dům?

Tímto, v souladu s nařízením Evropského parlamentu a Rady (EU) 2016/679, v platném znění, prohlašuji, že mi je alespoň 16 let a uděluji tak svůj souhlas se zpracováním zadaných údajů (jméno, telefon, e-mail, ip adresa) společnosti B3 Technology, s.r.o., IČ: 07330600, se sídlem Novostavby 126/23, 435 11 Lom (správce dat), za účelem předání dotazu z tohoto formuláře Vámi vybranému inzerentovi a zpětného kontaktování mé osoby. Osobní údaje bude správce zpracovávat manuálně i automaticky přímo prostřednictvím svých zaměstnanců. Informace předané tímto formulářem budou uloženy v databázi správce maximálně po dobu 10 let. Odvolání souhlasu s uložením a zpracováním poskytnutých dat lze e-mailem na info@origo-reality.cz. V případě podezření na neoprávněné použití Vámi poskytnutých údajů máte právo předat podnět k šetření Úřadu pro ochranu osobních údajů. Více informací
Chystáte se prodat nemovitost?
Pomůžeme Vám!

Přihlášení k odběru

Nenechte si ujít nejnovější nabídky prodeje rodinných domů v Sadské.