Prodej rodinného domu, Kostelec nad Labem, K Jahodovce, 170 m2

K Jahodovce, Kostelec nad Labem

15 990 000 Kč
/za nemovitost
Hypotéka od 71 466 Kč /měs. Chci hypotéku

Parametry domu

AdresaK Jahodovce, Kostelec nad Labem
IDKP 0832
StavbaMontovaná
Stav objektuVelmi dobrý
Druh objektuSamostatný
Lokalita objektuKlidná část obce
Užitná plocha170 m2
Zastavěná plocha96 m2
Podlahová plocha170 m2
Plocha pozemku96 m2
Plocha zahrady739 m2
Elektřina230V
OdpadVeřejná kanalizace
DopravaVlak, Silnice
Topné tělesoPodlahové vytápění
Zdroj teplé vodyElektrokotel
Parkování

Origo partneři v Kostelci nad Labem

Popis

Nabízíme prodej domu v okrajové části města Kostelce nad Labem.

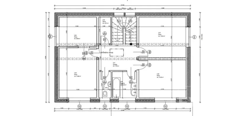
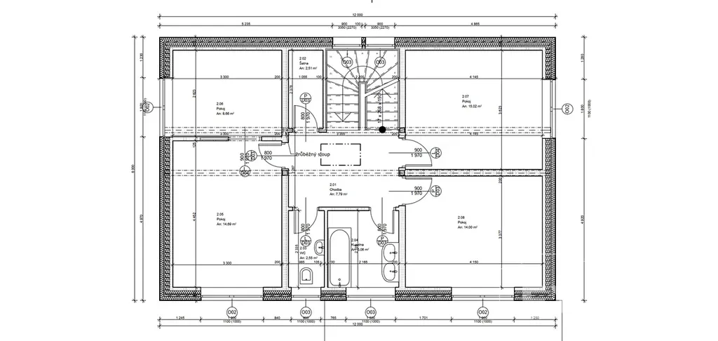
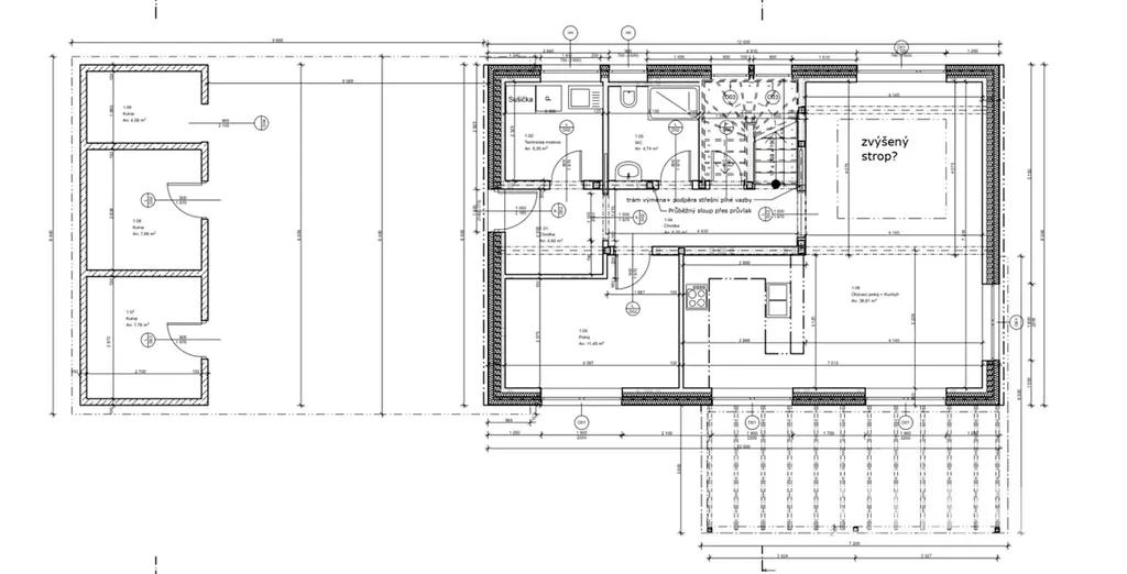
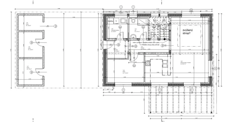
Jedná se o promyšlenou dřevostavbu, která byla postavena před 9ti lety. Praktické uspořádání domu - v dolní části se nachází obývací pokoj napojený na kuchyňský kout, praktická pracovna, která může sloužit i jako ložnice. Z obou místností je vstup na zahradu, která má příjemný výhled do krajiny. V dolní části dále naleznete koupelnu se sprchovým koutem a toaletou, úložný prostor pod schody a technickou místnost. Nechybí ani praktické zádveří.

V horní části domu jsou tři samostatné pokoje, u ložnice je veliká šatna, kterou lze využívat i jako pracovnu, neboť má okno. Koupelna má vanu. Na chodbě je dále komora a vstup na půdu, která nabízí dostatek úložného prostoru pro věci, které zrovna nepotřebujete.

Celý dům je vytápěn elektrokotlem - celkové náklady na elektřinu v domě jsou 7.500,-Kč. V domě je nainstalováno podlahové vytápění. Dům je napojen na obecní vodovod a kanalizaci. Na pozemku se dále nachází vrtaná studna, která zajišťuje závlahu pro celou zahradu.

V domě je rekuperace a v obývacím pokoji je klimatizace.

Okna jsou trojskla, na oknech jsou nainstalované předokenní žaluzie. Podlaha je vinylová.

Na zahradě naleznete ještě samostatný domek, který je momentálně využíván pro skladování, lze však umístit saunu, případně vířivku. Parkovací stání je možné pro 3-4 auta, lze vybudovat přístřešek či garáž.

Celý pozemek je oplocen.

Tento praktický dům je připraven na nové majitele, kteří ocení klid maloměsta, které však má veškerou občanskou vybavenost a je kousek od Prahy - přímé spojení busem na metro Letňany - 30min.

En. štítek je formě zpracování, bude doložen, proto neuvádíme.

Doporučujeme.

Makléř

Máte zájem o tento dům?

Tímto, v souladu s nařízením Evropského parlamentu a Rady (EU) 2016/679, v platném znění, prohlašuji, že mi je alespoň 16 let a uděluji tak svůj souhlas se zpracováním zadaných údajů (jméno, telefon, e-mail, ip adresa) společnosti B3 Technology, s.r.o., IČ: 07330600, se sídlem Novostavby 126/23, 435 11 Lom (správce dat), za účelem předání dotazu z tohoto formuláře Vámi vybranému inzerentovi a zpětného kontaktování mé osoby. Osobní údaje bude správce zpracovávat manuálně i automaticky přímo prostřednictvím svých zaměstnanců. Informace předané tímto formulářem budou uloženy v databázi správce maximálně po dobu 10 let. Odvolání souhlasu s uložením a zpracováním poskytnutých dat lze e-mailem na info@origo-reality.cz. V případě podezření na neoprávněné použití Vámi poskytnutých údajů máte právo předat podnět k šetření Úřadu pro ochranu osobních údajů. Více informací
Chystáte se prodat nemovitost?
Pomůžeme Vám!

Přihlášení k odběru

Nenechte si ujít nejnovější nabídky prodeje rodinných domů v Kostelci nad Labem.