Prodej rodinného domu, Neratovice, Kpt. Jaroše, 143 m2

Kpt. Jaroše, Neratovice

8 200 000 Kč
/za nemovitost
Hypotéka od 36 649 Kč /měs. Chci hypotéku

Parametry domu

AdresaKpt. Jaroše, Neratovice
ID18268
StavbaSmíšená
Stav objektuPo rekonstrukci
VybavenoNe
Typ objektuPatrový
Druh objektuV bloku
Užitná plocha143 m2
Zastavěná plocha97 m2
Plocha pozemku186 m2
Třída energetické náročnostiG - Mimořádně nehospodárná
Elektřina230V
PlynPlynovod
OdpadVeřejná kanalizace
DopravaVlak, Silnice, MHD, Autobus
VodaVodovod
Převod do OV

Origo partneři v Neratovicích

Popis

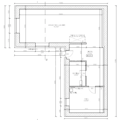
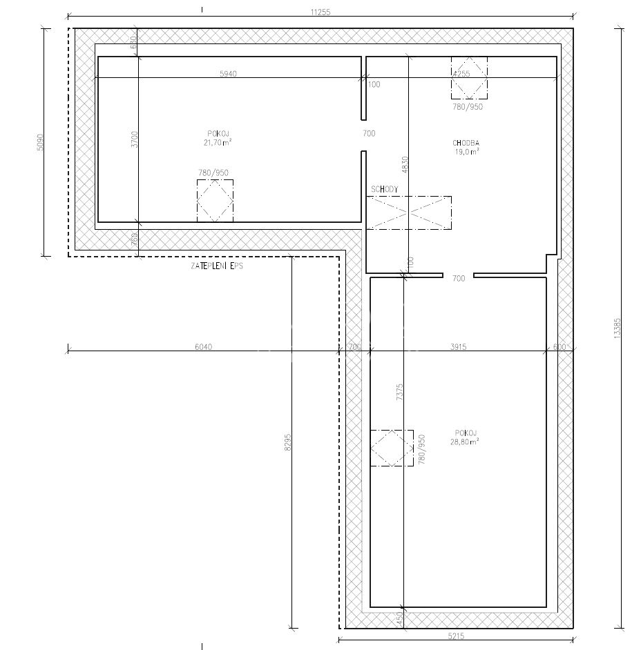
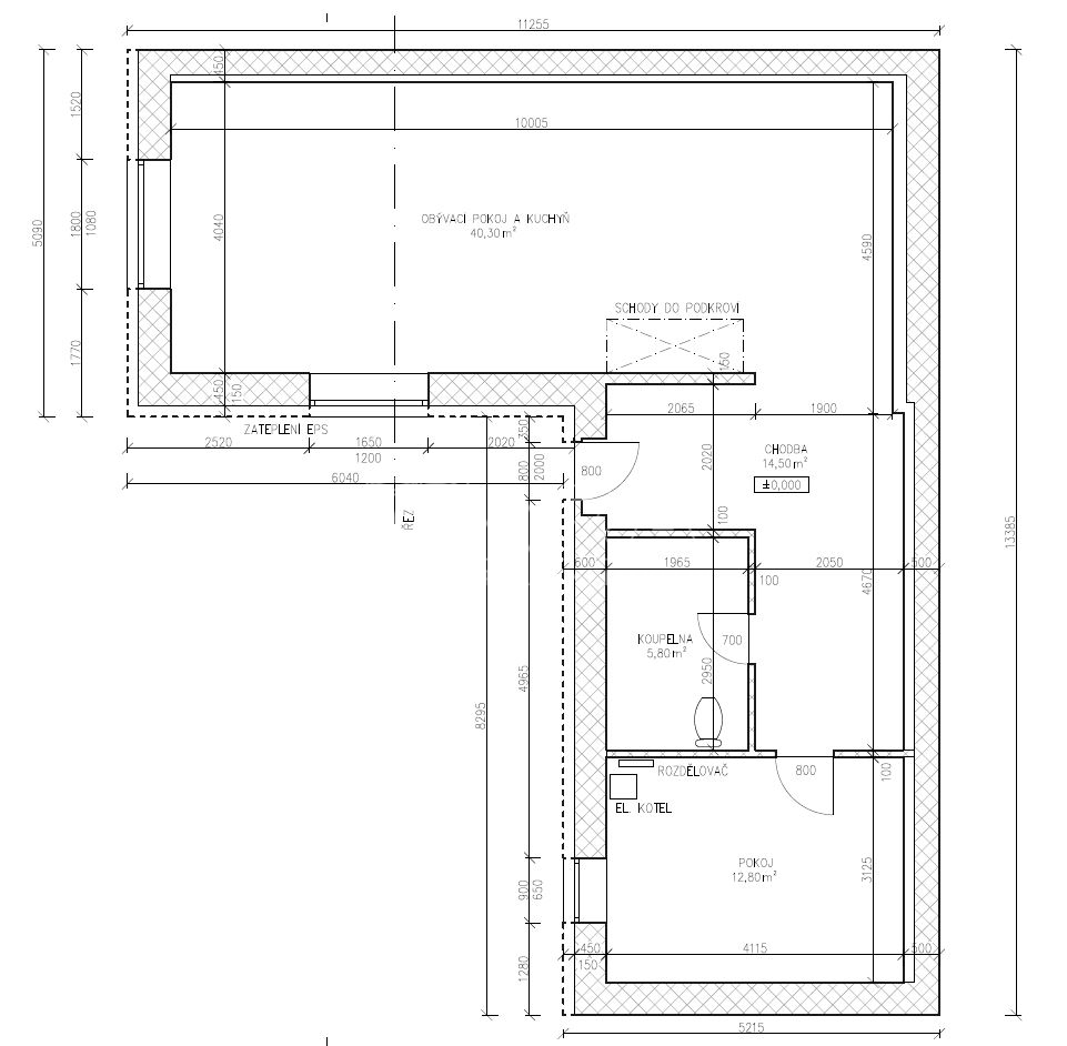
Nabízím k prodeji rodinný dům 4+kk s menší zahrádkou v ulici Kpt. Jaroše – Neratovice. Dům prošel vkusnou renovací a je připraven k nastěhování.

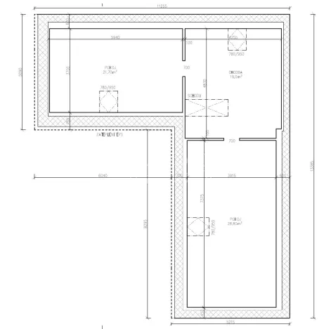
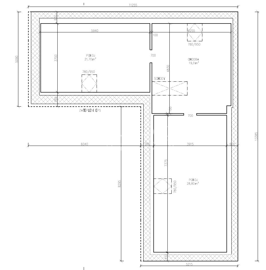
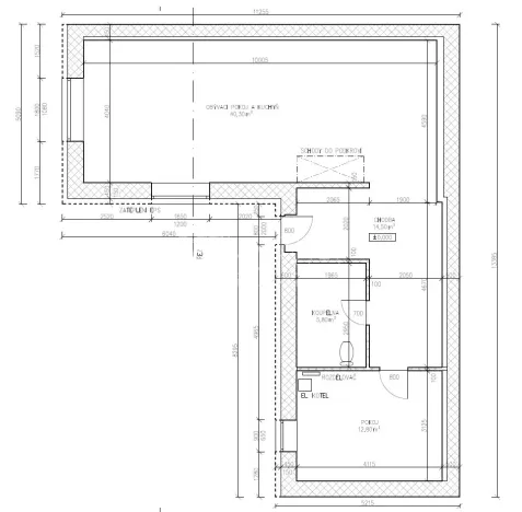
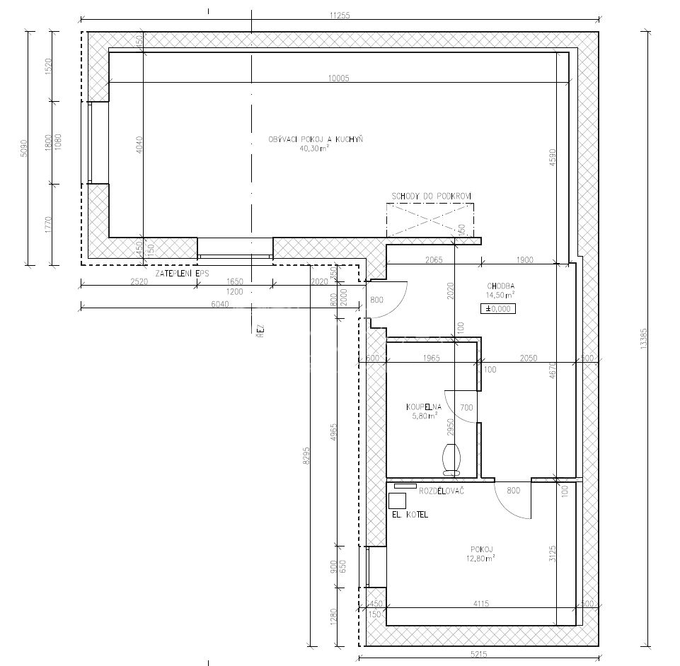
V přízemí vstupní chodba, prostorný obývací pokoj s kuchyňským koutem, koupelna s WC a samostatný pokoj, celková velikost 73,4 m2. V podkroví chodba a dvě samostatné ložnice o celkové velikosti 69,5 m2.

• Stavba byla odkopána a osazena izolace včetně nopové folie.
• Zatepleno Polystyrenem 10-14 cm, vnitřní zeď k sousedovi s předstěnou ze sádrokartonu, zateplena vatou.
• V celém přízemí podlahové topení s napojením na nový elektrokotel + otopný žebřík v koupelně.
• Kompletní nové rozvody elektřiny, odpadu i vody.
• Napojeno na elektřinu, obecní vodovod i kanalizaci, před domem plyn.
• Podlaha – 2x izolovaná + Polystyren 4cm + systémová deska a dlažba.
• Strop – trámy 20 cm, vata 10 cm + sádrokarton. Z vrchu OSB deska 2,5 cm + vinylová podlaha.
• Střecha – mezi krokvemi izolační vata a paropropustná folie.

Nedaleko domu veškerá občanská vybavenost, v blízkosti vlakové nádraží směr Praha. Možnost financování hypotečním úvěrem, se kterým Vám rádi pomůžeme. Více informací na níže uvedeném kontaktu.

Makléř

Máte zájem o tento dům?

Tímto, v souladu s nařízením Evropského parlamentu a Rady (EU) 2016/679, v platném znění, prohlašuji, že mi je alespoň 16 let a uděluji tak svůj souhlas se zpracováním zadaných údajů (jméno, telefon, e-mail, ip adresa) společnosti B3 Technology, s.r.o., IČ: 07330600, se sídlem Novostavby 126/23, 435 11 Lom (správce dat), za účelem předání dotazu z tohoto formuláře Vámi vybranému inzerentovi a zpětného kontaktování mé osoby. Osobní údaje bude správce zpracovávat manuálně i automaticky přímo prostřednictvím svých zaměstnanců. Informace předané tímto formulářem budou uloženy v databázi správce maximálně po dobu 10 let. Odvolání souhlasu s uložením a zpracováním poskytnutých dat lze e-mailem na info@origo-reality.cz. V případě podezření na neoprávněné použití Vámi poskytnutých údajů máte právo předat podnět k šetření Úřadu pro ochranu osobních údajů. Více informací
Chystáte se prodat nemovitost?
Pomůžeme Vám!

Přihlášení k odběru

Nenechte si ujít nejnovější nabídky prodeje rodinných domů v Neratovicích.