Prodej rodinného domu, Kyjov - Bohuslavice, 145 m2 (ID: 1956083)

Kyjov, Bohuslavice

8 390 000 Kč
/za nemovitost
včetně provize
Hypotéka od 37 498 Kč /měs. Chci hypotéku

Parametry domu

AdresaKyjov, Bohuslavice
ID00736
StavbaDřevěná
Stav objektuVe výstavbě
Typ objektuPatrový
Druh objektuŘadový
Lokalita objektuKlidná část obce
Užitná plocha145 m2
Plocha pozemku885 m2
Třída energetické náročnostiA - Mimořádně úsporná
Ukazatel energetické náročnosti48 kWh/m2 za rok
Parkování

Origo partneři v Kyjově

Popis

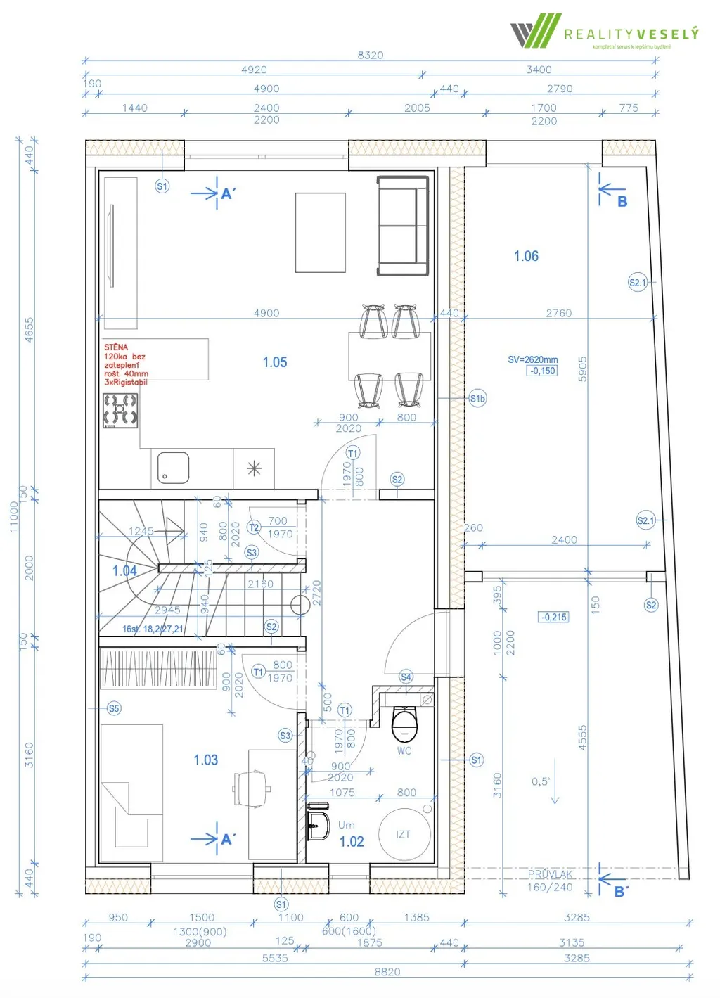
Nabízíme k prodeji moderní a prostorný rodinný dům o dispozici 6+kk s podlahovou plochou 145 m², situovaný na pozemku o celkové výměře 885 m². Dům nabízí komfortní a promyšlené uspořádání vhodné i pro větší rodinu.

Dispozice domu zahrnuje:
• prostorný obývací pokoj s kuchyňským koutem
• 5 neprůchozích pokojů
• 2 koupelny s WC
• garáž
• kryté parkovací stání

Cena zahrnuje pozemek i terénní úpravy.

Stavbu realizuje renomovaná stavební společnost Úsporné bydlení s.r.o. s více než 20letou tradicí. Jedná se o moderní pasivní dřevostavbu s difuzně uzavřenou konstrukcí, postavenou s důrazem na vysoký standard provedení, kvalitu a dlouhodobou úsporu energií.

Dům je vybaven:
• vlastním tepelným čerpadlem
• rekuperací s řízeným větráním, která v zimě přitápí, v létě ochlazuje a zajišťuje neustálý přísun čerstvého vzduchu bez nutnosti klasického větrání
• fotovoltaikou pro ohřev teplé vody
• vytápěním pomocí TČ vzduch–vzduch

Výsledkem jsou velmi nízké provozní náklady a vysoký komfort bydlení.

Interiér domu je připraven k dokončení dle představ nového majitele. Je možné zvolit vlastní materiály a dekory podlah, dveří a koupelnových obkladů. Na vlastní náklady si nový majitel zajistí kuchyňskou linku, svítidla a úpravu zahrady.

Dům se nachází v klidné obci Bohuslavice, pouhých 5 km od Kyjova, s výbornou dostupností vlakem i autobusem. V obci je mateřská i základní škola, obchod COOP, fotbalové hřiště a přírodní koupací biotop. Lokalita nabízí také široké možnosti pěší turistiky a cyklovýletů do krásné přírody Chřibů.

Pokud hledáte moderní, úsporné bydlení v klidném prostředí s výbornou dostupností, je tento dům ideální volbou.
Rádi vám pomůžeme i s financováním této nemovitosti.

Pro více informací mě neváhejte kontaktovat.

Makléř

Máte zájem o tento dům?

Tímto, v souladu s nařízením Evropského parlamentu a Rady (EU) 2016/679, v platném znění, prohlašuji, že mi je alespoň 16 let a uděluji tak svůj souhlas se zpracováním zadaných údajů (jméno, telefon, e-mail, ip adresa) společnosti B3 Technology, s.r.o., IČ: 07330600, se sídlem Novostavby 126/23, 435 11 Lom (správce dat), za účelem předání dotazu z tohoto formuláře Vámi vybranému inzerentovi a zpětného kontaktování mé osoby. Osobní údaje bude správce zpracovávat manuálně i automaticky přímo prostřednictvím svých zaměstnanců. Informace předané tímto formulářem budou uloženy v databázi správce maximálně po dobu 10 let. Odvolání souhlasu s uložením a zpracováním poskytnutých dat lze e-mailem na info@origo-reality.cz. V případě podezření na neoprávněné použití Vámi poskytnutých údajů máte právo předat podnět k šetření Úřadu pro ochranu osobních údajů. Více informací
Chystáte se prodat nemovitost?
Pomůžeme Vám!

Přihlášení k odběru

Nenechte si ujít nejnovější nabídky prodeje rodinných domů v Kyjově (okr. Hodonín).