Prodej rodinného domu, Žeravice, Žeravice, 270 m2

9 330 000 Kč
/za nemovitost
Hypotéka od 41 699 Kč /měs. Chci hypotéku

Parametry domu

Adresa
ID169
StavbaCihlová
Stav objektuVelmi dobrý
VybavenoČástečně
Typ objektuPřízemní
Druh objektuRohový
Lokalita objektuKlidná část obce
Užitná plocha270 m2
Zastavěná plocha195 m2
Plocha pozemku1551 m2
Elektřina230V, 400V
PlynPlynovod
OdpadVeřejná kanalizace
TopeníÚstřední plynové, Jiné
KomunikaceAsfaltová
VodaVodovod, Studna
Topné tělesoRadiátory
Zdroj topeníPlynový kondenzační kotel
Zdroj teplé vodyBojler - elektro, Bojler - plyn
Sklep
Výtah

Origo partneři v Žeravicích

Pojištění a finance

Popis

V klidné obci Žeravice u Kyjova nabízíme k prodeji rodinný dům, který zaujme nejen svou velikostí a dispozicí, ale především variabilitou využití a atmosférou skutečného domova. Jedná se o nemovitost, která dává prostor představám – ať už hledáte místo pro rodinu, více generací pod jednou střechou, nebo dům s investičním potenciálem.

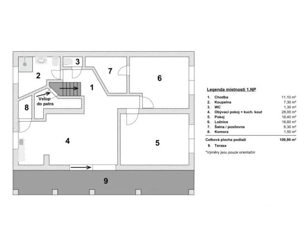
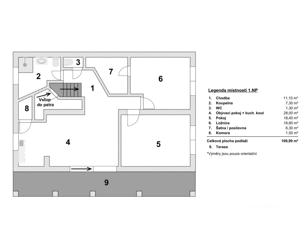
Dům je rozdělen do tří samostatných bytových jednotek, díky čemuž nabízí naprostou flexibilitu využití. V přízemí se nachází dvě bytové jednotky o dispozici 2+1, které poskytují dostatek prostoru a soukromí. V patře je pak nově vybudovaný byt 3+kk, který působí moderně, vzdušně a je připraven stát se plnohodnotným rodinným bydlením.

Nemovitost prošla postupnou rekonstrukcí, přičemž většina zásadních prací je již hotová. K dokončení zbývá pouze minimum úprav, které si nový majitel může přizpůsobit podle vlastního vkusu a potřeb – a dát tak domu osobní rukopis.

Velkou předností domu je udržovaná zahrada, která nabízí příjemné soukromí a prostor pro odpočinek, rodinná setkání i každodenní relax. K domu dále náleží prostorná garáž až pro tři auta, praktická dílna a také sklep ideální pro skladování ovoce a zeleniny.

Základní informace:

užitná plocha domu: 270 m²

plocha pozemku: 1551 m²

počet bytových jednotek: 3

Tento dům je ideální volbou pro ty, kteří hledají klidné bydlení s možností dalšího využití, ať už formou pronájmu, podnikání z domova nebo vícegeneračního soužití. Spojuje v sobě praktičnost, prostor a potenciál, který se jen tak nevidí.

Projděte si nemovitost pomocí 3D scanu.

Pro více informací nebo domluvení osobní prohlídky mě neváhejte kontaktovat.
Ráda vám dům představím osobně a ukážu vám, co všechno může nabídnout.

Makléř

Máte zájem o tento dům?

Tímto, v souladu s nařízením Evropského parlamentu a Rady (EU) 2016/679, v platném znění, prohlašuji, že mi je alespoň 16 let a uděluji tak svůj souhlas se zpracováním zadaných údajů (jméno, telefon, e-mail, ip adresa) společnosti B3 Technology, s.r.o., IČ: 07330600, se sídlem Novostavby 126/23, 435 11 Lom (správce dat), za účelem předání dotazu z tohoto formuláře Vámi vybranému inzerentovi a zpětného kontaktování mé osoby. Osobní údaje bude správce zpracovávat manuálně i automaticky přímo prostřednictvím svých zaměstnanců. Informace předané tímto formulářem budou uloženy v databázi správce maximálně po dobu 10 let. Odvolání souhlasu s uložením a zpracováním poskytnutých dat lze e-mailem na info@origo-reality.cz. V případě podezření na neoprávněné použití Vámi poskytnutých údajů máte právo předat podnět k šetření Úřadu pro ochranu osobních údajů. Více informací
Chystáte se prodat nemovitost?
Pomůžeme Vám!
Theleadway banner

Přihlášení k odběru

Nenechte si ujít nejnovější nabídky prodeje rodinných domů v Žeravicích.