Prodej bytu 3+kk, Hořice, Zborovská, 72 m2 (ID: 1936067)

Zborovská, Hořice

6 174 950 Kč
/za nemovitost
Hypotéka od 27 598 Kč /měs. Chci hypotéku

Parametry bytu

AdresaZborovská, Hořice
ID18
StavbaCihlová
Stav objektuVe výstavbě
Patro2. z 3
VybavenoČástečně
Lokalita objektuKlidná část obce
VlastnictvíOsobní
Užitná plocha72 m2
Třída energetické náročnostiA - Mimořádně úsporná
Ukazatel energetické náročnosti57 kWh/m2 za rok
Elektřina230V
OdpadVeřejná kanalizace
KomunikaceAsfaltová
TelekomunikaceTelefon, Internet, Satelit, Kabelová televize, Kabelové rozvody
DopravaVlak, Dálnice, Silnice, MHD, Autobus
VodaVodovod
Topné tělesoPodlahové vytápění
Zdroj topeníTepelné čerpadlo
Zdroj teplé vodyTepelné čerpadlo
Balkon
Výtah
Bezbarierový přístup
Parkování

Origo partneři v Hořicích

Popis

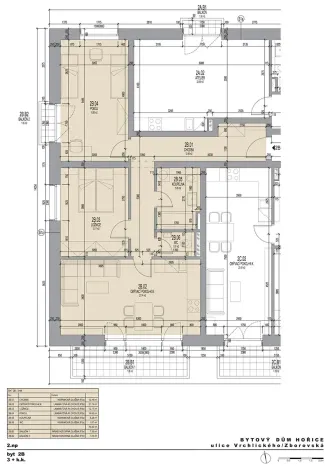
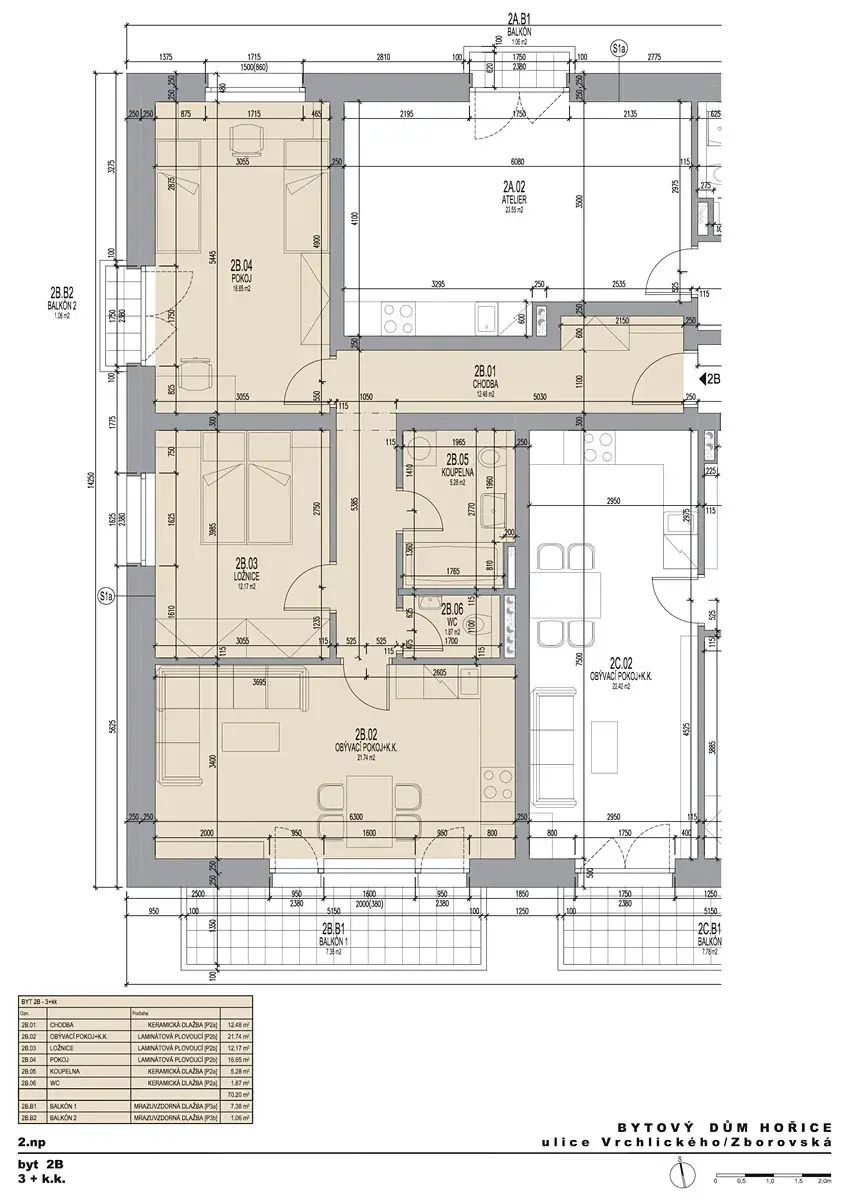
Nabízíme k prodeji moderní byt 3+kk o velikosti 72 m² v novém pasivním bytovém domě na ulici Zborovská v Hořicích. Byt se nachází ve 2. patře třípodlažní cihlové budovy ve výstavbě a nabízí komfortní a úsporné bydlení v energetické třídě A.
Dispozice bytu zahrnuje prostorný obývací pokoj s kuchyňským koutem, dvě ložnice, koupelnu, samostatné WC a balkon orientovaný na jih s výhledem do okolní krajiny. Díky pasivnímu standardu výstavby se můžete těšit na nízké provozní náklady a příjemné vnitřní klima po celý rok.
Bytový dům je situován v klidné části Hořic s dobrou dostupností do centra města a veškerou občanskou vybaveností v dosahu. K bytu je možné dokoupit parkovací nebo garážové stání.
Cena bytu činí 6 031 350 Kč. Pro více informací navštivte webové stránky projektu (byty-horice) nebo nás neváhejte kontaktovat.

Makléř

Máte zájem o tento byt?

Tímto, v souladu s nařízením Evropského parlamentu a Rady (EU) 2016/679, v platném znění, prohlašuji, že mi je alespoň 16 let a uděluji tak svůj souhlas se zpracováním zadaných údajů (jméno, telefon, e-mail, ip adresa) společnosti B3 Technology, s.r.o., IČ: 07330600, se sídlem Novostavby 126/23, 435 11 Lom (správce dat), za účelem předání dotazu z tohoto formuláře Vámi vybranému inzerentovi a zpětného kontaktování mé osoby. Osobní údaje bude správce zpracovávat manuálně i automaticky přímo prostřednictvím svých zaměstnanců. Informace předané tímto formulářem budou uloženy v databázi správce maximálně po dobu 10 let. Odvolání souhlasu s uložením a zpracováním poskytnutých dat lze e-mailem na info@origo-reality.cz. V případě podezření na neoprávněné použití Vámi poskytnutých údajů máte právo předat podnět k šetření Úřadu pro ochranu osobních údajů. Více informací
Chystáte se prodat nemovitost?
Pomůžeme Vám!

Přihlášení k odběru

Nenechte si ujít nejnovější nabídky prodeje bytů 3+kk v Hořicích (okr. Jičín).