Prodej bytu 4+kk, Plzeň, 82 m2

Plzeň, Dolní Vlkýš

4 850 000 Kč
/za nemovitost
Hypotéka od 21 677 Kč /měs. Chci hypotéku

Parametry bytu

AdresaPlzeň, Dolní Vlkýš
StavbaCihlová
Stav objektuVe výstavbě
Patro2.
Lokalita objektuKlidná část obce
VlastnictvíOsobní
Užitná plocha82 m2
Třída energetické náročnostiB - Velmi úsporná
Elektřina230V
OdpadČOV pro celý objekt
DopravaSilnice, MHD, Autobus
VodaVodovod
Topné tělesoPodlahové vytápění, Infrapanel
Zdroj topeníInfrapanel
Balkon
Parkování

Origo partneři v Plzni

Podlahy

Stěhovací služby

Popis

Nechcete se vzdát výhod městského života, ale zároveň žít v klidu, soukromí a pohodlí venkovského bydlení? Nabízíme Vám k prodeji moderní byt 4+kk s balkonem v klidné lokalitě Malesice - Dolní Vlkýš, v rámci menšího rezidenčního projektu s výbornou dostupností do Plzně, ketrý je momentálně vy výstavbě.

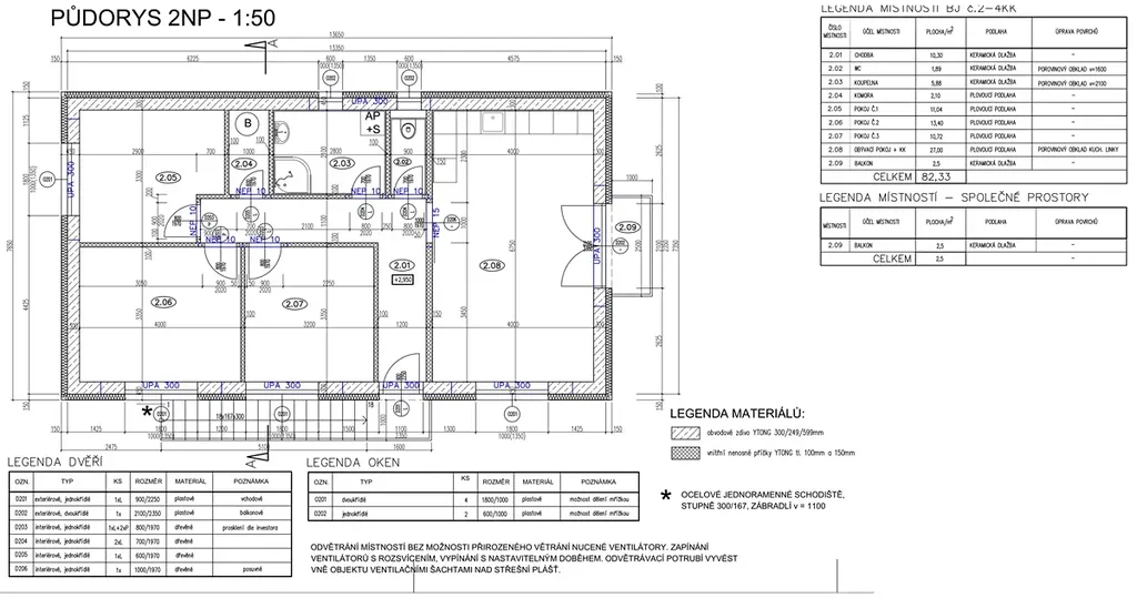
Byt má užitnou plochu 82 m² a praktickou dispozici vhodnou pro rodinné bydlení. K bytu náleží balkon o výměře od 2,5 m², ideální pro relax, nebo ranní kávu a jedno parkovací stání.

Dům je postaven z Ytong Lambda YQ – prémiových pórobetonových tvárnic s vynikajícími izolačními vlastnostmi. Díky kvalitnímu zateplení a moderním technologiím nabízí byt nízké provozní náklady a vysoký energetický standard.

Technické řešení:
-dispozice 4+kk
-užitná plocha 82 m²
-balkon od 2,5 m²
-ohřev vody bojlerem napojeným na solární panely
-podlahové elektrické vytápění v obývacím pokoji a kuchyni
-infrapanely v ostatních místnostech
-energeticky úsporné bydlení

Byt je vhodný pro rodiny, páry i jako investice v atraktivní lokalitě na okraji Plzně, to vše z něj činí ideální místo pro život.

Pro více informací nebo sjednání prohlídky nás neváhejte kontaktovat.

Makléř

Máte zájem o tento byt?

Tímto, v souladu s nařízením Evropského parlamentu a Rady (EU) 2016/679, v platném znění, prohlašuji, že mi je alespoň 16 let a uděluji tak svůj souhlas se zpracováním zadaných údajů (jméno, telefon, e-mail, ip adresa) společnosti B3 Technology, s.r.o., IČ: 07330600, se sídlem Novostavby 126/23, 435 11 Lom (správce dat), za účelem předání dotazu z tohoto formuláře Vámi vybranému inzerentovi a zpětného kontaktování mé osoby. Osobní údaje bude správce zpracovávat manuálně i automaticky přímo prostřednictvím svých zaměstnanců. Informace předané tímto formulářem budou uloženy v databázi správce maximálně po dobu 10 let. Odvolání souhlasu s uložením a zpracováním poskytnutých dat lze e-mailem na info@origo-reality.cz. V případě podezření na neoprávněné použití Vámi poskytnutých údajů máte právo předat podnět k šetření Úřadu pro ochranu osobních údajů. Více informací
Chystáte se prodat nemovitost?
Pomůžeme Vám!

Přihlášení k odběru

Nenechte si ujít nejnovější nabídky prodeje bytů 4+kk v Plzni.