Prodej bytu 3+kk, Český Těšín, Ropická, 94 m2 (ID: 1930111)

Ropická, Český Těšín

Cena na vyžádání
/za nemovitost
Získejte výhodnou HYPOTÉKU Chci hypotéku

Parametry bytu

AdresaRopická, Český Těšín
ID134275
StavbaCihlová
Stav objektuVelmi dobrý
Patro1. z 2
Lokalita objektuKlidná část obce
VlastnictvíOsobní
Užitná plocha94 m2
Podlahová plocha94 m2
Třída energetické náročnostiG - Mimořádně nehospodárná
OdpadJímka
VodaVodovod
Garáž
Sklep
Terasa
Bezbarierový přístup
Parkování

Origo partneři v Českém Těšíně

Popis

Prostorný byt 3+kk s parametry rodinného domu, dva vstupy, dvě zastřešené terasy, zahrada a parkovací stání – Dolní Žukov

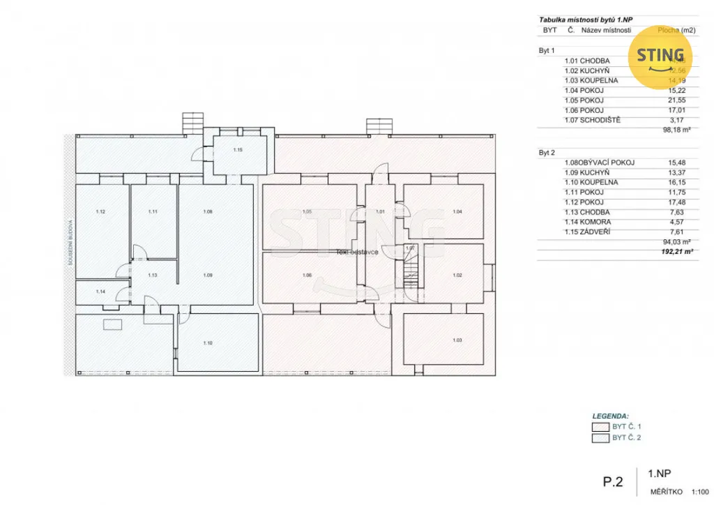
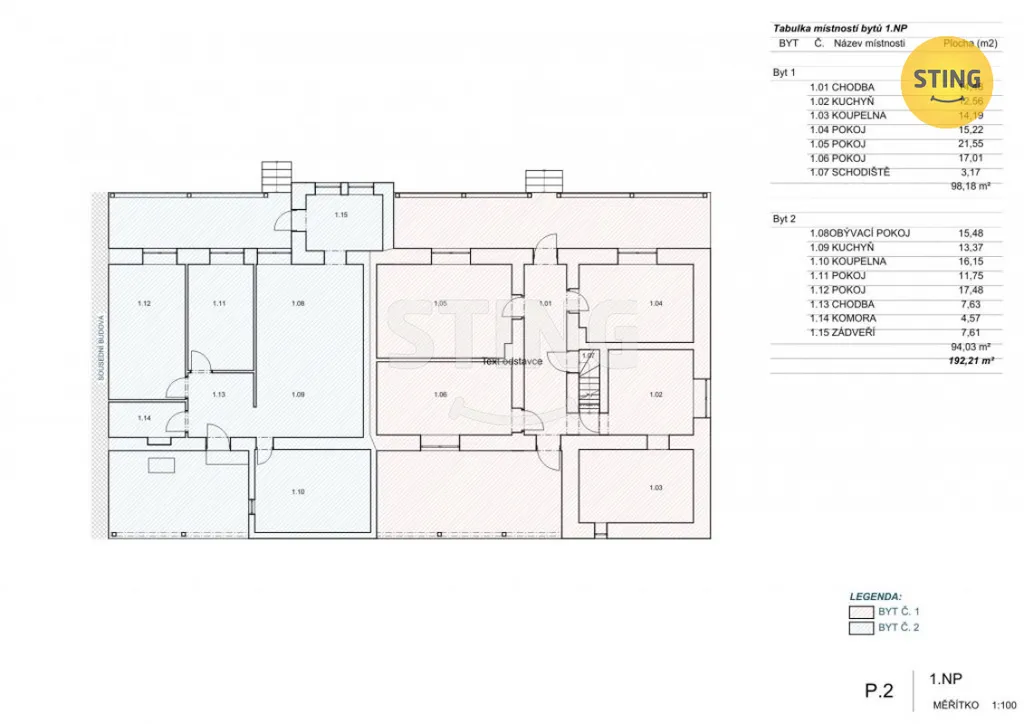
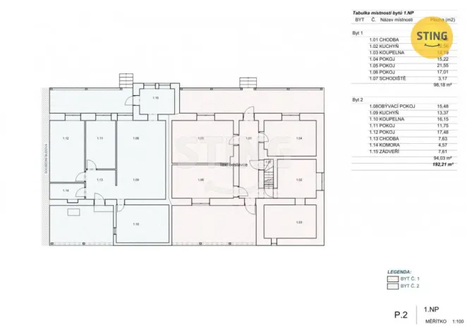
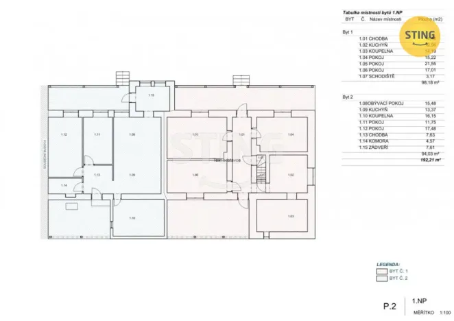
Nabízíme k prodeji moderně zrekonstruovaný byt o dispozici 3+kk a užitné ploše 94,2 m², umístěný v rodinném domě, ve kterém se nacházejí pouze dvě bytové jednotky. Nemovitost je situována v klidné a vyhledávané části Českého Těšína, Dolní Žukov.

Byt disponuje dvěma samostatnými vchody, což výrazně zvyšuje komfort i flexibilitu využití. K jednotce náleží dvě zastřešené terasy, které přirozeně rozšiřují obytný prostor a umožňují příjemné posezení v jakémkoliv počasí. Součástí nabídky je pozemek o výměře 125 m² určený k užívání k tomuto bytu a zároveň společný podíl na pozemku o celkové výměře 866 m².

K bytu dále náleží půdní prostor o výměře 75,36 m², přístřešek pro dvě vozidla, zahradní domek (29 m²) vhodný jako sklad či dílna a zajištěný přístup po příjezdové komunikaci.

Rodinný dům i bytová jednotka prošly kompletní rekonstrukcí v roce 2025, díky které je nemovitost připravena k okamžitému a komfortnímu užívání. Interiér nabízí prostornou vstupní chodbu, velkorysý obývací pokoj s krbovou stěnou, dva samostatné pokoje a menší místnost, vhodnou jako pracovna nebo komora.

Koupelna je aktuálně ve fázi dokončování, což umožňuje novému majiteli doladit finální podobu dle vlastního vkusu. Byt má samostatné měření energií.

Tato nemovitost je ideální volbou pro ty, kteří hledají klidné a nadstandardní bydlení s pocitem vlastního domu, vysokou mírou soukromí a vlastním venkovním zázemím, přičemž veškerá občanská vybavenost města zůstává na dosah.

Pro více informací nebo domluvení prohlídky mě neváhejte kontaktovat. Do konce ledna 2026 nabízíme prostřednictvím našeho partnera úrokové sazby od 4,29 % p.a. Více informací Vám sdělí náš specialista na prohlídce.

Makléř

Máte zájem o tento byt?

Tímto, v souladu s nařízením Evropského parlamentu a Rady (EU) 2016/679, v platném znění, prohlašuji, že mi je alespoň 16 let a uděluji tak svůj souhlas se zpracováním zadaných údajů (jméno, telefon, e-mail, ip adresa) společnosti B3 Technology, s.r.o., IČ: 07330600, se sídlem Novostavby 126/23, 435 11 Lom (správce dat), za účelem předání dotazu z tohoto formuláře Vámi vybranému inzerentovi a zpětného kontaktování mé osoby. Osobní údaje bude správce zpracovávat manuálně i automaticky přímo prostřednictvím svých zaměstnanců. Informace předané tímto formulářem budou uloženy v databázi správce maximálně po dobu 10 let. Odvolání souhlasu s uložením a zpracováním poskytnutých dat lze e-mailem na info@origo-reality.cz. V případě podezření na neoprávněné použití Vámi poskytnutých údajů máte právo předat podnět k šetření Úřadu pro ochranu osobních údajů. Více informací
Chystáte se prodat nemovitost?
Pomůžeme Vám!

Přihlášení k odběru

Nenechte si ujít nejnovější nabídky prodeje bytů 3+kk v Českém Těšíně.

Podobné nabídky