Prodej obchodního prostoru, Praha - Smíchov, Mozartova, 109 m2

Mozartova, Praha, Smíchov

8 500 000 Kč
/za nemovitost
Poplatky za služby spojené s užíváním prostoru: 4.923 Kč/měs. + elektřina
Hypotéka od 37 990 Kč /měs. Chci hypotéku

Parametry nemovitosti

AdresaMozartova, Praha, Smíchov
StavbaCihlová
Stav objektuPo rekonstrukci
VybavenoČástečně
Lokalita objektuCentrum obce
Užitná plocha109 m2
Třída energetické náročnostiG - Mimořádně nehospodárná
DopravaVlak, Silnice, MHD, Autobus

Origo partneři v Praze 5

Stěhovací služby

Výkup a prodej starého nábytku

Popis

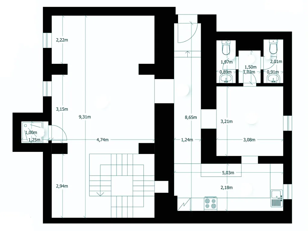
Exkluzivně nabízíme k prodeji atraktivní nebytový prostor o velikosti 109 m² po kompletní moderní rekonstrukci, situovaný v klidné ulici Mozartova na Praze 5 – Smíchově.
Prostor se nachází v 1. podzemním podlaží elegantního činžovního domu po celkové revitalizaci a nabízí stylové prostředí s cihlovými klenbami a kvalitními materiály, které vytvářejí jedinečnou atmosféru vhodnou pro širokou škálu využití.

Dle prohlášení vlastníka je jednotka zkolaudována jako obchodní prostor, zároveň svou dispozicí a technickým stavem dobře vyhovuje i jako kanceláře, showroom, ateliér, studio, coworking či reprezentativní firemní zázemí. Prostor byl nově vybaven pro potřeby krátkodobého ubytování, ale nikdy nebyl využíván – vše je zcela nové, nepoužité a připravené pro další účel.

Velkou výhodou je vlastní vstup přímo z ulice, který zvyšuje samostatnost a atraktivitu prostoru. Tento vstup je sdílen pouze se sousední jednotkou, přičemž k předsíni náleží spoluvlastnický podíl. Po vstupu vás přivítá velký a stylový hlavní prostor, dále chodba vedoucí k místnosti s kuchyňskou linkou a další oddělená místnost umožňující variabilní využití. Součástí je sprchový kout a dvě toalety – pánská/dámská.

Mozartova ulice je tichá a příjemná, ale zároveň leží jen několik minut od hlavních obchodních a kancelářských center Smíchova. V bezprostředním okolí se nachází významné administrativní komplexy (v okolí Anděla a OC Nový Smíchov), řada firemních sídel, coworkingových center a služeb, které zajišťují vysokou koncentraci potenciální klientely. V docházkové vzdálenosti je několik hotelů, restaurací, kaváren i služeb, což podporuje plynulý provoz a stabilní poptávku po obchodních i kancelářských prostorech. Díky tomu představuje lokalita skvělé prostředí pro podnikání, nabízející kombinaci klidného umístění a přímého napojení na jeden z nejaktivnějších business uzlů v Praze.

Dopravní dostupnost je vynikající: tramvajová zastávka Bertramka cca 3 minuty chůzí, metro Anděl 9 minut chůzí, rychlé napojení na Plzeňskou ulici, Strahovský tunel a Pražský okruh – výborná dostupnost i autem směrem do centra i mimo Prahu.

Smíchov je dlouhodobě jednou z nejrychleji se rozvíjejících částí Prahy – především díky projektu nové čtvrti Smíchov City a modernizaci celého území.

Prostor doporučujeme jak investorům hledajícím flexibilní komerční jednotku ve velmi žádané lokalitě, tak koncovým uživatelům, kteří hledají reprezentativní a stylové zázemí pro své podnikání.

Makléř

Máte zájem o tuto nemovistost?

Tímto, v souladu s nařízením Evropského parlamentu a Rady (EU) 2016/679, v platném znění, prohlašuji, že mi je alespoň 16 let a uděluji tak svůj souhlas se zpracováním zadaných údajů (jméno, telefon, e-mail, ip adresa) společnosti B3 Technology, s.r.o., IČ: 07330600, se sídlem Novostavby 126/23, 435 11 Lom (správce dat), za účelem předání dotazu z tohoto formuláře Vámi vybranému inzerentovi a zpětného kontaktování mé osoby. Osobní údaje bude správce zpracovávat manuálně i automaticky přímo prostřednictvím svých zaměstnanců. Informace předané tímto formulářem budou uloženy v databázi správce maximálně po dobu 10 let. Odvolání souhlasu s uložením a zpracováním poskytnutých dat lze e-mailem na info@origo-reality.cz. V případě podezření na neoprávněné použití Vámi poskytnutých údajů máte právo předat podnět k šetření Úřadu pro ochranu osobních údajů. Více informací
Chystáte se prodat nemovitost?
Pomůžeme Vám!

Přihlášení k odběru

Nenechte si ujít nejnovější nabídky prodeje obchodních prostor v Praze 5.