Prodej činžovního domu, Praha, Žitavského, 207 m2

Žitavského, Praha 5

25 000 000 Kč
/za nemovitost
Hypotéka od 111 735 Kč /měs. Chci hypotéku

Parametry nemovitosti

AdresaŽitavského, Praha 5
IDJ12100
StavbaCihlová
Stav objektuPo rekonstrukci
Patro3.
VybavenoNe
Typ objektuPatrový
Druh objektuSamostatný
Lokalita objektuKlidná část obce
VlastnictvíOsobní
Užitná plocha207 m2
Podlahová plocha219 m2
Plocha pozemku331 m2
Třída energetické náročnostiB - Velmi úsporná
PlynPlynovod
OdpadVeřejná kanalizace
TopeníÚstřední plynové
VodaVodovod
Topné tělesoRadiátory
Zdroj topeníPlynový kotel
Zdroj teplé vodyPlynový kotel
Terasa
Výtah
Parkování

Origo partneři v Praze 5

Stěhovací služby

Výkup a prodej starého nábytku

Popis

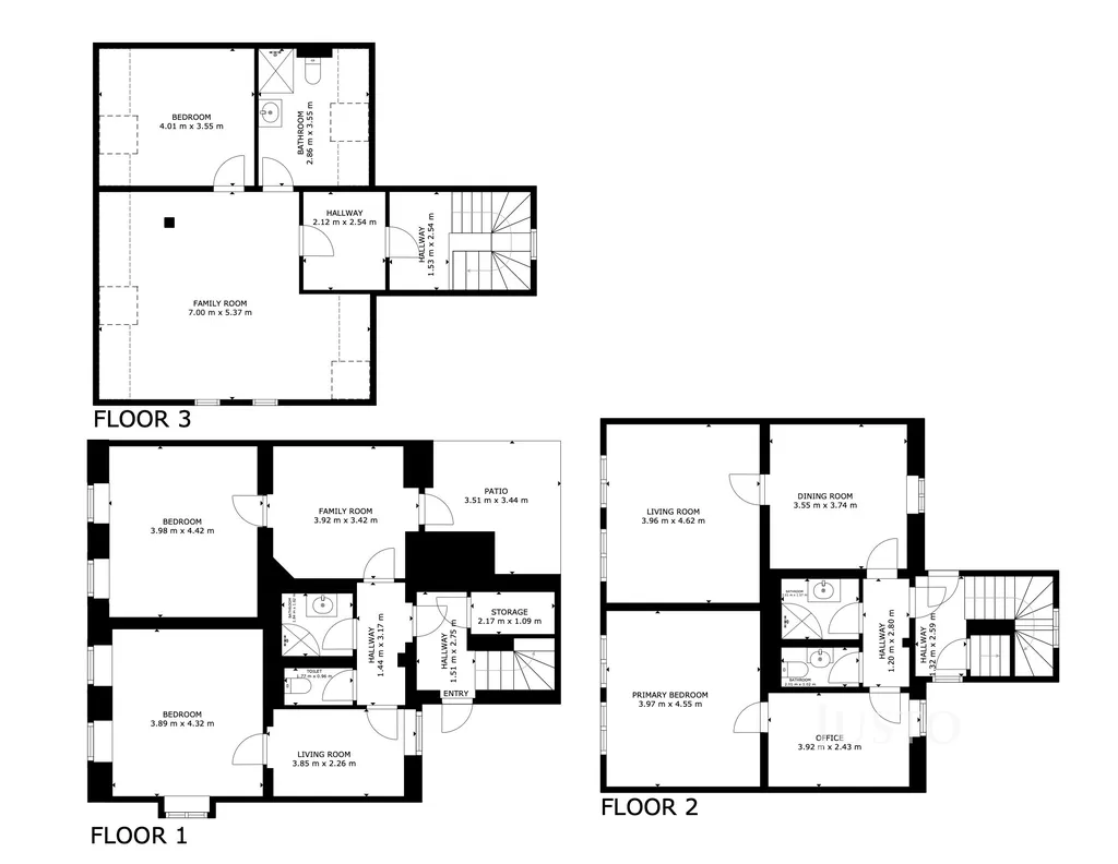
Ve výhradním zastoupení majitele nabízím k prodeji kompletně zrekonstruovaný obytný dům o užitné ploše 207 m², který se nachází v atraktivní a klidné lokalitě Prahy 5 – Zbraslav, na ulici Žitavského. Tato nemovitost představuje velmi zajímavou investiční příležitost, a to díky rozdělení na tři samostatné bytové jednotky.

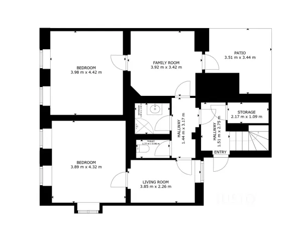
V přízemí se nachází bezbariérová bytová jednotka o dispozici 3+1. Celková plocha bytu s příslušenstvím bez podlahové plochy svislých konstrukcí je 58,9 m² a se svislými konstrukcemi je 66,4 m².
K bytu náleží terasa o výlučném užívání o ploše 12,5 m².

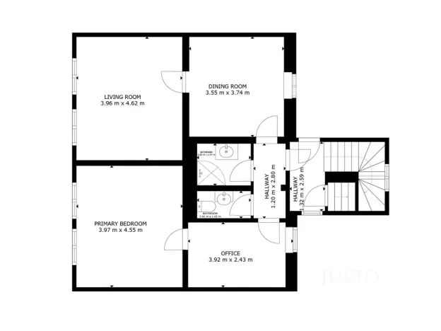
V prvním patře je bytová jednotka o dispozici 3+1. Celková plocha bytu s příslušenstvím bez podlahové plochy svislých konstrukcí je 65,1 m² a se svislými konstrukcemi je 77,1 m².

V druhém patře je podkrovní bytová jednotka o dispozici 2+kk. Celková plocha bytu s příslušenstvím bez podlahové plochy svislých konstrukcí je 58,3 m² a se svislými konstrukcemi je 63,6 m².

Každý z bytů disponuje kvalitně provedeným interiérem s moderním designem, který je připraven k okamžitému použití bez nutnosti dalších investic, vyjma kuchyňské linky.

Ke každému z bytů náleží jedno parkovací stání.

Objekt je napojen na centrální plynové vytápění, což zajišťuje komfortní a efektivní provoz všech bytů po celý rok.

Stupeň energetické náročnosti budovy je "B", což je zárukou nízkých provozních nákladů.

Dům je situován v žádané části Zbraslavi s výbornou občanskou vybaveností a dostupností služeb. V okolí najdete například supermarket Lidl (990 m), fitness centrum, restaurace a kavárny, či sportovní a rekreační zařízení. Nedaleko je i vlaková a autobusová doprava, což zajišťuje skvělou dostupnost do centra Prahy.

Tato nemovitost je vhodná jak pro dlouhodobý pronájem jednotlivých jednotek, tak i pro krátkodobé ubytování, což nabízí variabilní možnosti zhodnocení investice.

Pro více informací o této nemovitosti nebo sjednání prohlídky nás prosím kontaktujte nebo vyplňte formulář.

Makléř

Máte zájem o tuto nemovistost?

Tímto, v souladu s nařízením Evropského parlamentu a Rady (EU) 2016/679, v platném znění, prohlašuji, že mi je alespoň 16 let a uděluji tak svůj souhlas se zpracováním zadaných údajů (jméno, telefon, e-mail, ip adresa) společnosti B3 Technology, s.r.o., IČ: 07330600, se sídlem Novostavby 126/23, 435 11 Lom (správce dat), za účelem předání dotazu z tohoto formuláře Vámi vybranému inzerentovi a zpětného kontaktování mé osoby. Osobní údaje bude správce zpracovávat manuálně i automaticky přímo prostřednictvím svých zaměstnanců. Informace předané tímto formulářem budou uloženy v databázi správce maximálně po dobu 10 let. Odvolání souhlasu s uložením a zpracováním poskytnutých dat lze e-mailem na info@origo-reality.cz. V případě podezření na neoprávněné použití Vámi poskytnutých údajů máte právo předat podnět k šetření Úřadu pro ochranu osobních údajů. Více informací
Chystáte se prodat nemovitost?
Pomůžeme Vám!

Přihlášení k odběru

Nenechte si ujít nejnovější nabídky prodeje činžovních domů v Praze 5.