Prodej bytu 3+kk, Praha - Modřany, K Vystrkovu, 73 m2

K Vystrkovu, Praha, Modřany

11 990 000 Kč
/za nemovitost
včetně poplatků, včetně provize, včetně právního servisu
Hypotéka od 53 588 Kč /měs. Chci hypotéku

Parametry bytu

AdresaK Vystrkovu, Praha, Modřany
ID28780
StavbaSkeletová
Stav objektuVelmi dobrý
Patro1. z 6
VybavenoČástečně
VlastnictvíOsobní
Užitná plocha73 m2
Plocha zahrady140 m2
Třída energetické náročnostiB - Velmi úsporná
Ukazatel energetické náročnosti87 kWh/m2 za rok
Elektřina230V
OdpadVeřejná kanalizace
KomunikaceAsfaltová
DopravaVlak, Dálnice, Silnice, MHD, Autobus
VodaVodovod
Topné tělesoRadiátory
Zdroj topeníPlynový kondenzační kotel
Garáž
Sklep
Terasa
Výtah
Bezbarierový přístup
Parkování

Origo partneři v Praze 4

Stěhovací služby

Výkup a prodej starého nábytku

Popis

Vítejte ve Staromodřanské rezidenci — moderním bytovém domě v ulici K Vystrkovu, postaveném v roce 2016. Dům se nachází v klidné části pražských Modřan a nabízí ideální spojení pohodového bydlení v zeleni s výbornou dopravní dostupností do centra Prahy. Zastávky MHD jsou v docházkové vzdálenosti, tramvají se dostanete do centra zhruba za dvacet minut, a skvělé je i napojení na městský okruh a hlavní silniční tahy.

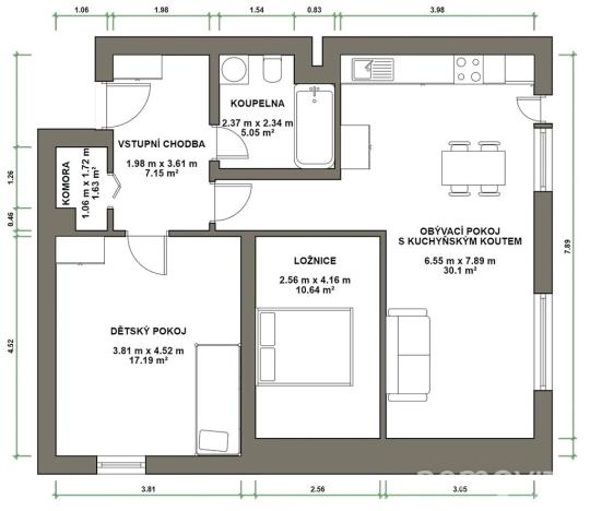
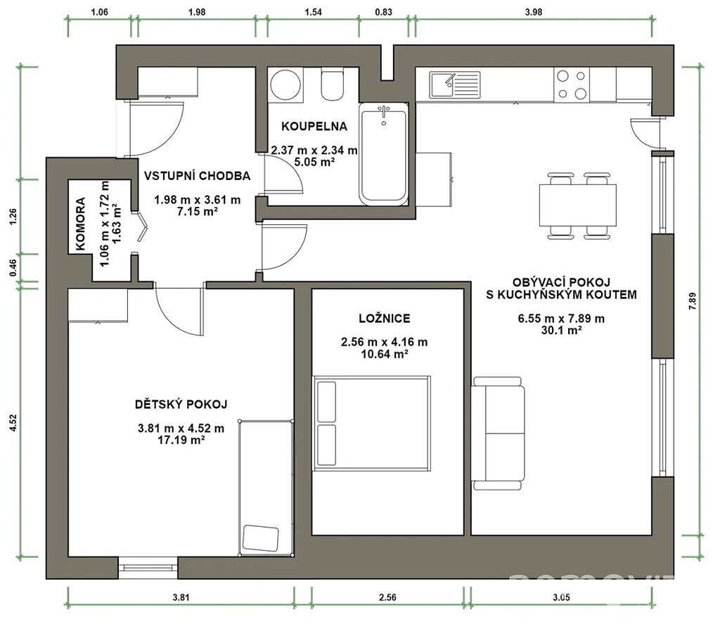
Nabízený byt je atypické 3+kk o celkové ploše 72,8 m², situovaný v přízemí domu. Jeho jedinečnost podtrhuje zahrada o výměře téměř 140 m², která náleží k bytu s právem výlučného užívání – ideální pro rodinné posezení, grilování nebo odpočinek v soukromí. Dispozice bytu nabízí prostorný obývací pokoj s kuchyňským koutem, dvě ložnice a moderní koupelnu. Dominantou obytné části je designová červená kuchyňská linka v lesku, která dodává prostoru charakter a osobitý styl.

K bytu náleží parkovací stání v kryté garáži s velmi pohodlným a širokým vjezdem a také praktická sklepní kóje.

Okolí Staromodřanské rezidence nabízí vše, co si můžete přát pro aktivní i rodinný život. V těsné blízkosti se nachází oblíbená cyklostezka podél Vltavy, ideální pro běh, brusle nebo klidné procházky. Nedaleko najdete školy, školky, obchody, lékaře i restaurace – vše pohodlně dostupné pěšky.

Modřany navíc procházejí dynamickým rozvojem. V bezprostřední blízkosti vzniká nový projekt Cukrovar Modřany, který do lokality přinese další služby, kavárny, obchody a kulturní prostory. Díky tomu oblast získává ještě větší hodnotu a stává se jednou z nejžádanějších částí Prahy pro moderní městské bydlení.

Byt ve Staromodřanské rezidenci je ideální volbou pro ty, kdo hledají klidné, moderní a komfortní bydlení s výbornou dopravní dostupností a rostoucím potenciálem celé lokality. Kombinace soukromé zahrady, promyšlené dispozice a atraktivního okolí tvoří z této nabídky jedinečnou příležitost. Přijďte se přesvědčit osobně – možná právě tady na vás čeká váš nový domov.

Inzerát obsahuje mimo fotografií a plánku také video a virtuální prohlídku nemovitosti - prosím o shlédnutí, ať máte maximum informací.

Budu se na Vás těšit na prohlídkách.

Makléř

Máte zájem o tento byt?

Tímto, v souladu s nařízením Evropského parlamentu a Rady (EU) 2016/679, v platném znění, prohlašuji, že mi je alespoň 16 let a uděluji tak svůj souhlas se zpracováním zadaných údajů (jméno, telefon, e-mail, ip adresa) společnosti B3 Technology, s.r.o., IČ: 07330600, se sídlem Novostavby 126/23, 435 11 Lom (správce dat), za účelem předání dotazu z tohoto formuláře Vámi vybranému inzerentovi a zpětného kontaktování mé osoby. Osobní údaje bude správce zpracovávat manuálně i automaticky přímo prostřednictvím svých zaměstnanců. Informace předané tímto formulářem budou uloženy v databázi správce maximálně po dobu 10 let. Odvolání souhlasu s uložením a zpracováním poskytnutých dat lze e-mailem na info@origo-reality.cz. V případě podezření na neoprávněné použití Vámi poskytnutých údajů máte právo předat podnět k šetření Úřadu pro ochranu osobních údajů. Více informací
Chystáte se prodat nemovitost?
Pomůžeme Vám!

Přihlášení k odběru

Nenechte si ujít nejnovější nabídky prodeje bytů 3+kk v Praze 4.