Prodej bytu 2+kk, Brno, Na pískové cestě, 62 m2 (ID: 1893193)

Na Pískové cestě, Brno, Bohunice

8 948 000 Kč
/za nemovitost
Hypotéka od 39 992 Kč /měs. Chci hypotéku

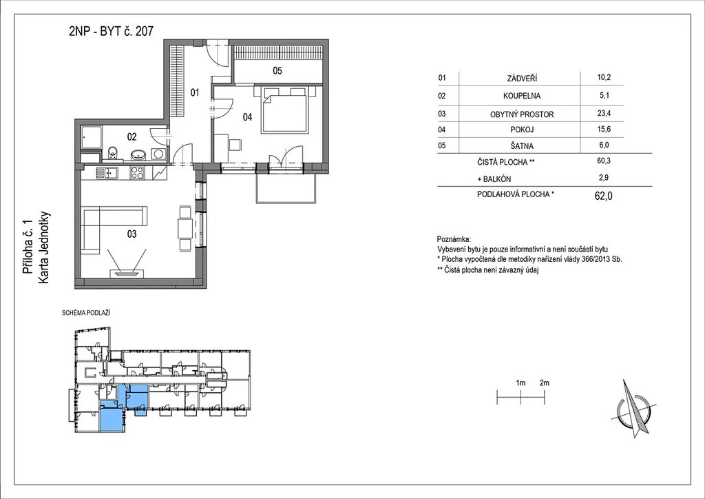
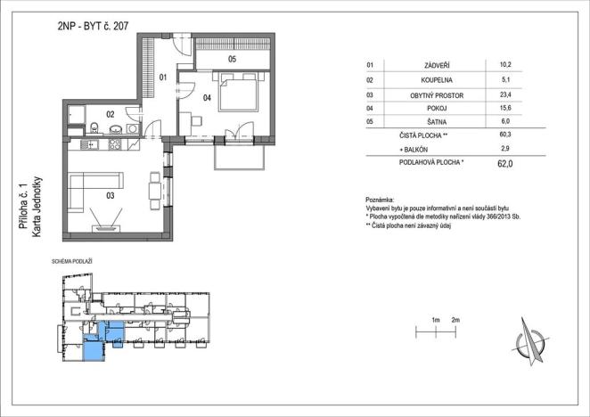
Parametry bytu

AdresaNa Pískové cestě, Brno, Bohunice
ID11202504
StavbaCihlová
Stav objektuNovostavba
Patro2.
VlastnictvíOsobní
Užitná plocha62 m2
Balkon

Origo partneři v Brně

Popis

BYT 207
Hledáte pohodlný, moderní a bezstarostný domov?
Byt 207 v projektu EDISON HOUSE je připravený k nastěhování.
Promyšlená dispozice bytu s dostatkem úložných prostor.
Obě hlavní místnosti orientované do klidného dvora, to je správná kombinace živé lokality ve městě s poklidným domácím prostředím. Představte si letní ráno, kdy po probuzení jdete pozdravit sluníčko na balkon ložnice!
V ceně bytu máte kompletní Loxone Smart Home systém:
– chytrá ventilace udržuje ideální kvalitu vzduchu a sama větrá, jak je potřeba
- automatické osvětlení reaguje na denní dobu
- stínění sledující na polohu slunce
- chytré řízení teploty, které vám ohřeje byt, když jste na cestě domů
- chytrá světla nastavují světelné nálady tak, abyste dobře viděli a večer snáze usínali
Starat se o vás bude spousta dalších funkcí. Tak vypadá domov, který šetří čas i energii a přizpůsobí se Vám pro pohodlný život.
Edison House je celý postavený ve standardu PENB A: mimořádně úsporná budova.
Stojí v Bohunicích – lokalitě, která kombinuje pohodlí, dostupnost i jistotu dlouhodobé hodnoty. Ideální pro vlastní bydlení i chytrou investici.
Dům je nově dostavěný a zbývá zde posledních pár bytů.
Poptávka po chytrém bydlení stoupá. Koupí bytu v Edisonu kupujete byt, o který bude i do budoucna vysoký zájem a lépe si bude držet svoji cenu. Má ale jednu nevýhodu: chytré byty rychle mizí.
Tak co, budete čekat, až vám byt někdo vyfoukne

Makléř

Máte zájem o tento byt?

Tímto, v souladu s nařízením Evropského parlamentu a Rady (EU) 2016/679, v platném znění, prohlašuji, že mi je alespoň 16 let a uděluji tak svůj souhlas se zpracováním zadaných údajů (jméno, telefon, e-mail, ip adresa) společnosti B3 Technology, s.r.o., IČ: 07330600, se sídlem Novostavby 126/23, 435 11 Lom (správce dat), za účelem předání dotazu z tohoto formuláře Vámi vybranému inzerentovi a zpětného kontaktování mé osoby. Osobní údaje bude správce zpracovávat manuálně i automaticky přímo prostřednictvím svých zaměstnanců. Informace předané tímto formulářem budou uloženy v databázi správce maximálně po dobu 10 let. Odvolání souhlasu s uložením a zpracováním poskytnutých dat lze e-mailem na info@origo-reality.cz. V případě podezření na neoprávněné použití Vámi poskytnutých údajů máte právo předat podnět k šetření Úřadu pro ochranu osobních údajů. Více informací
Chystáte se prodat nemovitost?
Pomůžeme Vám!

Přihlášení k odběru

Nenechte si ujít nejnovější nabídky prodeje bytů 2+kk v Brně.