Prodej bytu 2+kk, Brno, Na pískové cestě, 60 m2 (ID: 1893194)

Na Pískové cestě, Brno, Bohunice

8 999 000 Kč
/za nemovitost
Hypotéka od 40 220 Kč /měs. Chci hypotéku

Parametry bytu

AdresaNa Pískové cestě, Brno, Bohunice
ID11202503
StavbaCihlová
Stav objektuNovostavba
Patro2.
VlastnictvíOsobní
Užitná plocha60 m2
Balkon

Origo partneři v Brně

Popis

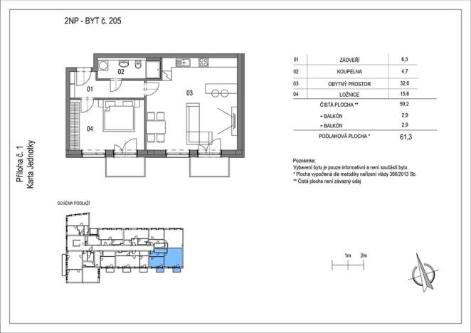
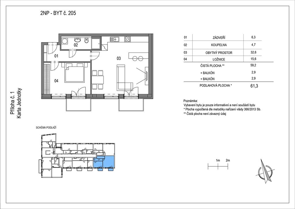
BYT 205

To je světlý a pohodlný domov v chytrém domě v Bohunicích
Hledáte byt, kde je dostatek prostoru, příjemné světlo a moderní technologie, které za Vás řeší každodenní provoz?

Byt 205 v Edison House nabízí 61,3 m² promyšlené dispozice 2+kk a dva balkony o celkové ploše 5,8 m². Otevřený obytný prostor, ložnice orientovaná do klidu vnitrobloku a dostatek světla vytvářejí atmosféru, kde se okamžitě cítíte doma.

Součástí ceny je kompletní Loxone Smart Home systém:

- automatické řízení stínění sleduje počasí a chrání byt před přehříváním
- neslyšná chytrá ventilace udržuje kvalitu vzduchu
- chytré vytápění reaguje na Vaše návyky
- osvětlení se samo přizpůsobuje denní době
- vše ovládáte jednoduše a intuitivně. Třeba přes iPad, nebo appku

Edison House je novostavba ve standardu PENB A – mimořádně úsporná budova s nízkými provozními náklady.

Stojí v Bohunicích, jedné z nejvyhledávanějších lokalit v Brně díky perfektní dostupnosti, občanské vybavenosti a silné poptávce po moderním bydlení.
Dům je po kolaudaci a k prodeji zbývá pár posledních bytů.
Po chytrých bytech roste poptávka. Lépe si totiž udržují hodnotu do budoucna.

Ozvěte se mi pro prohlídku, než vám byt někdo vyfoukne před očima!

Makléř

Máte zájem o tento byt?

Tímto, v souladu s nařízením Evropského parlamentu a Rady (EU) 2016/679, v platném znění, prohlašuji, že mi je alespoň 16 let a uděluji tak svůj souhlas se zpracováním zadaných údajů (jméno, telefon, e-mail, ip adresa) společnosti B3 Technology, s.r.o., IČ: 07330600, se sídlem Novostavby 126/23, 435 11 Lom (správce dat), za účelem předání dotazu z tohoto formuláře Vámi vybranému inzerentovi a zpětného kontaktování mé osoby. Osobní údaje bude správce zpracovávat manuálně i automaticky přímo prostřednictvím svých zaměstnanců. Informace předané tímto formulářem budou uloženy v databázi správce maximálně po dobu 10 let. Odvolání souhlasu s uložením a zpracováním poskytnutých dat lze e-mailem na info@origo-reality.cz. V případě podezření na neoprávněné použití Vámi poskytnutých údajů máte právo předat podnět k šetření Úřadu pro ochranu osobních údajů. Více informací
Chystáte se prodat nemovitost?
Pomůžeme Vám!

Přihlášení k odběru

Nenechte si ujít nejnovější nabídky prodeje bytů 2+kk v Brně.