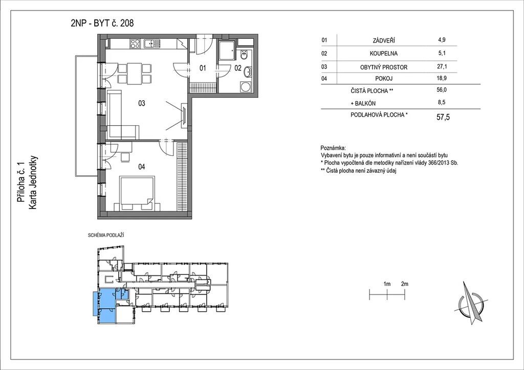
Prodej bytu 2+kk, Brno, Na pískové cestě, 58 m2

Na Pískové cestě, Brno, Bohunice

8 344 000 Kč
/za nemovitost
Hypotéka od 37 293 Kč /měs. Chci hypotéku

Parametry bytu

AdresaNa Pískové cestě, Brno, Bohunice
ID11202505
StavbaCihlová
Stav objektuNovostavba
Patro2. z 4
VlastnictvíOsobní
Užitná plocha58 m2
Třída energetické náročnostiA - Mimořádně úsporná
Ukazatel energetické náročnosti58 kWh/m2 za rok
Balkon
Výtah
Bezbarierový přístup

Origo partneři v Brně

Popis

Hledáte byt, kde se prakticky navržená dispozice potkává s moderním komfortem chytrého domu?

Podívejte se na Byt 208 v novostavbě bytového domu EDISON HOUSE.
Najdete ho v Brně, Bohunicích - nejrychleji rostoucí čtvrti s obrovským potenciálem, díky špičkovým zaměstnavatelům.

Byt Vám nabídne velkorysý prostor pro dispozici 2+ KK a přitom neplýtvá cenné metry na velké předsíně či bytové chodby. Bude Vás hýčkat podvečerním sluncem díky západní orientaci do klidné boční ulice. Užívat si jej můžete při posezení na balkoně spojujícím obě hlavní místnosti.

Součástí ceny je kompletní LOXONE SMART HOME systém:
– senzory v místnostech skenují kvalitu a teplotu vzduchu
– neslyšná chytrá ventilace průběžně dodává čistý a čerstvý vzduch
– chytré podlahové vytápění Vám vyhřeje podlahu, kdykoli je potřeba
– automatické předokenní žaluzie reagují na slunce i počasí, takže udržují v bytě příjemné klima bez přehřívání
– k tomu je k dispozici letní přichlazování
– osvětlení pracuje podle denní doby - ráno pro probuzení, večer pro lepší spánek
– senzory se starají o bezpečnost domácnosti (hlídají přítomnst v bytě, ale také například vypnou přívod vody, když vyteče pračka)

Ovládání je jednoduché: přes nástěnný iPad, mobilní aplikaci nebo chytré vypínače.
LOXONE je suverénně nejrozšířenější systém se špičkovou podporou a rozšiřováním funkcí do budoucna.

EDISON HOUSE je novostavba v energetickém standardu PENB A – mimořádně úsporná budova s nízkými náklady. Zatímco staré hloupé byty v horším standardu v budoucnu nebude nikdo chtít, špičkové chytré byty budou na ceně stoupat.

POZOR: EDISON HOUSE je dokončený a zkolaudovaný. Nejenom, že vidíte kvalitu díla, které kupujete, ale také můžete jít rovnou bydlet.

Zbývá pár posledních bytů.
Ozvěte se, ať vás někdo nepředběhne!

Makléř

Máte zájem o tento byt?

Tímto, v souladu s nařízením Evropského parlamentu a Rady (EU) 2016/679, v platném znění, prohlašuji, že mi je alespoň 16 let a uděluji tak svůj souhlas se zpracováním zadaných údajů (jméno, telefon, e-mail, ip adresa) společnosti B3 Technology, s.r.o., IČ: 07330600, se sídlem Novostavby 126/23, 435 11 Lom (správce dat), za účelem předání dotazu z tohoto formuláře Vámi vybranému inzerentovi a zpětného kontaktování mé osoby. Osobní údaje bude správce zpracovávat manuálně i automaticky přímo prostřednictvím svých zaměstnanců. Informace předané tímto formulářem budou uloženy v databázi správce maximálně po dobu 10 let. Odvolání souhlasu s uložením a zpracováním poskytnutých dat lze e-mailem na info@origo-reality.cz. V případě podezření na neoprávněné použití Vámi poskytnutých údajů máte právo předat podnět k šetření Úřadu pro ochranu osobních údajů. Více informací
Chystáte se prodat nemovitost?
Pomůžeme Vám!

Přihlášení k odběru

Nenechte si ujít nejnovější nabídky prodeje bytů 2+kk v Brně.