Prodej pozemku pro bydlení, Olomouc - Svatý Kopeček, 1011 m2

Olomouc, Svatý Kopeček

5 740 000 Kč
/za nemovitost
Hypotéka od 25 654 Kč /měs. Chci hypotéku

Parametry pozemku

AdresaOlomouc, Svatý Kopeček
ID7615
Lokalita objektuCentrum obce
Plocha pozemku1011 m2
OdpadVeřejná kanalizace
DopravaMHD
Převod do OV

Origo partneři v Olomouci

Popis

Nabízíme k prodeji exkluzivní stavební parcelu o rozloze 1011 m², nacházející se v prestižní lokalitě Svatého Kopečku, v těsné blízkosti jedinečné ZOO a s výbornou dostupností do historického centra města Olomouc. Tato výjimečná nabídka je určena pro ty, kteří si chtějí postavit moderní dvoupatrový dům, a to s již schváleným projektem.

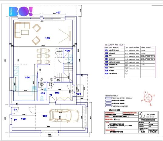
Pozemek je určen k bydlení a disponuje veškerými potřebnými inženýrskými sítěmi. K dispozici je stavební povolení, což urychluje realizaci vysněného bydlení. V rámci projektu je navržen dům s dispozicí 4+kk a garáží, který poskytuje užitnou plochu 180 m² a zastavěnou plochu 137 m², což zajišťuje komfortní a prostorné bydlení. Tento dům bude ideálním místem pro život, kde se elegance snoubí s praktickými funkcemi.

V přízemí najdeme - vstup o rozloze 4 m², zádveří o velikosti 9 m², WC 3 m², kuchyň 12,3 m², prostorný obývací pokoj o rozloze 55,2 m², komoru 3 m², terasu o velikosti 30 m², garáž 24 m² a technickou místnost 11 m².
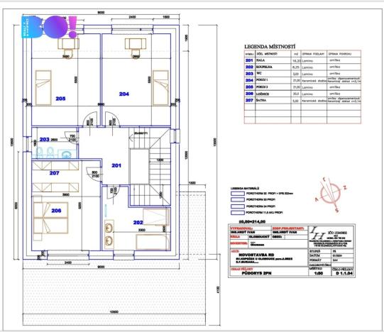
V prvním patře je hala o dispozici 16,2 m², koupelna 8,25 m², WC 3 m², pokoj 1 o velikosti 21 m², pokoj 2 o velikosti 21 m², ložnice o rozloze 20 m² a šatna 5 m².
Vytápění je navrženo podlahovým systémem, vytápění - tepelné čerpadlo + navrženo alternativní topení krbem. Energetická náročnost budovy je dle projektu zařazena do třídy B.

Svatý Kopeček je vyhledávanou lokalitou, která nabízí klidné a příjemné prostředí na dosah městského ruchu. V okolí se nachází veškerá občanská vybavenost, školky, školy, obchody a další služby, nezbytné pro spokojené rodinné bydlení. Rychlé a efektivní spojení zajišťuje MHD, což usnadňuje dopravu do Olomouce.

Jde o jedinečnou příležitost, kde můžete zrealizovat své sny o moderním a komfortním bydlení ve vyhledávané lokalitě.

V případě zájmu o prohlídku nás neváhejte kontaktovat. S financováním Vám rádi pomůžeme.

Makléř

Máte zájem o tento pozemek?

Tímto, v souladu s nařízením Evropského parlamentu a Rady (EU) 2016/679, v platném znění, prohlašuji, že mi je alespoň 16 let a uděluji tak svůj souhlas se zpracováním zadaných údajů (jméno, telefon, e-mail, ip adresa) společnosti B3 Technology, s.r.o., IČ: 07330600, se sídlem Novostavby 126/23, 435 11 Lom (správce dat), za účelem předání dotazu z tohoto formuláře Vámi vybranému inzerentovi a zpětného kontaktování mé osoby. Osobní údaje bude správce zpracovávat manuálně i automaticky přímo prostřednictvím svých zaměstnanců. Informace předané tímto formulářem budou uloženy v databázi správce maximálně po dobu 10 let. Odvolání souhlasu s uložením a zpracováním poskytnutých dat lze e-mailem na info@origo-reality.cz. V případě podezření na neoprávněné použití Vámi poskytnutých údajů máte právo předat podnět k šetření Úřadu pro ochranu osobních údajů. Více informací
Chystáte se prodat nemovitost?
Pomůžeme Vám!

Přihlášení k odběru

Nenechte si ujít nejnovější nabídky prodeje pozemků pro bydlení v Olomouci.