Prodej pozemku pro bydlení, Olomouc - Svatý Kopeček, 2254 m2

Olomouc, Svatý Kopeček

6 760 000 Kč
/za nemovitost
Hypotéka od 30 213 Kč /měs. Chci hypotéku

Parametry pozemku

AdresaOlomouc, Svatý Kopeček
ID6404
Lokalita objektuCentrum obce
Plocha pozemku2254 m2
OdpadVeřejná kanalizace
KomunikaceBetonová
DopravaSilnice, MHD
Převod do OV

Origo partneři v Olomouci

Popis

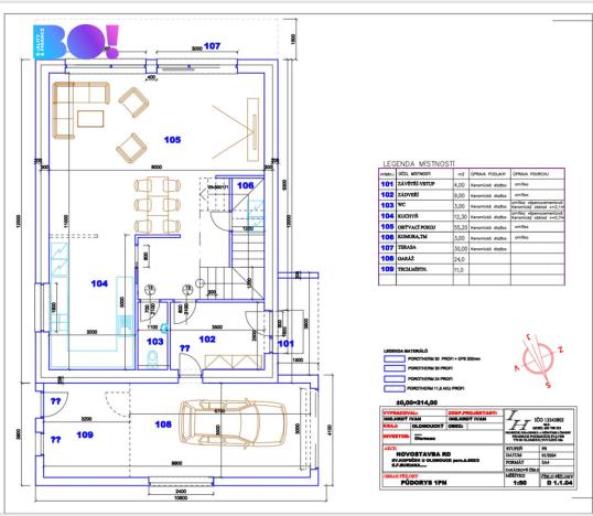
Exkluzivně nabízíme k prodeji rozsáhlý stavební pozemek se schváleným stavebním projektem o celkové rozloze 2 254 m² v klidné a rodinné lokalitě Svatý Kopeček, jen kousek od Olomouce. Tento pozemek je ideálním místem pro výstavbu dvoupatrového domu o dispozici 4+kk s garáží, který má zastavěnou plochu 137 m² a užitnou plochu 180 m². V tomto projektu se snoubí moderní architektura s funkčním uspořádáním interiéru, které je přizpůsobeno pro pohodlný život rodiny s dětmi.

V přízemí najdeme - vstup o rozloze 4 m², zádveří o velikosti 9 m², WC 3 m², kuchyň 12,3 m², prostorný obývací pokoj o rozloze 55,2 m², komoru 3 m², terasu o velikosti 30 m², garáž 24 m² a technickou místnost 11 m².
V prvním patře je hala o dispozici 16,2 m², koupelna 8,25 m², WC 3 m², pokoj 1 o velikosti 21 m², pokoj 2 o velikosti 21 m², ložnice o rozloze 20 m² a šatna 5 m².
Vytápění je navrženo podlahovým systémem, vytápění - tepelné čerpadlo + navrženo alternativní topení krbem. Energetická náročnost budovy je dle projektu zařazena do třídy B.

Pozemek se nachází v dostupnosti veškeré občanské vybavenosti, v blízkosti je mateřská a základní škola. Svatý Kopeček je velmi dobře obsluhován městskou hromadnou dopravou z Olomouce. Kromě toho budete mít v blízkosti krásnou přírodu, která vás zve k procházkám a rodinným výletům. Atraktivní lokalitu doplňuje i blízkost ZOO Olomouc či Baziliky Navštívení Panny Marie, které nabízejí skvělé možnosti pro rodinné výlety a volnočasové aktivity.

Pozemek se výborně hodí pro rodiny, které hledají prostorný dům s velkou zahradou, ideální pro všestranné využití. Zahrada poskytuje dostatek prostoru pro venkovní aktivity, zahradničení nebo pořádání rodinných setkání. Celkově se jedná o ideální místo pro rodiny, které hledají komfortní a bezpečné bydlení v krásné přírodě, a zároveň mají rádi dostupnost městských služeb.
V případě zájmu o prohlídku nás neváhejte kontaktovat.
S vyřízením financování Vám také rádi pomůžeme.

Makléř

Máte zájem o tento pozemek?

Tímto, v souladu s nařízením Evropského parlamentu a Rady (EU) 2016/679, v platném znění, prohlašuji, že mi je alespoň 16 let a uděluji tak svůj souhlas se zpracováním zadaných údajů (jméno, telefon, e-mail, ip adresa) společnosti B3 Technology, s.r.o., IČ: 07330600, se sídlem Novostavby 126/23, 435 11 Lom (správce dat), za účelem předání dotazu z tohoto formuláře Vámi vybranému inzerentovi a zpětného kontaktování mé osoby. Osobní údaje bude správce zpracovávat manuálně i automaticky přímo prostřednictvím svých zaměstnanců. Informace předané tímto formulářem budou uloženy v databázi správce maximálně po dobu 10 let. Odvolání souhlasu s uložením a zpracováním poskytnutých dat lze e-mailem na info@origo-reality.cz. V případě podezření na neoprávněné použití Vámi poskytnutých údajů máte právo předat podnět k šetření Úřadu pro ochranu osobních údajů. Více informací
Chystáte se prodat nemovitost?
Pomůžeme Vám!

Přihlášení k odběru

Nenechte si ujít nejnovější nabídky prodeje pozemků pro bydlení v Olomouci.