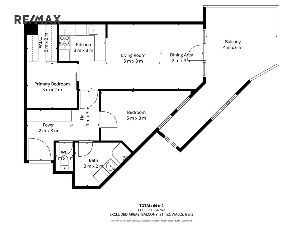
Prodej bytu 3+kk, Praha - Vysočany, Na Harfě, 61 m2 (ID: 1891387)

Na Harfě, Praha, Vysočany

9 900 000 Kč
/za nemovitost
Hypotéka od 44 247 Kč /měs. Chci hypotéku

Parametry bytu

AdresaNa Harfě, Praha, Vysočany
ID0314-NP00266
StavbaCihlová
Stav objektuVelmi dobrý
Patro2. z 10
VybavenoAno
Lokalita objektuRušná část obce
VlastnictvíOsobní
Užitná plocha61 m2
Podlahová plocha84 m2
Třída energetické náročnostiC - Úsporná
Ukazatel energetické náročnosti66.2 kWh/m2 za rok
Elektřina230V
OdpadVeřejná kanalizace
DopravaVlak, Dálnice, Silnice, MHD, Autobus
Sklep
Terasa
Výtah

Origo partneři v Praze 9

Stěhovací služby

Výkup a prodej starého nábytku

Popis

Pokud hledáte pohodlné a moderní bydlení s výbornou dostupností v osobním vlastnictví, právě jste ho našli. Tento příjemný byt o dispozici 3+kk (64 m²) s velkou terasou orientovanou do klidného vnitrobloku nabízí kombinaci městského komfortu a klidné atmosféry.

Byt byl důmyslně oproti původní dispozici upraven na 3+kk, díky čemuž poskytuje více prostoru a praktičnosti pro každodenní život.

Nachází se v oblíbené rezidenční části Na Harfě, jen pár kroků od O2 areny a nádraží Praha–Libeň, odkud se během pár minut dostanete do centra. V okolí najdete veškerou občanskou vybavenost, oblíbené procházkové trasy podél Rokytky, kavárny, restaurace i nákupní centrum Galerie Harfa.

Interiér je promyšleně řešený – obývací pokoj s jídelním koutem navazuje na terasu, která poskytuje příjemné posezení v soukromí. Kuchyň je plně vybavená a v koupelně se nachází pohodlná vana a dostatek úložného prostoru díky vestavným skříním. K bytu také náleží praktická sklepní kóje.

Výhody nemovitosti:

Skvělá dostupnost a atraktivní lokalita
Klidné prostředí vnitrobloku
Prostorná terasa 21 m²
Sklep v ceně
Blízko O2 areny a nádraží Praha–Libeň
Důmyslně upravená dispozice na 3+kk

Cena je včetně provize i všech souvisejících poplatků.

Makléř

Máte zájem o tento byt?

Tímto, v souladu s nařízením Evropského parlamentu a Rady (EU) 2016/679, v platném znění, prohlašuji, že mi je alespoň 16 let a uděluji tak svůj souhlas se zpracováním zadaných údajů (jméno, telefon, e-mail, ip adresa) společnosti B3 Technology, s.r.o., IČ: 07330600, se sídlem Novostavby 126/23, 435 11 Lom (správce dat), za účelem předání dotazu z tohoto formuláře Vámi vybranému inzerentovi a zpětného kontaktování mé osoby. Osobní údaje bude správce zpracovávat manuálně i automaticky přímo prostřednictvím svých zaměstnanců. Informace předané tímto formulářem budou uloženy v databázi správce maximálně po dobu 10 let. Odvolání souhlasu s uložením a zpracováním poskytnutých dat lze e-mailem na info@origo-reality.cz. V případě podezření na neoprávněné použití Vámi poskytnutých údajů máte právo předat podnět k šetření Úřadu pro ochranu osobních údajů. Více informací
Chystáte se prodat nemovitost?
Pomůžeme Vám!

Přihlášení k odběru

Nenechte si ujít nejnovější nabídky prodeje bytů 3+kk v Praze 9.