Prodej bytu 4+kk, Vochov, 81 m2 (ID: 1881776)

Vochov

7 290 000 Kč
/za nemovitost
Hypotéka od 32 582 Kč /měs. Chci hypotéku

Parametry bytu

AdresaVochov
IDN413
StavbaCihlová
Stav objektuNovostavba
Patro1. z 2
VybavenoČástečně
Typ objektuPatrový
Lokalita objektuOkraj obce
VlastnictvíOsobní
Užitná plocha81 m2
Podlahová plocha81 m2
Plocha zahrady157 m2
Třída energetické náročnostiB - Velmi úsporná
Elektřina230V
TopeníPodlahové
TelekomunikaceInternet, Kabelová televize
DopravaVlak, Silnice, Autobus
VodaVodovod
Sklep
Terasa
Výtah
Parkování

Origo partneři v Vochově

Podlahy

Stěhovací služby

Popis

Prodej moderního bytu 4+kk se zahradou – Vochov u Plzně

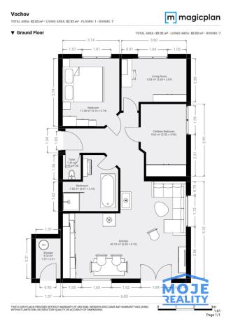
Nabízíme k prodeji, prostorný a moderně vybavený byt o dispozici 4+kk a celkové výměře 81 m², který se nachází v novostavbě z roku 2020 na okraji obce Vochov. K bytu náleží terasa o velikosti 20 m², zahrada o ploše 157 m², venkovní komora a parkovací stání před domem.

Dispozice – prostorná vstupní chodba navazuje na ložnici, pracovnu, dětský pokoj s vestavěnou skříní, samostatnou toaletu a koupelnu. Kuchyňský kout s obývacím pokojem je prostorný, světlý a s krbovými kamny. Z obývacího pokoje je přímý vstup na terasu se zahradou, odkud se otevírá trvalý výhled na rybník. Na zahradě se nachází domek na nářadí a retenční nádrž na 3 m³ vody.

Byt působí velmi vzdušně a vkusně – je vybaven moderní kuchyňskou linkou se zabudovanými spotřebiči, indukční varnou deskou, digestoří s filtrem a dostatkem úložného prostoru.

Technické informace

Byt je vytápěn elektrickým podlahovým topením s možností samostatné regulace v jednotlivých místnostech. Okna jsou plastová s izolačními skly, podlahy jsou pokryté velkoformátovou dlažbou. Ohřev vody zajišťuje elektrický bojler. Do bytu je zaveden optický internet Pilsfree. Součástí prodeje je jedno parkovací stání přímo před domem.

Lokalita

Byt se nachází v klidné části Vochova, v zástavbě novostaveb s minimálním provozem. Obec má výbornou dostupnost do Plzně, kam zajíždí přímá autobusová linka. Ve Vochově najdete mateřskou školku, dětskou skupinu a obchod, základní škola je v nedalekých Vejprnicích.

Místo nabízí ideální kombinaci přírody, klidu a pohodlného dojíždění do města.

Pro koupi bytu zajistíme kompletní realitní a právní servis, včetně zajištění financování hypotečním úvěrem.
V případě zájmu o prohlídku mě prosím kontaktujte – byt Vám rád osobně ukážu.

Makléř

Máte zájem o tento byt?

Tímto, v souladu s nařízením Evropského parlamentu a Rady (EU) 2016/679, v platném znění, prohlašuji, že mi je alespoň 16 let a uděluji tak svůj souhlas se zpracováním zadaných údajů (jméno, telefon, e-mail, ip adresa) společnosti B3 Technology, s.r.o., IČ: 07330600, se sídlem Novostavby 126/23, 435 11 Lom (správce dat), za účelem předání dotazu z tohoto formuláře Vámi vybranému inzerentovi a zpětného kontaktování mé osoby. Osobní údaje bude správce zpracovávat manuálně i automaticky přímo prostřednictvím svých zaměstnanců. Informace předané tímto formulářem budou uloženy v databázi správce maximálně po dobu 10 let. Odvolání souhlasu s uložením a zpracováním poskytnutých dat lze e-mailem na info@origo-reality.cz. V případě podezření na neoprávněné použití Vámi poskytnutých údajů máte právo předat podnět k šetření Úřadu pro ochranu osobních údajů. Více informací
Chystáte se prodat nemovitost?
Pomůžeme Vám!

Přihlášení k odběru

Nenechte si ujít nejnovější nabídky prodeje bytů 4+kk v Vochově.