Prodej bytu 3+1, Plzeň, Vojanova, 68 m2
Vojanova, Plzeň, Skvrňany
/za nemovitost
včetně DPH, včetně poplatků, včetně provize, včetně právního servisu
Parametry bytu
| Adresa | Vojanova, Plzeň, Skvrňany | 
|---|---|
| ID | 00132 | 
| Stavba | Panelová | 
| Stav objektu | Velmi dobrý | 
| Patro | 5. z 7 | 
| Vybaveno | Částečně | 
| Lokalita objektu | Sídliště | 
| Vlastnictví | Osobní | 
| Užitná plocha | 68 m2 | 
| Podlahová plocha | 68 m2 | 
| Třída energetické náročnosti | C - Úsporná | 
| Ukazatel energetické náročnosti | 84.6 kWh/m2 za rok | 
| Elektřina | 230V | 
| Plyn | Plynovod | 
| Odpad | Veřejná kanalizace | 
| Komunikace | Asfaltová | 
| Telekomunikace | Telefon, Internet | 
| Doprava | Vlak, Silnice, MHD | 
| Voda | Vodovod | 
| Topné těleso | Radiátory | 
| Zdroj topení | Centrální dálkové | 
| Zdroj teplé vody | Centrální dálkový ohřev | 
| Sklep | |
| Lodžie | |
| Výtah | 
Popis
Ve výhradním zastoupení Vám nabízíme k prodeji slunný byt v osobním vlastnictví s dispozicí 3+1 a celkovou plochou 68m2 s lodžií v ulici Vojanova. 
Panelový dům je v dobrém technickém stavu. Průběžně procházel revitalizací a díky plastovým oknům a zateplené fasádě je energetická náročnost budovy třídy C, která zaručuje úsporné bydlení. Před rokem byl vybudován nový výtah. Společenství vlastníků skvěle funguje a do budoucna plánuje další modernizace domu.
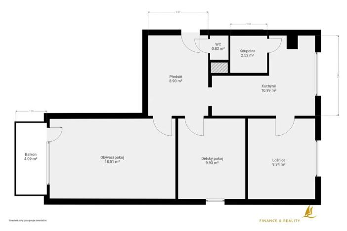
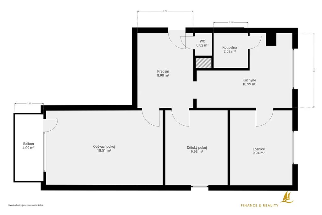
Bytová jednotka se nachází v 5. patře. Přesnou dispozici domu si můžete prohlédnout na přiloženém půdorysu. K bytu samozřejmě náleží sklepní kóje. Před lety byt prošel částečnou rekonstrukcí. Byly zde provedeny nové rozvody elektřiny, vybudováno zděné jádro. Byt je i po úpravách podlahové krytiny. V obývacím pokoji a ložnici bylo položeno nové lino. V předsíni, kuchyni, koupelně a na WC je dlažba. Zhruba před rokem dostal novou plovoucí podlahu i dětský pokoj.
Lokalita nabízí klidné a příjemné prostředí s kompletní občanskou vybaveností. V docházkové vzdálenosti najdete školu, školku, dětská hřiště, supermarket a další obchody a služby. Jistě oceníte i dobrou dopravní dostupnost. Autobusová a tramvajová zastávka je kousek od domu. Jen pár minut chůze se nachází i vlakové nádraží. Díky nově vybudovaném obchvatu se během chvilky dostanete i do ostatních částí města. 
Pro více informací nebo sjednání prohlídky mě neváhejte kontaktovat. Rád Vám byt ukáži osobně. 
S financováním Vám pomůže náš finanční specialista.
Přihlášení k odběru
Nenechte si ujít nejnovější nabídky prodeje bytů 3+1 v Plzni.
 
                                                                                     
                                                                                     
                                                                                     
                                                                                     
                                                                                     
                                                                                     
                                                                                     
                                                                                     
                                                                                     
                                                                                     
                                                                                     
                                                                                     
                                                                                     
                                                                                     
                                                                                     
                                                                                     
                                                             
                                                             
                         
         
         
         
         
         
         
         
        