Prodej bytu 1+kk, Praha, Formanská, 33 m2

Formanská, Praha, Újezd u Průhonic

5 690 000 Kč
/za nemovitost
uvedená cena je vč.provize RK a bez parkovacího stání
Hypotéka od 25 431 Kč /měs. Chci hypotéku

Parametry bytu

Náklady na bydlení1850
AdresaFormanská, Praha, Újezd u Průhonic
IDFO1133
StavbaCihlová
Stav objektuNovostavba
Patro2. z 4
VybavenoAno
Lokalita objektuOkraj obce
VlastnictvíOsobní
Užitná plocha33 m2
Třída energetické náročnostiB - Velmi úsporná
Elektřina230V
PlynPlynovod
OdpadVeřejná kanalizace
KomunikaceBetonová, Dlážděná, Asfaltová
TelekomunikaceKabelová televize
DopravaDálnice, Silnice, Autobus
VodaVodovod
Topné tělesoPodlahové vytápění
Zdroj topeníCentrální dálkové
Zdroj teplé vodyCentrální dálkový ohřev
Balkon
Sklep
Výtah
Bezbarierový přístup

Origo partneři v Praze 4

Stěhovací služby

Výkup a prodej starého nábytku

Popis

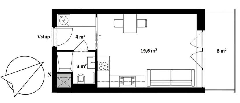
V zastoupení majitele nabízíme prodej skeletové novostavby z roku 2022, v osobním vlastnictví, dispozice 1+kk o výměře 27m2, lodžie o výměře 6 m², umístěný ve zvýšeném přízemí residenčního projektu Rezidence Stříbrná Zahrada (kolaudace domu 5/2022).

Světlý byt s orientaci na S/Z se skládá z:

Koupelny s WC a sprchou s bezhlučným automatickým odvětráním,
obývacího pokoje s kuchyňskou linkou s indukční varnou deskou, digestoří, myčkou a multifunkční mikrovlnnou trouboou, klimatizací.
Podlahové vytápění, okna trojsklo s dřevěným okenním rámem,venkovní hliníkové žaluzie s ovládáním, plovoucí podlaha-třívrstvá v kombinaci s dlažbou, rekuperační jednotka.
K dispozici je rovněž zděná sklepní kóje, 2m2.

Možnost dokoupit venkovní parkovací stání za 220 000 Kč.

Přímo před domem je zastávka autobusu, směr metro Opatov (linka „C“) nebo Průhonice a Čestlice. 5 minut autem od OC Čestlice nebo Westfield Chodov.

Financovat lze vlastními zdroji, či hypotečním úvěrem, který Vám rádi zařídíme. Ideální startovací byt pro mladší, či ideální investiční byt.
Vřele doporučuji.

Makléř

Máte zájem o tento byt?

Tímto, v souladu s nařízením Evropského parlamentu a Rady (EU) 2016/679, v platném znění, prohlašuji, že mi je alespoň 16 let a uděluji tak svůj souhlas se zpracováním zadaných údajů (jméno, telefon, e-mail, ip adresa) společnosti B3 Technology, s.r.o., IČ: 07330600, se sídlem Novostavby 126/23, 435 11 Lom (správce dat), za účelem předání dotazu z tohoto formuláře Vámi vybranému inzerentovi a zpětného kontaktování mé osoby. Osobní údaje bude správce zpracovávat manuálně i automaticky přímo prostřednictvím svých zaměstnanců. Informace předané tímto formulářem budou uloženy v databázi správce maximálně po dobu 10 let. Odvolání souhlasu s uložením a zpracováním poskytnutých dat lze e-mailem na info@origo-reality.cz. V případě podezření na neoprávněné použití Vámi poskytnutých údajů máte právo předat podnět k šetření Úřadu pro ochranu osobních údajů. Více informací
Chystáte se prodat nemovitost?
Pomůžeme Vám!

Přihlášení k odběru

Nenechte si ujít nejnovější nabídky prodeje bytů 1+kk v Praze 4.