Prodej bytu 3+1, Plzeň, Hálkova, 132 m2

Hálkova, Plzeň, Jižní Předměstí

Cena na vyžádání
/za nemovitost
info v RK, včetně DPH, včetně poplatků, včetně provize, včetně právního servisu
Získejte výhodnou HYPOTÉKU Chci hypotéku

Parametry bytu

AdresaHálkova, Plzeň, Jižní Předměstí
ID00121
StavbaCihlová
Stav objektuDobrý
Patro5. z 7
VybavenoČástečně
Lokalita objektuKlidná část obce
VlastnictvíOsobní
Užitná plocha132 m2
Podlahová plocha147 m2
Elektřina230V
OdpadVeřejná kanalizace
KomunikaceAsfaltová
TelekomunikaceTelefon, Internet
DopravaVlak, Silnice, MHD, Autobus
VodaVodovod
Topné tělesoRadiátory
Zdroj topeníPlynový kotel
Zdroj teplé vodyPlynový kotel
Balkon
Sklep
Výtah

Origo partneři v Plzni

Podlahy

Stěhovací služby

Popis

Ve výhradním zastoupení Vám nabízíme k prodeji výjimečný a prostorný byt o celkové ploše 147m2.

Součástí bytové jednotky je i balkon, který poskytuje venkovní prostor pro relaxaci či pěstování rostlin.
K bytu náleží sklep o velikosti 12m2.

Byt se nachází ve 4. patře cihlového domu. Dům s historií, postavený v roce 1909, sice nemá výtah, ale má své kouzlo a atmosféru, která je dnes již vzácná. V roce 2025 byla na domě opravena fasáda a o to víc vynikne krása tohoto domu.

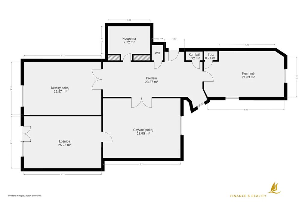
Bytová jednotka je výjimečná svou světlostí a nadstandardní velikostí. Při příchodu do bytu Vás přivítá obrovská vstupní hala ze které se vchází do dalších pokojů. Přesné rozdělení místnosti si můžete prohlédnout na zpracovaném půdorysu.
V roce 2020 byt prošel částečnou rekonstrukcí. Byla rekonstruována koupelna, WC, dále pak kuchyně s novou kuchyňskou linkou a spotřebiči. V celé kuchyni byla opravena elektroinstalace. Ve stejném roce byly zrenovovány podlahy. Byt si přitom stále zachoval svůj původní charakter – najdete zde krásné interiérové dveře, původní dřevěné parkety a vysoké stropy, které dodávají prostoru osobitý styl.
Ohřev vody a vytápění bytu zajišťuje plynový kotel.

Hálkova ulice se nachází v širším centru Plzně s výbornou občanskou vybaveností – školy, školky, obchody, restaurace i zastávky MHD - to vše v docházkové vzdálenosti. V centru města jste během několika minut.

V případě zájmu o bližší informace či sjednání prohlídky mě neváhejte kontaktovat. Ráda Vás provedu tímto výjimečným bytem.

S financováním na míru Vám rádi pomůžeme.

Těšíme se na prohlídkách!

Makléř

Máte zájem o tento byt?

Tímto, v souladu s nařízením Evropského parlamentu a Rady (EU) 2016/679, v platném znění, prohlašuji, že mi je alespoň 16 let a uděluji tak svůj souhlas se zpracováním zadaných údajů (jméno, telefon, e-mail, ip adresa) společnosti B3 Technology, s.r.o., IČ: 07330600, se sídlem Novostavby 126/23, 435 11 Lom (správce dat), za účelem předání dotazu z tohoto formuláře Vámi vybranému inzerentovi a zpětného kontaktování mé osoby. Osobní údaje bude správce zpracovávat manuálně i automaticky přímo prostřednictvím svých zaměstnanců. Informace předané tímto formulářem budou uloženy v databázi správce maximálně po dobu 10 let. Odvolání souhlasu s uložením a zpracováním poskytnutých dat lze e-mailem na info@origo-reality.cz. V případě podezření na neoprávněné použití Vámi poskytnutých údajů máte právo předat podnět k šetření Úřadu pro ochranu osobních údajů. Více informací
Chystáte se prodat nemovitost?
Pomůžeme Vám!

Přihlášení k odběru

Nenechte si ujít nejnovější nabídky prodeje bytů 3+1 v Plzni.