Prodej rodinného domu, Liberec - Liberec XIV-Ruprechtice, Jelení, 296 m2 (ID: 1809106)

Jelení, Liberec XIV-Ruprechtice

6 700 000 Kč
Hypotéka od 29 945 Kč /měs. Chci hypotéku

Parametry domu

AdresaJelení, Liberec XIV-Ruprechtice
ID4807
StavbaCihlová
Stav objektuDobrý
VybavenoNe
Druh objektuSamostatný
VlastnictvíOsobní
Užitná plocha296 m2
Zastavěná plocha229 m2
Plocha pozemku1417 m2

Origo partneři v Liberci

Rekonstrukce

Úklidové služby

Popis

Vícegenerační rodinný dům.
Pokud Vás nemovitost zaujala, nabídněte nám kupní cenu. Jsme otevřeni dohodě.
Máte zájem o bydlení ve vlastním domě, který vám zároveň může generovat splátku hypotéčního úvěru? Nebo spíš hledáte investiční příležitost.
Máme pro vás zajímavou nabídku prodeje samostatně stojícího, rodinného domu v krásném prostředí rozhraní Ruprechtic a Kateřinek v Liberci. Zaujme především milovníky přírody a klidného bydlení v zástavbě rodinných domů.
Dům postavený v roce 1913 prošel již z velké části rekonstrukcí, kdy poslední probíhala v letech 2018-2021. Nová střecha, izolace a drenáže objektu, oprava pláště budovy s přípravou na novou omítku.
Dům je částečně podsklepený, s pozemkem 1417 m² z toho zastavěná plocha a nádvoří 229 m²,
1. PP-53,7m² kotelna, sklad dřeva, dílna, schodiště, vyrovnávací nádrž.
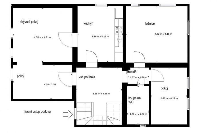
1. NP byt dispozičně 3+1 užitná plocha 103,6m²
- koupelna- 5m²
hala se schodištěm-20,2m²
kuchyně-14,3m²
ložnice se zděnou šatnou-18.9m²
prostorný obývák-29,9m²
pokoj-11,3m²
zádveří-2,4m²
komora-1,6m²

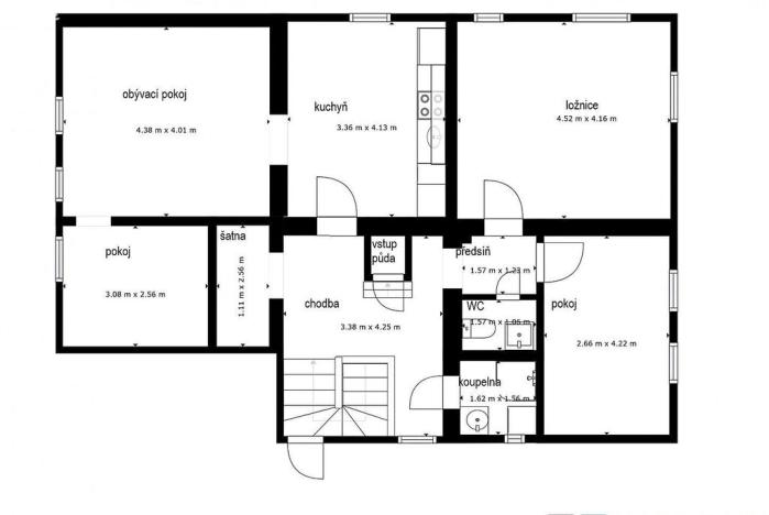
2. NP obytné podkroví dispozičně 4+1 užitná plocha 90,25m²
- koupelna-3,5m²
samostatné WC-1,1m²
šatna-2,75m²
kuchyně-14m²
obývací pokoj-17,6m²
1. pokoj-8m²
2. pokoj-12m²
ložnice-18,5m²
chodba-11,2m²
komora1,6m²

Podkroví (půda)-48,5m²
Příprava -topení, odpad, voda, elektřina.
V současné době 2 bytové jednotky, které lze rozdělit na 4 samostatné jednotky.
- základy s izolací a drenáží proti zemní vlhkosti,
odvod dešťové vody, svislé nosné konstrukce jsou zděné
s hrubou vápenitou omítkou, vodorovné konstrukce jsou klenbové, monolitické betonové
a v 1. NP a obyvatelné podkroví dřevěné s izolací 200mm a sádrokartonovým podhledem,
vnitřní svislé zdivo štuková omítka, okna dvojitá dřevěná špaletová,
střecha konstrukce krovu dřevěná s bedněním, střešní krytina šablony Capacco, klempířské a okapové prvky Al barvené,
podlahy dřevěné, PVC, keramická dlažba, laminátová, schodiště kamenné.
Elektrické rozvody Cu, rozvody vody a odpadu ppr (plast. ).
Topení lokální, kotel na tuhá paliva 32kw, nerezová vložka komínového tělesa
a El. kotel 24kw s radiátory,
ohřev vody bojler(vše kombinováno s topením), odpad sveden do septiku na pozemku.
Zdroj vody vlastní studna na pozemku s průtokovou vyrovnávací nádrží 2,5m3 a
vlastním čerpadlem v 1. PP.
El. připojení hl. jistič 3x25A

Více informací, případně domluva prohlídky u makléře

Makléř

Máte zájem o tento dům?

Tímto, v souladu s nařízením Evropského parlamentu a Rady (EU) 2016/679, v platném znění, prohlašuji, že mi je alespoň 16 let a uděluji tak svůj souhlas se zpracováním zadaných údajů (jméno, telefon, e-mail, ip adresa) společnosti B3 Technology, s.r.o., IČ: 07330600, se sídlem Novostavby 126/23, 435 11 Lom (správce dat), za účelem předání dotazu z tohoto formuláře Vámi vybranému inzerentovi a zpětného kontaktování mé osoby. Osobní údaje bude správce zpracovávat manuálně i automaticky přímo prostřednictvím svých zaměstnanců. Informace předané tímto formulářem budou uloženy v databázi správce maximálně po dobu 10 let. Odvolání souhlasu s uložením a zpracováním poskytnutých dat lze e-mailem na info@origo-reality.cz. V případě podezření na neoprávněné použití Vámi poskytnutých údajů máte právo předat podnět k šetření Úřadu pro ochranu osobních údajů. Více informací
Chystáte se prodat nemovitost?
Pomůžeme Vám!

Přihlášení k odběru

Nenechte si ujít nejnovější nabídky prodeje rodinných domů v Liberci.