Prodej rodinného domu, Liberec - Liberec XIV-Ruprechtice, Dračí, 153 m2

Dračí, Liberec XIV-Ruprechtice - Liberec (nečleněné město)

8 500 000 Kč
/za nemovitost
Hypotéka od 37 990 Kč /měs. Chci hypotéku

Parametry domu

AdresaDračí, Liberec XIV-Ruprechtice - Liberec (nečleněné město)
IDN2034
StavbaCihlová
Stav objektuPo rekonstrukci
Typ objektuPatrový
Druh objektuSamostatný
Užitná plocha153 m2
Zastavěná plocha82 m2
Podlahová plocha142 m2
Plocha pozemku1500 m2
Třída energetické náročnostiD - Méně úsporná
Elektřina400V
OdpadČOV pro celý objekt
TopeníÚstřední elektrické
DopravaVlak, Dálnice, Silnice, MHD, Autobus
VodaMístní zdroj vody
Sklep
Parkování

Origo partneři v Liberci

Rekonstrukce

Úklidové služby

Popis

Na prodej Vám nabízíme krásný rodinný dům, umístěný na západním svahu nad údolím Černé Nisy. Nemovitost se nachází v unikátní lokalitě, která jedinečným způsobem spojuje výhodu bydlení nedaleko centra města Liberce s oázou klidu na polosamotě v srdci přírody.

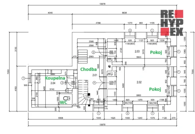
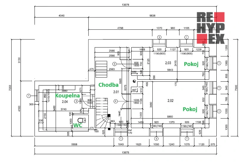
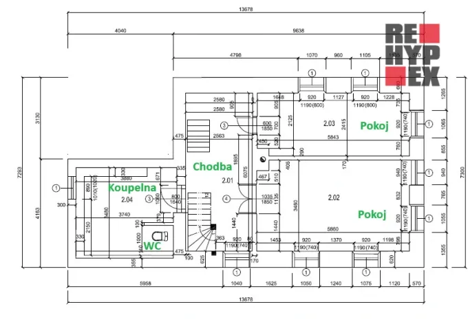
Dispozice domu je 4+kk. V přízemí se nachází komora (spíž), samostatné WC, prostorná kuchyně, předsíň a sklep s klenutým stropem z kamene. V prvním patře naleznete útulný obývací pokoj a pracovnu (obě místnosti s přípravou na kamna), dále pak prostornou koupelnu s luxusní rohovou vanou, bojlerem, závěsným WC Geberit, přípravou pro pračku a myčku. Třešničkou na dortu je rozsáhlý podkrovní prostor, který lze buď ponechat v současné podobě nebo jednoduše přepažit na několik menších pokojů dle přání majitele.

Dům prošel rekonstrukcí s důrazem na zachování původní podoby ve stylu venkovského stavení, ale při použití nejmodernějších postupů a materiálů. Střecha, pokrytá novou krytinou, získala novou izolaci a zateplení PUR pěnou, která v létě brání zahřívání interiéru a v zimě tepelně izoluje. Okenní výplně mají izolační trojskla s tepelným koeficientem 0,6m. Zateplení fasády tvoří polystyren o tloušťce 10 cm, došlo k výměně okapů a svodů i hromosvodu. Nově byly instalovány rozvody vody, elektřiny a topný systém včetně radiátorů a kotle. Kuchyně je připravena na instalaci kuchyňské linky. Samozřejmostí je pečlivě provedená izolace proti radonu, a to po celé zastavěné ploše domu. V současné době je zažádáno o změnu z čísla evidenčního na číslo popisné.

Na dům navazuje prostorná členitá zahrada o velikosti 1500 m2 se studánkou, skalním masivem, prostorem pro letní posezení, pergolu nebo venkovní krb. Zahrada umožňuje přímý přístup do lesa. Přístup k nemovitosti poskytuje obecní komunikace přes most z ulice Kateřinská. Parkovat lze ve spodní části pozemku u příjezdové komunikace i přímo u domu. Autem se dostanete do centra Liberce za 8 minut a do Bedřichova (jedno z center v Jizerských horách) za 10 minut. Zastávka MHD se nachází na nedaleké Kateřinské ulici, po které zároveň vede cyklistická stezka č. 3036 a křižuje ji modře značená turistická trasa. Veškerá občanská vybavenost v místě.

Makléř

Máte zájem o tento dům?

Tímto, v souladu s nařízením Evropského parlamentu a Rady (EU) 2016/679, v platném znění, prohlašuji, že mi je alespoň 16 let a uděluji tak svůj souhlas se zpracováním zadaných údajů (jméno, telefon, e-mail, ip adresa) společnosti B3 Technology, s.r.o., IČ: 07330600, se sídlem Novostavby 126/23, 435 11 Lom (správce dat), za účelem předání dotazu z tohoto formuláře Vámi vybranému inzerentovi a zpětného kontaktování mé osoby. Osobní údaje bude správce zpracovávat manuálně i automaticky přímo prostřednictvím svých zaměstnanců. Informace předané tímto formulářem budou uloženy v databázi správce maximálně po dobu 10 let. Odvolání souhlasu s uložením a zpracováním poskytnutých dat lze e-mailem na info@origo-reality.cz. V případě podezření na neoprávněné použití Vámi poskytnutých údajů máte právo předat podnět k šetření Úřadu pro ochranu osobních údajů. Více informací
Chystáte se prodat nemovitost?
Pomůžeme Vám!