Prodej rodinného domu, Kratonohy, 114 m2

Kratonohy

9 700 000 Kč

včetně provize a služeb
Hypotéka od 43 353 Kč /měs. Chci hypotéku

Parametry domu

AdresaKratonohy
IDN637
StavbaSmíšená
Stav objektuDobrý
Druh objektuSamostatný
Lokalita objektuKlidná část obce
Užitná plocha114 m2
Zastavěná plocha114 m2
Plocha pozemku3740 m2
Třída energetické náročnostiG - Mimořádně nehospodárná

Origo partneři v Kratonohách

Popis

Zprostředkujeme Vám prodej zděného rodinného domu o zastavěné ploše 114 m² s jedním nadzemním podlažím, postaveného v roce 1945 a postupně rozšiřovaného dle potřeb majitelů. Dům byl donedávna obýván a je v dobrém technickém stavu. Součástí nemovitosti je rozsáhlá stodola s možností rozšíření horního patra pro bydlení.

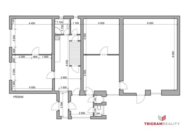
Dispozice přízemí:
• prostorné vstupní zádveří s toaletou
• obytná kuchyně
• koupelna se sprchou, vanou a umyvadlem
• místnost na potraviny, vstup do sklepa
• průchozí obývací pokoj navazující na ložnici
• technická místnost, komora, kotelna a sklad dřeva/uhlí

Podkroví:
• obytná místnost propojená s chodbou
• zrcadlově řešené dva pokoje na každé straně
• možnost rozšíření do půdních prostor (projekt z 90. let, dosud nerealizován)

Technické parametry:
• elektřina 230/400 V, rozvody plynu instalovány před 4 lety
• Plastová okna (cca 10 let), původní fasáda a střecha
• vytápění plynovým kotlem nebo kotlem na tuhá paliva (obě varianty funkční)
• obecní vodovod, kanalizace napojená na centrální ČOV, na pozemku navíc jímka
• studna - využití obou vodních zdrojů

Pozemek a možnosti využití:
Celková výměra 3740m², průchozí stodola s prostorem pro automobil či stroje. Pozemek lze rozdělit na 2-3 parcely s možností výstavby dalších rodinných domů.

Výhoda pro kupující:
Možnost čerpat dotace z programu Oprav dům po babičce.

Lokalita:
Obec Kratonohy leží 16 km od Hradce Králové, 12 km od Chlumce nad Cidlinou a 10 minut od dálnice D11. V obci se nachází škola, školka, obchod, hostinec, kulturní sál, sportovní hřiště a čerpací stanice. Klidná poloha nabízí příjemné bydlení s dobrou dostupností města.

Doporučujeme osobní prohlídku – přijďte se přesvědčit o potenciálu této nemovitosti.

Makléř

Máte zájem o tento dům?

Tímto, v souladu s nařízením Evropského parlamentu a Rady (EU) 2016/679, v platném znění, prohlašuji, že mi je alespoň 16 let a uděluji tak svůj souhlas se zpracováním zadaných údajů (jméno, telefon, e-mail, ip adresa) společnosti B3 Technology, s.r.o., IČ: 07330600, se sídlem Novostavby 126/23, 435 11 Lom (správce dat), za účelem předání dotazu z tohoto formuláře Vámi vybranému inzerentovi a zpětného kontaktování mé osoby. Osobní údaje bude správce zpracovávat manuálně i automaticky přímo prostřednictvím svých zaměstnanců. Informace předané tímto formulářem budou uloženy v databázi správce maximálně po dobu 10 let. Odvolání souhlasu s uložením a zpracováním poskytnutých dat lze e-mailem na info@origo-reality.cz. V případě podezření na neoprávněné použití Vámi poskytnutých údajů máte právo předat podnět k šetření Úřadu pro ochranu osobních údajů. Více informací
Chystáte se prodat nemovitost?
Pomůžeme Vám!

Přihlášení k odběru

Nenechte si ujít nejnovější nabídky prodeje rodinných domů v Kratonohách.