Prodej rodinného domu, Praha - Liboc, Ke Džbánu, 290 m2

Ke Džbánu, Praha 6, Liboc

29 990 000 Kč
/za nemovitost
Hypotéka od 134 037 Kč /měs. Chci hypotéku

Parametry domu

AdresaKe Džbánu, Praha 6, Liboc
ID24353
StavbaCihlová
Stav objektuPřed rekonstrukcí
VybavenoČástečně
Typ objektuPatrový
Druh objektuŘadový
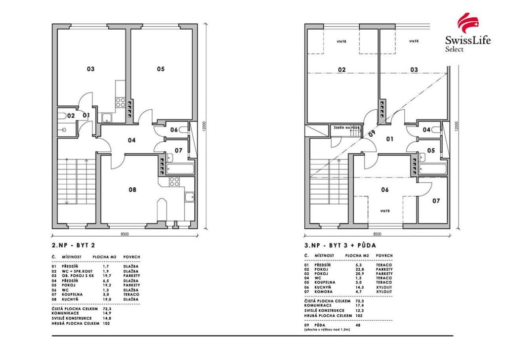
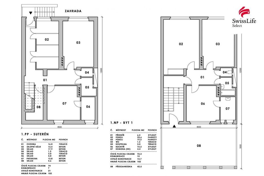
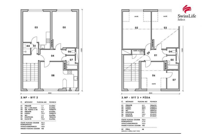
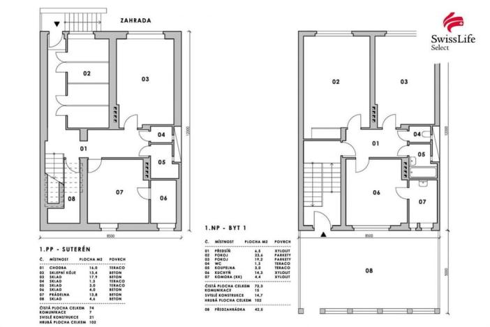
Užitná plocha290 m2
Zastavěná plocha102 m2
Podlahová plocha408 m2
Plocha pozemku374 m2
Plocha zahrady230 m2
Třída energetické náročnostiG - Mimořádně nehospodárná
DopravaVlak, MHD, Autobus
VodaVodovod
Sklep
Bezbarierový přístup

Origo partneři v Praze 6

Stěhovací služby

Výkup a prodej starého nábytku

Popis

Rodinný dům v klidné ulici Ke Džbánu, jen 3 minuty chůze od tramvajové zastávky Divoká Šárka. Přímý výhled do zeleně, skvělá dostupnost do centra i na letiště, přírodní rezervace za rohem.

Čtyři nadzemní podlaží včetně půdy a jedno podzemní. Každé patro má výměru cca 102 m, celková užitná plocha tedy činí 408 m. Na pozemku o celkové výměře 332 m se nachází také zahrada o rozloze 230 m. Dispozice domu je aktuálně připravena pro 5 samostatných bytových jednotek, zapsání v katastru zatím neproběhlo. Půdní prostor umožňuje další rozšíření například o dvě další bytové jednotky.

Stav nemovitosti vyžaduje kompletní rekonstrukci. Požár způsobený nedopalkem zanechal interiér začouzený, statika i konstrukce domu však zůstaly neporušené. Majitel již zahájil výmalbu a základní obnovu prostoru.

Investiční potenciál je zásadní. Vzniknout může projekt nájemního bydlení, bytový dům k prodeji nebo vícegenerační rodinné bydlení.
Dům není zatížen právními vadami a je ihned k dispozici.

Zaujalo Vás to? Zavolejte si a rovnou si domluvte prohlídku.
Podobné příležitosti v této části Prahy se objevují jen výjimečně.

Makléř

Máte zájem o tento dům?

Tímto, v souladu s nařízením Evropského parlamentu a Rady (EU) 2016/679, v platném znění, prohlašuji, že mi je alespoň 16 let a uděluji tak svůj souhlas se zpracováním zadaných údajů (jméno, telefon, e-mail, ip adresa) společnosti B3 Technology, s.r.o., IČ: 07330600, se sídlem Novostavby 126/23, 435 11 Lom (správce dat), za účelem předání dotazu z tohoto formuláře Vámi vybranému inzerentovi a zpětného kontaktování mé osoby. Osobní údaje bude správce zpracovávat manuálně i automaticky přímo prostřednictvím svých zaměstnanců. Informace předané tímto formulářem budou uloženy v databázi správce maximálně po dobu 10 let. Odvolání souhlasu s uložením a zpracováním poskytnutých dat lze e-mailem na info@origo-reality.cz. V případě podezření na neoprávněné použití Vámi poskytnutých údajů máte právo předat podnět k šetření Úřadu pro ochranu osobních údajů. Více informací
Chystáte se prodat nemovitost?
Pomůžeme Vám!

Přihlášení k odběru

Nenechte si ujít nejnovější nabídky prodeje rodinných domů v Praze 6.