Prodej bytu 3+1, Praha - Libuš, Na domovině, 75 m2

Na domovině, Praha, Libuš

6 600 000 Kč
/za nemovitost
včetně provize a právních služeb
Hypotéka od 29 498 Kč /měs. Chci hypotéku

Parametry bytu

Náklady na bydlení8700,-Kč
AdresaNa domovině, Praha, Libuš
ID1882025
StavbaPanelová
Stav objektuVelmi dobrý
Patro2. z 7
VybavenoČástečně
Lokalita objektuKlidná část obce
VlastnictvíDružstevní
Užitná plocha75 m2
Třída energetické náročnostiC - Úsporná
Elektřina230V
OdpadVeřejná kanalizace
KomunikaceAsfaltová
TelekomunikaceInternet, Kabelové rozvody
DopravaVlak, Dálnice, Silnice, MHD, Autobus
VodaVodovod
Topné tělesoRadiátory
Zdroj topeníÚstřední dálkové
Zdroj teplé vodyCentrální dálkový ohřev
Sklep
Lodžie
Výtah
Bezbarierový přístup
Převod do OV

Origo partneři v Praze 4

Stěhovací služby

Výkup a prodej starého nábytku

Popis

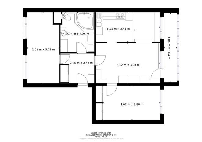
Nabízíme prodej bytu v družstevním vlastnictví se splacenou anuitou o výměře 3+1, 75,6 m2 + lodžie 6 m2 + sklep na adrese: Na Domovině, Praha 4 Libuš.

Bytová jednotka se nachází v 1 patře (2NP) s výtahem.
Byt se skládá ze tří pokojů: 17,3 m2, 14,8 m2, 12,8 m2, kuchyně 14,4m2, předsíně 10,7 m2, WC 1 m2, koupelny 2,9 m2, komory 1,70 m2 a zasklené Lodžie 6 m2.
Dále k bytové jednotce náleží sklep 1,5 m2 v suterénu domu.
V bytové jednotce není zaveden plyn, je zde dálkové topení s ohřevem teplé vody, na podlahách pokojů je plovoucí podlaha a koberce, v ostatních prostorách keramika.
Elektřina v bytě původní. Voda a odpady nové, vyzděné bytové jádro.
Dům je po rekonstrukci střecha, zateplení domu, vnitřní prostory domu a výtah. V domě se též nachází kolárna.
Dobrá dopravní dostupnost do centra Prahy, autobus a metro Kačerov nebo Budějovická cca 15 min.
V okolí školy, školka, obchody, Modřanská rokle

Makléř

Máte zájem o tento byt?

Tímto, v souladu s nařízením Evropského parlamentu a Rady (EU) 2016/679, v platném znění, prohlašuji, že mi je alespoň 16 let a uděluji tak svůj souhlas se zpracováním zadaných údajů (jméno, telefon, e-mail, ip adresa) společnosti B3 Technology, s.r.o., IČ: 07330600, se sídlem Novostavby 126/23, 435 11 Lom (správce dat), za účelem předání dotazu z tohoto formuláře Vámi vybranému inzerentovi a zpětného kontaktování mé osoby. Osobní údaje bude správce zpracovávat manuálně i automaticky přímo prostřednictvím svých zaměstnanců. Informace předané tímto formulářem budou uloženy v databázi správce maximálně po dobu 10 let. Odvolání souhlasu s uložením a zpracováním poskytnutých dat lze e-mailem na info@origo-reality.cz. V případě podezření na neoprávněné použití Vámi poskytnutých údajů máte právo předat podnět k šetření Úřadu pro ochranu osobních údajů. Více informací
Chystáte se prodat nemovitost?
Pomůžeme Vám!

Přihlášení k odběru

Nenechte si ujít nejnovější nabídky prodeje bytů 3+1 v Praze 4.