Prodej bytu 3+1, Praha - Krč, Budějovická, 77 m2

Budějovická, Praha 4

10 385 000 Kč
/za nemovitost
Hypotéka od 46 415 Kč /měs. Chci hypotéku

Parametry bytu

AdresaBudějovická, Praha 4
ID257-NP01363
StavbaCihlová
Stav objektuVelmi dobrý
Patro5. z 6
VlastnictvíOsobní
Užitná plocha77 m2
Podlahová plocha77 m2
Třída energetické náročnostiC - Úsporná
Elektřina230V
PlynPlynovod
OdpadVeřejná kanalizace
DopravaMHD
VodaVodovod
Sklep
Výtah

Origo partneři v Praze 4

Stěhovací služby

Výkup a prodej starého nábytku

Popis

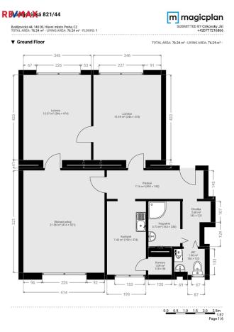
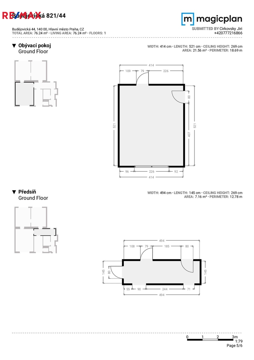
Nabízíme ke koupi světlý a pečlivě udržovaný byt o dispozici 3+1 (77 m²), umístěný v 5. nadzemním podlaží cihlového domu s výtahem ve vyhledávané lokalitě Prahy 4, jen několik minut chůze od stanice metra Budějovická.
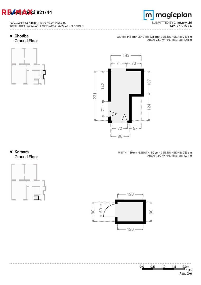
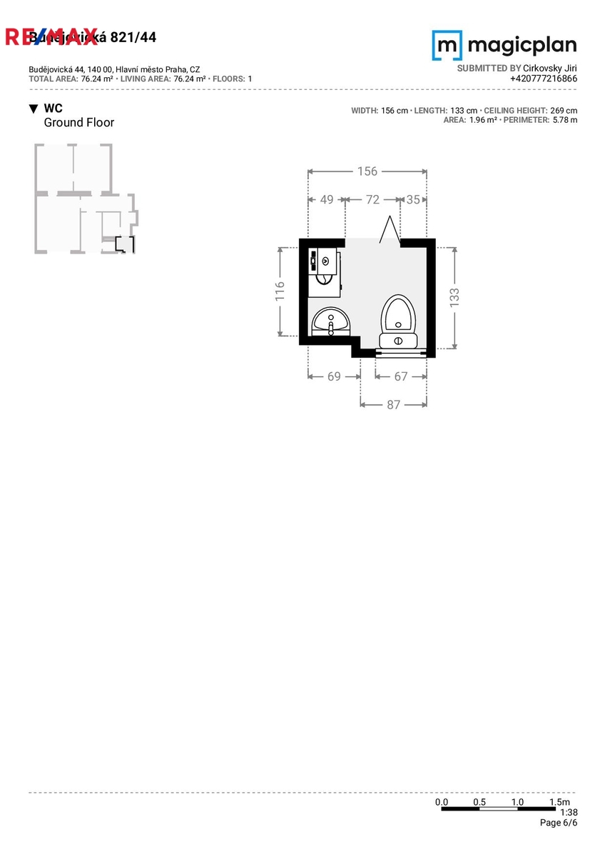
Dispozici tvoří prostorný obývací pokoj (22 m2), kuchyně se spíží, dvě ložnice (15,5 a 15,7 m2), koupelna se sprchovým koutem, samostatná toaleta a předsíň. Dále je k dispozici opravdu velká sklepní kóje s právem výhradního užívání. Byt má dobrou orientaci vůči světovým stranám – obývací pokoj s kuchyní jsou situovány na jihozápad, což zajišťuje příjemné světlo, ložnice jsou pak orientované na severovýchod. Plastová okna jsou opatřena venkovními elektrickými žaluziemi, dřevěné parkety v obytných místnostech, v kuchyni marmoleum, dlažba v koupelně, na toaleta a v předsíni. Udržovaný byt prošel částečnou rekonstrukcí: podhledy, částečně elektřina, renovace parket a aktuálně nová dosud nepoužívaná kuchyňská linka. Vytápění zajišťuje plynový kotel Vaillant.
Dům po revitalizaci – zateplení, střecha, společné prostory, stoupačky, výtah. Těsně za domem se nachází zelené prostranství s dětským hřištěm.
Lokalita nabízí vynikající občanskou vybavenost i dopravní dostupnost. V docházkové vzdálenosti se nachází mateřská a základní škola, gymnázium, dětská hřiště, restaurace, kavárny, poliklinika i obchodní centrum. Pro aktivní odpočinek je ideálním místem blízký park Kavčí hory, vhodný pro procházky, sport i relaxaci nebo to není daleko do Krčského a Michelského lesa. Na metro Budějovická dojdete do pěti minut, zastávka autobusu rovněž pár kroků a automobilem se snadno napojíte na magistrálu a na Jižní spojku.
Pokud tedy hledáte byt v žádané lokalitě a ve skvěle dostupné části Prahy, přijďte se přesvědčit osobně, zda se tato nemovitost stane Vaším novým domovem, kam se budete rádi vracet….

Makléř

Máte zájem o tento byt?

Tímto, v souladu s nařízením Evropského parlamentu a Rady (EU) 2016/679, v platném znění, prohlašuji, že mi je alespoň 16 let a uděluji tak svůj souhlas se zpracováním zadaných údajů (jméno, telefon, e-mail, ip adresa) společnosti B3 Technology, s.r.o., IČ: 07330600, se sídlem Novostavby 126/23, 435 11 Lom (správce dat), za účelem předání dotazu z tohoto formuláře Vámi vybranému inzerentovi a zpětného kontaktování mé osoby. Osobní údaje bude správce zpracovávat manuálně i automaticky přímo prostřednictvím svých zaměstnanců. Informace předané tímto formulářem budou uloženy v databázi správce maximálně po dobu 10 let. Odvolání souhlasu s uložením a zpracováním poskytnutých dat lze e-mailem na info@origo-reality.cz. V případě podezření na neoprávněné použití Vámi poskytnutých údajů máte právo předat podnět k šetření Úřadu pro ochranu osobních údajů. Více informací
Chystáte se prodat nemovitost?
Pomůžeme Vám!

Přihlášení k odběru

Nenechte si ujít nejnovější nabídky prodeje bytů 3+1 v Praze 4.