Prodej bytu 3+1, Praha, Urbánkova, 80 m2

Urbánkova, Praha 4

9 998 000 Kč
/za nemovitost
Rezervováno. Cena včetně provize RK a právních služeb
Hypotéka od 44 685 Kč /měs. Chci hypotéku

Parametry bytu

AdresaUrbánkova, Praha 4
IDN2516852
StavbaPanelová
Stav objektuVelmi dobrý
Patro4. z 7
VybavenoNe
Lokalita objektuSídliště
VlastnictvíOsobní
Užitná plocha80 m2
Třída energetické náročnostiB - Velmi úsporná
Elektřina230V, 400V
OdpadVeřejná kanalizace
KomunikaceAsfaltová
TelekomunikaceInternet, Kabelová televize
DopravaMHD, Autobus
VodaVodovod
Sklep
Lodžie
Výtah
Nízkoenergetický

Origo partneři v Praze 4

Stěhovací služby

Výkup a prodej starého nábytku

Popis

REZERVOVÁNO.
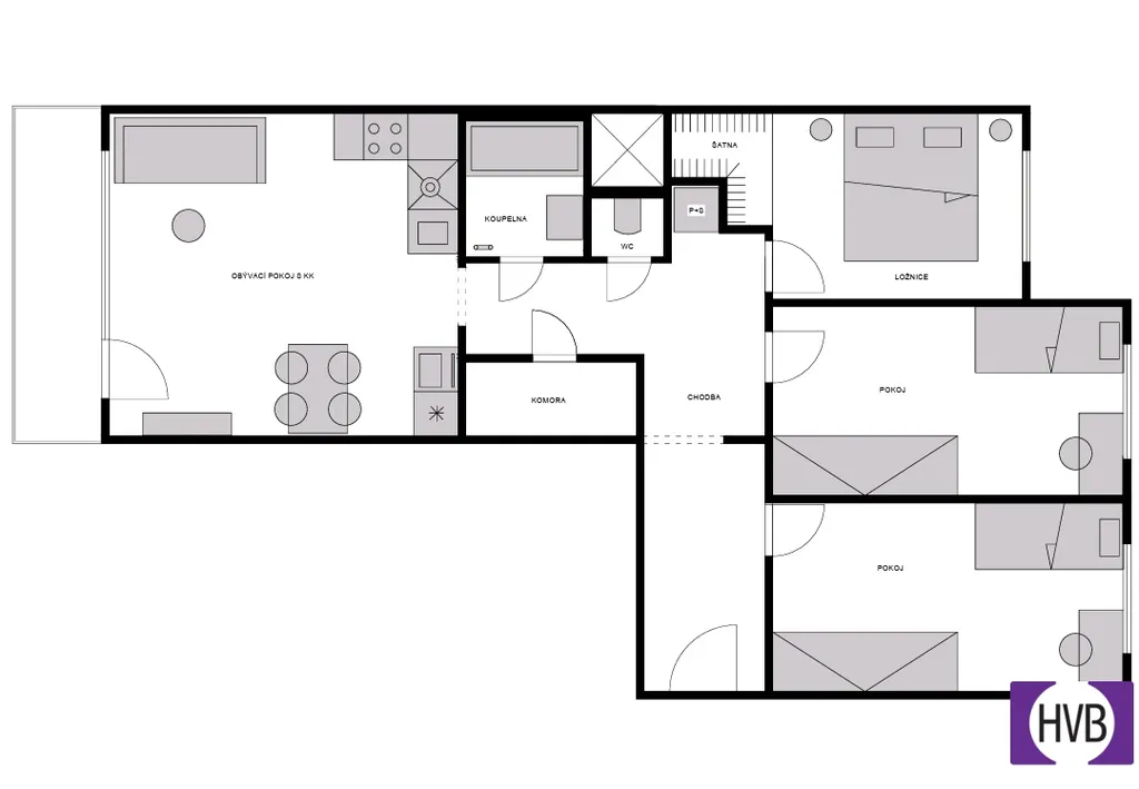
Nabízíme k prodeji světlý prostorný byt po kompletní rozsáhlé rekonstrukci o dispozici 3+1 s lodžií o celkové výměře cca 81m2, nacházející se na adrese ul. Urbánkova Praha - Modřany.

Tato nemovitost, situovaná ve 3. patře panelové budovy, nabízí pěkný výhled na okolí. Dispozici tvoří vstupní chodba, obývací pokoj s plně vybaveným kuchyňským koutem, tři obytné místnosti, koupelna, oddělené místo pro pračku, velká komora a samostatné WC. K bytu patří sklep 3.2m2. Bydlení je navrženo s ohledem na moderní životní styl, vybaveno kvalitními materiály a promyšlenými detaily. Součástí bytu je také prostorná lodžie cca 4.3m2.

Nízkoenergetická budova třídy B prošla revitalizací. V blízkosti nemovitosti se nachází veškerá občanská vybavenost, včetně obchodů a volnočasových aktivit, což činí tuto lokalitu velmi atraktivní pro všechny, kteří hledají pohodlné rodinné bydlení. Doprava do centra města je zajištěna prostřednictvím městské hromadné dopravy, v pěší vzdálenosti zastávka autobusů. V případě zájmu o prohlídku nás neváhejte kontaktovat i přes víkend.

Makléř

Máte zájem o tento byt?

Tímto, v souladu s nařízením Evropského parlamentu a Rady (EU) 2016/679, v platném znění, prohlašuji, že mi je alespoň 16 let a uděluji tak svůj souhlas se zpracováním zadaných údajů (jméno, telefon, e-mail, ip adresa) společnosti B3 Technology, s.r.o., IČ: 07330600, se sídlem Novostavby 126/23, 435 11 Lom (správce dat), za účelem předání dotazu z tohoto formuláře Vámi vybranému inzerentovi a zpětného kontaktování mé osoby. Osobní údaje bude správce zpracovávat manuálně i automaticky přímo prostřednictvím svých zaměstnanců. Informace předané tímto formulářem budou uloženy v databázi správce maximálně po dobu 10 let. Odvolání souhlasu s uložením a zpracováním poskytnutých dat lze e-mailem na info@origo-reality.cz. V případě podezření na neoprávněné použití Vámi poskytnutých údajů máte právo předat podnět k šetření Úřadu pro ochranu osobních údajů. Více informací
Chystáte se prodat nemovitost?
Pomůžeme Vám!

Přihlášení k odběru

Nenechte si ujít nejnovější nabídky prodeje bytů 3+1 v Praze 4.