Prodej bytu 3+kk, Vracov, 65 m2 (ID: 1744747)

Vracov

4 725 000 Kč
/za nemovitost
Hypotéka od 21 118 Kč /měs. Chci hypotéku

Parametry bytu

AdresaVracov
ID1N25002-D
StavbaSmíšená
Stav objektuNovostavba
Patro1.
Typ objektuPřízemní
Lokalita objektuKlidná část obce
VlastnictvíOsobní
Užitná plocha65 m2
Podlahová plocha65 m2
Třída energetické náročnostiD - Méně úsporná
Elektřina230V
KomunikaceAsfaltová
DopravaSilnice, Autobus
VodaMístní zdroj vody
Topné tělesoRadiátory, Infrapanel
Výtah
Bezbarierový přístup
Parkování

Origo partneři v Vracově

Popis

Nabízíme Vám novou nemovitost na prodej.
Jedná se výstavbu přízemních bytové jednotky na klíč.
Byt se nachází ve Vracově, leží v rovinaté krajině mezi Strážnicí a Kyjovem v okrese Hodonín v Jihomoravském kraji, ležící osm kilometrů jihovýchodně od Kyjova, ve vinařské oblasti Slovácka.
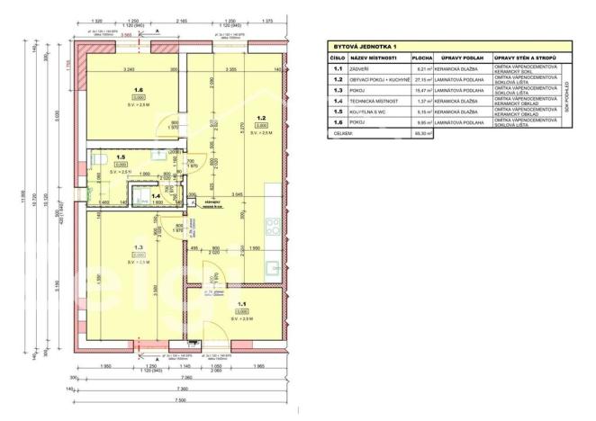
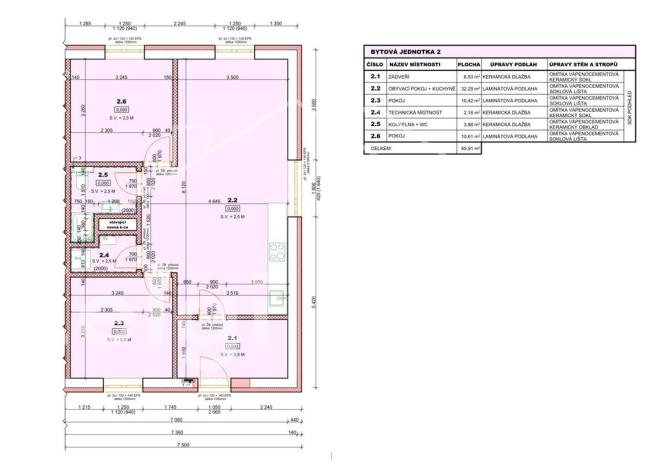
Tento byt vystavený z materiálů cihel a ytongu, mají dispozici 3+kk a celkovou plochu 65 m2. K nemovitosti se vyřizuje i pozemek vhodný k výstavbě pergoly či posezení.
Jelikož se jedná o bytový dům tak bude nový majitel vlastnit podíl na budově samotné.
Rozložení a dispozice nemovitosti jsou popsány ve vizualizacích a půdorysech:
Byt sestává ze vstupní chodby, ze které je vstup do obývacího pokoje s kuchyňským koutem, koupelny se sprchovým koutem a wc, technické místnosti a 2 prostorných pokojů situovaných jako ložnice.
Konkrétnější představu a inspiraci pro vybavení nemovitosti lze získat z vizualizací.
Energetická náročnost budovy je v kategorii D.
Byt je možné doupravit podle představ klienta, stejně tak i úprava pozemku na míru.
K bytu náleží i dostatek prostoru k zaparkování i 4 aut.
Byt je k nastěhování od 1.1.2026.
Byt se nachází v klidné lokalitě s dobrou dostupností, veřejnou příměstskou dopravou a blízkostí veškeré občanské vybavenosti jako jsou restaurace, školka i škola, kulturní zařízení a obecní úřad.
S financováním Vám rádi pomůžeme.
Pro více informací či domluvení schůzky nás kontaktujte.

Makléř

Máte zájem o tento byt?

Tímto, v souladu s nařízením Evropského parlamentu a Rady (EU) 2016/679, v platném znění, prohlašuji, že mi je alespoň 16 let a uděluji tak svůj souhlas se zpracováním zadaných údajů (jméno, telefon, e-mail, ip adresa) společnosti B3 Technology, s.r.o., IČ: 07330600, se sídlem Novostavby 126/23, 435 11 Lom (správce dat), za účelem předání dotazu z tohoto formuláře Vámi vybranému inzerentovi a zpětného kontaktování mé osoby. Osobní údaje bude správce zpracovávat manuálně i automaticky přímo prostřednictvím svých zaměstnanců. Informace předané tímto formulářem budou uloženy v databázi správce maximálně po dobu 10 let. Odvolání souhlasu s uložením a zpracováním poskytnutých dat lze e-mailem na info@origo-reality.cz. V případě podezření na neoprávněné použití Vámi poskytnutých údajů máte právo předat podnět k šetření Úřadu pro ochranu osobních údajů. Více informací
Chystáte se prodat nemovitost?
Pomůžeme Vám!

Přihlášení k odběru

Nenechte si ujít nejnovější nabídky prodeje bytů 3+kk v Vracově.