Prodej bytu 2+1, Strážnice, Smetanova, 52 m2

Smetanova, Strážnice

3 180 000 Kč
/za nemovitost
Hypotéka od 14 213 Kč /měs. Chci hypotéku

Parametry bytu

AdresaSmetanova, Strážnice
ID153
StavbaCihlová
Stav objektuDobrý
Patro1. z 3
VybavenoČástečně
Druh objektuŘadový
Lokalita objektuKlidná část obce
VlastnictvíOsobní
Užitná plocha52 m2
OdpadVeřejná kanalizace
TopeníLokální plynové
KomunikaceAsfaltová
VodaMístní zdroj vody
Výtah
Bezbarierový přístup

Origo partneři v Strážnici

Popis

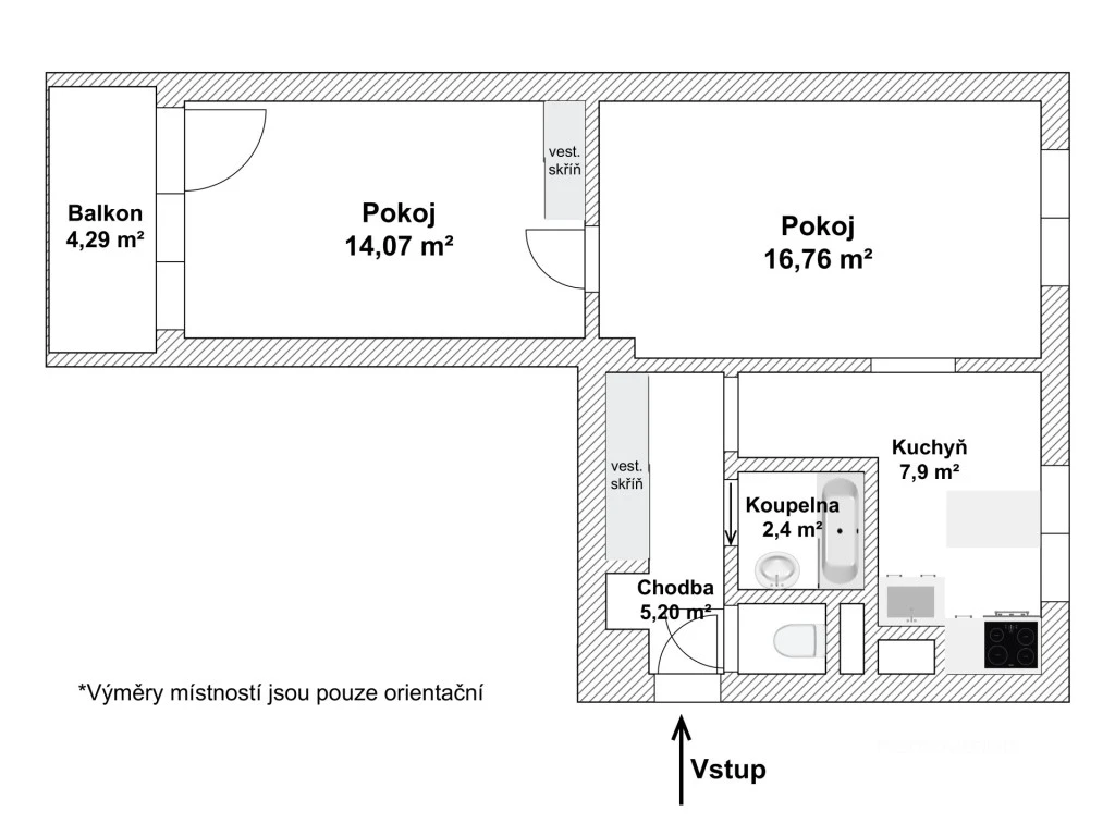
Hledáte bydlení v klidné části Strážnice, a přitom chcete mít vše na dosah? Tento byt o dispozici 2+1 s balkonem vás osloví svou praktičností, útulnou atmosférou i skvělou polohou.

Nachází se v 1. patře bytového domu a hned při vstupu vás přivítá prostorná chodba s vestavěnou skříní, která nabízí dostatek úložného prostoru. Koupelna a toaleta jsou samostatné, což oceníte v každodenním provozu.
Kuchyně je chytře řešená tak, aby vše bylo po ruce, a navazuje na dva průchozí pokoje, které si můžete snadno přizpůsobit svým potřebám – například na obývací pokoj a ložnici.

K bytu náleží dva prostorné sklepy a nové, zvětšené balkony, které poskytují příjemné místo k posezení – ideální na ranní kávu nebo večerní skleničku vína.

Bytový dům se nachází v tiché lokalitě s příjemným okolím, za domem najdete dětské hřiště a v pěší vzdálenosti je náměstí, obchody i park.

Strážnice je město s jedinečnou atmosférou, obklopené přírodou, vinohrady a cyklostezkami. Místo, kde se snoubí klidné bydlení s aktivním životním stylem.

Pokud vás tento byt zaujal, ráda vás provedu osobně.
Těším se na setkání
Jana Kutná, realitní makléřka

Makléř

Máte zájem o tento byt?

Tímto, v souladu s nařízením Evropského parlamentu a Rady (EU) 2016/679, v platném znění, prohlašuji, že mi je alespoň 16 let a uděluji tak svůj souhlas se zpracováním zadaných údajů (jméno, telefon, e-mail, ip adresa) společnosti B3 Technology, s.r.o., IČ: 07330600, se sídlem Novostavby 126/23, 435 11 Lom (správce dat), za účelem předání dotazu z tohoto formuláře Vámi vybranému inzerentovi a zpětného kontaktování mé osoby. Osobní údaje bude správce zpracovávat manuálně i automaticky přímo prostřednictvím svých zaměstnanců. Informace předané tímto formulářem budou uloženy v databázi správce maximálně po dobu 10 let. Odvolání souhlasu s uložením a zpracováním poskytnutých dat lze e-mailem na info@origo-reality.cz. V případě podezření na neoprávněné použití Vámi poskytnutých údajů máte právo předat podnět k šetření Úřadu pro ochranu osobních údajů. Více informací
Chystáte se prodat nemovitost?
Pomůžeme Vám!

Přihlášení k odběru

Nenechte si ujít nejnovější nabídky prodeje bytů 2+1 v Strážnici.