Prodej bytu 3+kk, Praha - Karlín, Prvního pluku, 128 m2

Prvního pluku, Praha, Karlín

33 900 000 Kč
/za nemovitost
včetně poplatků, včetně provize, včetně právního servisu, cena k jednání
Hypotéka od 151 512 Kč /měs. Chci hypotéku

Parametry bytu

AdresaPrvního pluku, Praha, Karlín
ID28039-1
StavbaCihlová
Stav objektuVelmi dobrý
Patro4. z 4
VybavenoAno
Lokalita objektuCentrum obce
VlastnictvíOsobní
Užitná plocha128 m2
Podlahová plocha138 m2
Plocha zahrady10 m2
Třída energetické náročnostiC - Úsporná
Ukazatel energetické náročnosti102 kWh/m2 za rok
Elektřina230V
OdpadVeřejná kanalizace
KomunikaceAsfaltová
TelekomunikaceInternet, Kabelové rozvody
DopravaVlak, MHD, Autobus
VodaVodovod
Topné tělesoPodlahové vytápění, Klimatizace
Zdroj topeníTepelné čerpadlo
Zdroj teplé vodyBojler - elektro
Sklep
Terasa

Origo partneři v Praze 8

Stěhovací služby

Výkup a prodej starého nábytku

Pojištění a finance

Popis

Nadčasový styl a špičkový design v srdci Karlína

Hledáte výjimečné bydlení, které spojuje historický kontext s moderním komfortem a estetickým zážitkem?
Tento exkluzivní byt 3+kk v samém srdci Karlína je určen pro ty, kteří touží po kvalitě, osobitosti a stylu. Rekonstrukce interiéru proběhla pod vedením architekta Petra Jančálka, jenž citlivě propojil historické prvky s moderními materiály a technologiemi. Výsledkem je harmonický prostor, který působí jako funkční umělecké dílo.

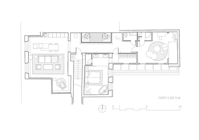
Dispozice zahrnuje prostorný obývací pokoj o rozloze 44 m² s kuchyňským koutem, hlavní ložnici a druhý pokoj vhodný jako pracovna či pokoj pro hosty. Součástí je kuchyňská linka na míru se spotřebiči Gaggenau a dvě koupelny s použitím mramoru a přírodního kamene. K bytu náleží sklepní kóje (cca 1,5 m²). Byt je vybaven moderními prvky – bezrámovými posuvnými dveřmi do privátního atria (10 m²), polyuretanovými stěrkami, klimatizací a dřevěnými okny s trojskly v replikách původního stylu. Výhled na ikonický Negrelliho viadukt a ručně restaurované trámy dotvářejí výjimečnou atmosféru. Atrium se zelení zajišťuje přirozené světlo po celý den a dodává bytu propojení s přírodou.

Interiér je vybaven kurátorsky sestavenou kolekcí současného umění, která ladí s architekturou bytu. Zastoupeni jsou umělci jako Vojtěch Hrubant (Vlčice, Romulus a Remus), Vojtěch Trocha (Betonový kaktus, dřevěná plastika), Nicolas Makelberge (Night Lights II, triptych Gradients, Color Studies), a Visual Narrative (The MET, New York).

Nábytek pochází od špičkových evropských značek. Sedací soupravy Maxalto a Natuzzi, lampa Superloon od FLOS, ikonická židle S-Chair od Cappellini a stolek Artistico s mosaznou podnoží. V ložnici postel Fenice a limitovaný koberec Queensilk Low, v pracovně stolek Vanity s mramorovým dekorem.

Dům prochází postupnou rekonstrukcí, jejíž součástí bude i plánovaná instalace výtahu. Karlín nabízí ideální kombinaci městského života, kulturní atmosféry, zeleně a klidu. V bezprostředním okolí najdete vyhlášené restaurace, kavárny, galerie i parky, a to vše s vynikající dostupností do centra města.

Hledáte-li domov s příběhem, charakterem a estetickou hloubkou, neváhejte nás kontaktovat pro více informací nebo osobní prohlídku.

Makléř

Máte zájem o tento byt?

Tímto, v souladu s nařízením Evropského parlamentu a Rady (EU) 2016/679, v platném znění, prohlašuji, že mi je alespoň 16 let a uděluji tak svůj souhlas se zpracováním zadaných údajů (jméno, telefon, e-mail, ip adresa) společnosti B3 Technology, s.r.o., IČ: 07330600, se sídlem Novostavby 126/23, 435 11 Lom (správce dat), za účelem předání dotazu z tohoto formuláře Vámi vybranému inzerentovi a zpětného kontaktování mé osoby. Osobní údaje bude správce zpracovávat manuálně i automaticky přímo prostřednictvím svých zaměstnanců. Informace předané tímto formulářem budou uloženy v databázi správce maximálně po dobu 10 let. Odvolání souhlasu s uložením a zpracováním poskytnutých dat lze e-mailem na info@origo-reality.cz. V případě podezření na neoprávněné použití Vámi poskytnutých údajů máte právo předat podnět k šetření Úřadu pro ochranu osobních údajů. Více informací
Chystáte se prodat nemovitost?
Pomůžeme Vám!
Theleadway banner

Přihlášení k odběru

Nenechte si ujít nejnovější nabídky prodeje bytů 3+kk v Praze 8.