Pronájem kanceláře, Rokycany - Nové Město, Pivovarská, 1096 m2

Pivovarská, Rokycany, Nové Město

70 000 Kč
/za měsíc
Cena k jednání u RK
Získejte výhodnou HYPOTÉKU Chci hypotéku

Parametry nemovitosti

AdresaPivovarská, Rokycany, Nové Město
ID893892
StavbaCihlová
Stav objektuVelmi dobrý
VybavenoNe
Lokalita objektuKlidná část obce
VlastnictvíOsobní
Užitná plocha1096 m2

Origo partneři v Rokycanech

Podlahy

Stěhovací služby

Popis

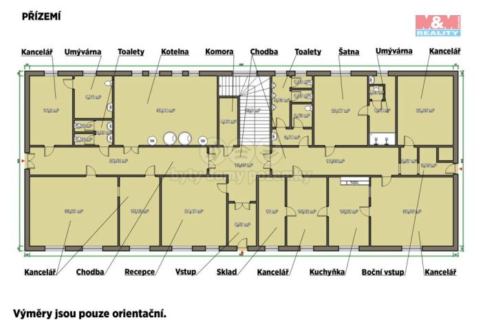
Nabízíme k pronájmu prostorné kancelářské prostory o užitné ploše 1 096 m², nacházející se na Pivovarské ulici v Rokycanech. Prostory zabírají celá tři podlaží budovy. Lze pronajmout i část! Na každém patře je k dispozici kuchyňka a toalety, což zajišťuje pohodlné zázemí pro zaměstnance i návštěvníky.
Vytápění budovy je řešeno plynovým kotlem. K pronájmu náleží také několik parkovacích míst přímo před budovou, což výrazně usnadňuje parkování jak pro nájemce, tak pro jejich klienty.
Měsíční nájemné činí 70 000 Kč. K této částce se hradí zálohy na služby a energie. Je požadována vratná kauce a provize realitní kanceláři, obojí ve výši jednoho měsíčního nájmu.
Budovu je také možné odkoupit. Pro podrobnosti nebo sjednání prohlídky nás neváhejte kontaktovat.

Makléř

Máte zájem o tuto nemovistost?

Tímto, v souladu s nařízením Evropského parlamentu a Rady (EU) 2016/679, v platném znění, prohlašuji, že mi je alespoň 16 let a uděluji tak svůj souhlas se zpracováním zadaných údajů (jméno, telefon, e-mail, ip adresa) společnosti B3 Technology, s.r.o., IČ: 07330600, se sídlem Novostavby 126/23, 435 11 Lom (správce dat), za účelem předání dotazu z tohoto formuláře Vámi vybranému inzerentovi a zpětného kontaktování mé osoby. Osobní údaje bude správce zpracovávat manuálně i automaticky přímo prostřednictvím svých zaměstnanců. Informace předané tímto formulářem budou uloženy v databázi správce maximálně po dobu 10 let. Odvolání souhlasu s uložením a zpracováním poskytnutých dat lze e-mailem na info@origo-reality.cz. V případě podezření na neoprávněné použití Vámi poskytnutých údajů máte právo předat podnět k šetření Úřadu pro ochranu osobních údajů. Více informací
Chystáte se prodat nemovitost?
Pomůžeme Vám!

Přihlášení k odběru

Nenechte si ujít nejnovější nabídky pronájmu kanceláří v Rokycanech.