Prodej bytu 3+kk, Olomouc, Loudova, 88 m2 (ID: 1148930)

Loudova, Olomouc

7 971 000 Kč
/za nemovitost
včetně provize
Hypotéka od 35 626 Kč /měs. Chci hypotéku

Parametry bytu

AdresaLoudova, Olomouc
ID00474
StavbaCihlová
Stav objektuNovostavba
Patro2. z 5
Lokalita objektuKlidná část obce
VlastnictvíOsobní
Užitná plocha84 m2
Podlahová plocha88 m2
Třída energetické náročnostiB - Velmi úsporná
Ukazatel energetické náročnosti143 kWh/m2 za rok
Balkon
Výtah
Bezbarierový přístup

Origo partneři v Olomouci

Popis

Využijte jedinečného způsobu financování v projektu.
Z pověření developera Vám realitní kancelář ALLE reality&development s.r.o. v exkluzivním zastoupení nabízí již IV. etapu úspěšného Projektu Slavonínské zahrady, jež navazuje prodejem – budovy H. Projekt umožňuje svým rezidentům dostupné bydlení v příjemné a klidné lokalitě města Olomouce.
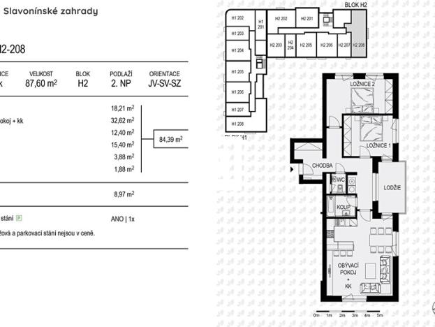
Byt H2-208 o dispozici 3+kk má podlahovou plochu 87,6 m2, balkon o velikosti 8,97 m2 a nachází se ve 2NP bytového domu s nízkým počtem bytových jednotek.
Velkou předností lokality je dostatek zeleně, odpočinková zóna kolem přírodního rybníku Hamrys, cyklistická stezka, to vše pro čas odpočinku. Skvělá občanská vybavenost, vynikající dostupnost MHD včetně nově prodloužené tramvajové tratě, a bezproblémový výjezd na dálnici naopak usnadní pracovní část dne.
Vysoký komfort bydlení je zajištěn moderním standardním vybavením: podlahové vytápění po celé ploše jednotek, obložkové zárubně, vinylové podlahy, keramické obklady - vše dle volby klienta. Garážová stání a komory k dokoupení jsou samozřejmostí. Vyberte si své vysněné bydlení včas!
Klient hradí nad rámec kupní ceny poplatek za právní a administrativní servis.

Makléř

Máte zájem o tento byt?

Tímto, v souladu s nařízením Evropského parlamentu a Rady (EU) 2016/679, v platném znění, prohlašuji, že mi je alespoň 16 let a uděluji tak svůj souhlas se zpracováním zadaných údajů (jméno, telefon, e-mail, ip adresa) společnosti B3 Technology, s.r.o., IČ: 07330600, se sídlem Novostavby 126/23, 435 11 Lom (správce dat), za účelem předání dotazu z tohoto formuláře Vámi vybranému inzerentovi a zpětného kontaktování mé osoby. Osobní údaje bude správce zpracovávat manuálně i automaticky přímo prostřednictvím svých zaměstnanců. Informace předané tímto formulářem budou uloženy v databázi správce maximálně po dobu 10 let. Odvolání souhlasu s uložením a zpracováním poskytnutých dat lze e-mailem na info@origo-reality.cz. V případě podezření na neoprávněné použití Vámi poskytnutých údajů máte právo předat podnět k šetření Úřadu pro ochranu osobních údajů. Více informací
Chystáte se prodat nemovitost?
Pomůžeme Vám!

Přihlášení k odběru

Nenechte si ujít nejnovější nabídky prodeje bytů 3+kk v Olomouci.