Prodej skladu, Havlíčkův Brod, Humpolecká, 1601 m2 (ID: 917578)

Humpolecká, Havlíčkův Brod

19 990 000 Kč
/za nemovitost
Hypotéka od 89 343 Kč /měs. Chci hypotéku

Parametry nemovitosti

AdresaHumpolecká, Havlíčkův Brod
ID24237
StavbaCihlová
Stav objektuDobrý
Typ objektuPatrový
Lokalita objektuOkraj obce
Užitná plocha1601 m2
Zastavěná plocha655 m2
Plocha pozemku7592 m2
Třída energetické náročnostiG - Mimořádně nehospodárná
Ukazatel energetické náročnosti300 kWh/m2 za rok
TopeníJiné
Parkování

Origo partneři v Havlíčkově Brodě

Popis

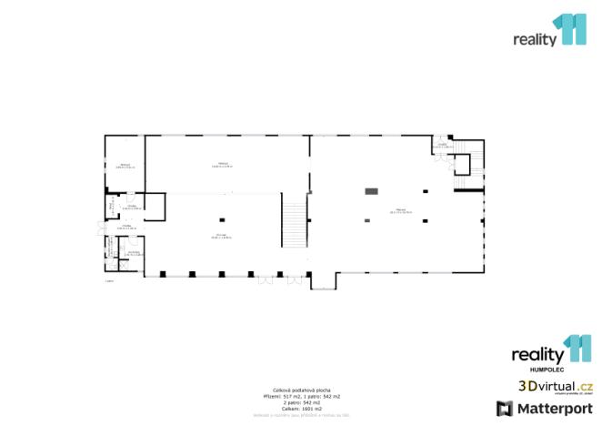
Reality 11 Vám zprostředkují koupi komerční budovy včetně pozemku ke komerční výstavbě o celkové ploše 7.592m². Jedná se o třípodlažní budovu s celkovou užitnou plochou 1601m², s tím, že 1.PP má užitnou plochu 517m², 1.NP má užitnou plochu 542m², 2.NP má užitnou plochu 542m². Stavba byla v minulosti využívána pro vojenské účely v areálu havlíčkobrodských kasáren, aktuálně je využívána ke skladování zboží. Je více možností dalšího komerčního využití a dále možnost výstavby skladovací, výrobní haly na pozemku, který je v územním plánu určen jako plocha VD - plocha výroby a skladování - drobná a řemeslná výroba. Hlavní využití území: malovýroba, řemeslná či přidružená výroba, výrobní i nevýrobní služby, plochy pro malé a střední formy podnikání. Přípustné využití: skladování pro potřeby výroby, podniková administrativa, obchodní zařízení do 2000 m² hrubé podlažní plochy, služební byty správců objektů či nezbytného technického personálu, zařízení a infrastruktura pro průmyslový výzkum, vývoj a inovace ve vazbě na výrobu (více zašleme). Koeficient zastavení pozemku 60. Komerční zóna se nachází na okraji Města Havlíčkův Brod s příjezdem z ulice Humpolecká, dostupnost dálnice D1 velmi dobrá (exit D90 Humpolec je vzdálen 20km). K dispozici pro vás máme půdorysy objektu a dále také 3Dvirtuální prohlídku od společnosti 3Dvirtualcz, kde si objekt můžete projít z pohodlí své kanceláře, svého domova. V případě zájmu o více informací kontaktujte makléře společnosti. Ev. číslo: 24237.

Makléř

Máte zájem o tuto nemovistost?

Tímto, v souladu s nařízením Evropského parlamentu a Rady (EU) 2016/679, v platném znění, prohlašuji, že mi je alespoň 16 let a uděluji tak svůj souhlas se zpracováním zadaných údajů (jméno, telefon, e-mail, ip adresa) společnosti B3 Technology, s.r.o., IČ: 07330600, se sídlem Novostavby 126/23, 435 11 Lom (správce dat), za účelem předání dotazu z tohoto formuláře Vámi vybranému inzerentovi a zpětného kontaktování mé osoby. Osobní údaje bude správce zpracovávat manuálně i automaticky přímo prostřednictvím svých zaměstnanců. Informace předané tímto formulářem budou uloženy v databázi správce maximálně po dobu 10 let. Odvolání souhlasu s uložením a zpracováním poskytnutých dat lze e-mailem na info@origo-reality.cz. V případě podezření na neoprávněné použití Vámi poskytnutých údajů máte právo předat podnět k šetření Úřadu pro ochranu osobních údajů. Více informací
Chystáte se prodat nemovitost?
Pomůžeme Vám!

Přihlášení k odběru

Nenechte si ujít nejnovější nabídky prodeje skladů v Havlíčkově Brodě.