Pronájem obchodního prostoru, Ostrava, Denisova, 530 m2

Denisova, Ostrava

100 000 Kč
/za měsíc
Kauce ve výši dvou nájmů
Získejte výhodnou HYPOTÉKU Chci hypotéku

Parametry nemovitosti

AdresaDenisova, Ostrava
ID135512
StavbaCihlová
Stav objektuDobrý
Typ objektuPatrový
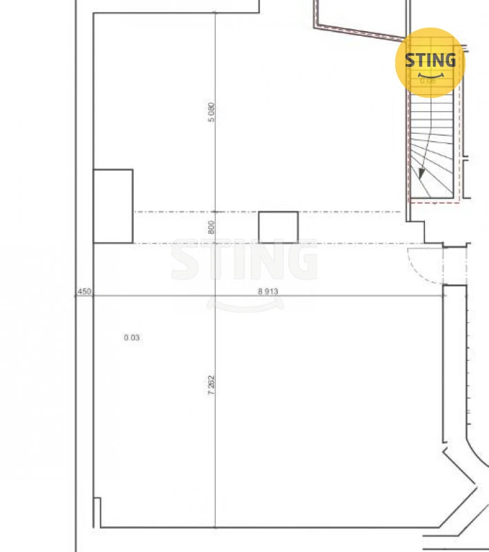
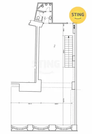
Užitná plocha530 m2

Origo partneři v Ostravě

Popis

Nabízíme k pronájmu komerční prostory o velikosti cca 530 m2 nacházející se v centru Ostravy na ulici Denisova.
Prostory se nachází v přízemí, suterénu a prvním patře a aktuálně jsou využívány jako fitness studio, čemuž odpovídá i jejich současný stav (viz přiložené fotografie). Součástí inzerátu jsou také vizualizace vyklizených prostorů, které ukazují jejich potenciál pro jiné využití.
Dispozičně se jedná o otevřený prostor s možností variabilního řešení. Prostory jsou vhodné například pro:
obchodní plochy vhodné pro prodejnu, kavárnu, obchodní činnost nebo jiné podnikatelské aktivity.
Velkou výhodou je dostatek denního světla a otevřený výhled do okolí, který dodává prostoru vzdušnost.
Prostory se nachází v atraktivní lokalitě s výbornou dostupností – v bezprostřední blízkosti je jeden z největších dopravních uzlů v Ostravě (tramvaj, trolejbus, autobus i vlak), což umožňuje rychlé spojení po celém městě.
V docházkové vzdálenosti se nachází Nová Karolina office park, úřady, banky, obchody, hotel Imperial, business inkubátor Ostravice i další občanská vybavenost.
Parkování je možné formou rezidentního parkování, případně v okolí (např. Karolina).
Nájemné: 100 000 Kč / měsíc (holý nájem)
Kauce: ve výši dvou nájmů
Dostupnost: dle dohody

Makléř

Máte zájem o tuto nemovistost?

Tímto, v souladu s nařízením Evropského parlamentu a Rady (EU) 2016/679, v platném znění, prohlašuji, že mi je alespoň 16 let a uděluji tak svůj souhlas se zpracováním zadaných údajů (jméno, telefon, e-mail, ip adresa) společnosti B3 Technology, s.r.o., IČ: 07330600, se sídlem Novostavby 126/23, 435 11 Lom (správce dat), za účelem předání dotazu z tohoto formuláře Vámi vybranému inzerentovi a zpětného kontaktování mé osoby. Osobní údaje bude správce zpracovávat manuálně i automaticky přímo prostřednictvím svých zaměstnanců. Informace předané tímto formulářem budou uloženy v databázi správce maximálně po dobu 10 let. Odvolání souhlasu s uložením a zpracováním poskytnutých dat lze e-mailem na info@origo-reality.cz. V případě podezření na neoprávněné použití Vámi poskytnutých údajů máte právo předat podnět k šetření Úřadu pro ochranu osobních údajů. Více informací
Chystáte se prodat nemovitost?
Pomůžeme Vám!