Prodej bytu 4+1, Plzeň, Sokolovská, 83 m2

Sokolovská, Plzeň 1

5 990 000 Kč
/za nemovitost
Hypotéka od 26 772 Kč /měs. Chci hypotéku

Parametry bytu

AdresaSokolovská, Plzeň 1
ID0499
StavbaPanelová
Stav objektuPřed rekonstrukcí
Patro1. z 9
VybavenoNe
Lokalita objektuKlidná část obce
VlastnictvíOsobní
Užitná plocha83 m2
Podlahová plocha83 m2
Třída energetické náročnostiB - Velmi úsporná
Elektřina230V
PlynPlynovod
OdpadVeřejná kanalizace
KomunikaceAsfaltová
TelekomunikaceInternet
VodaVodovod
Sklep
Výtah

Origo partneři v Plzni

Stěhovací služby

Popis

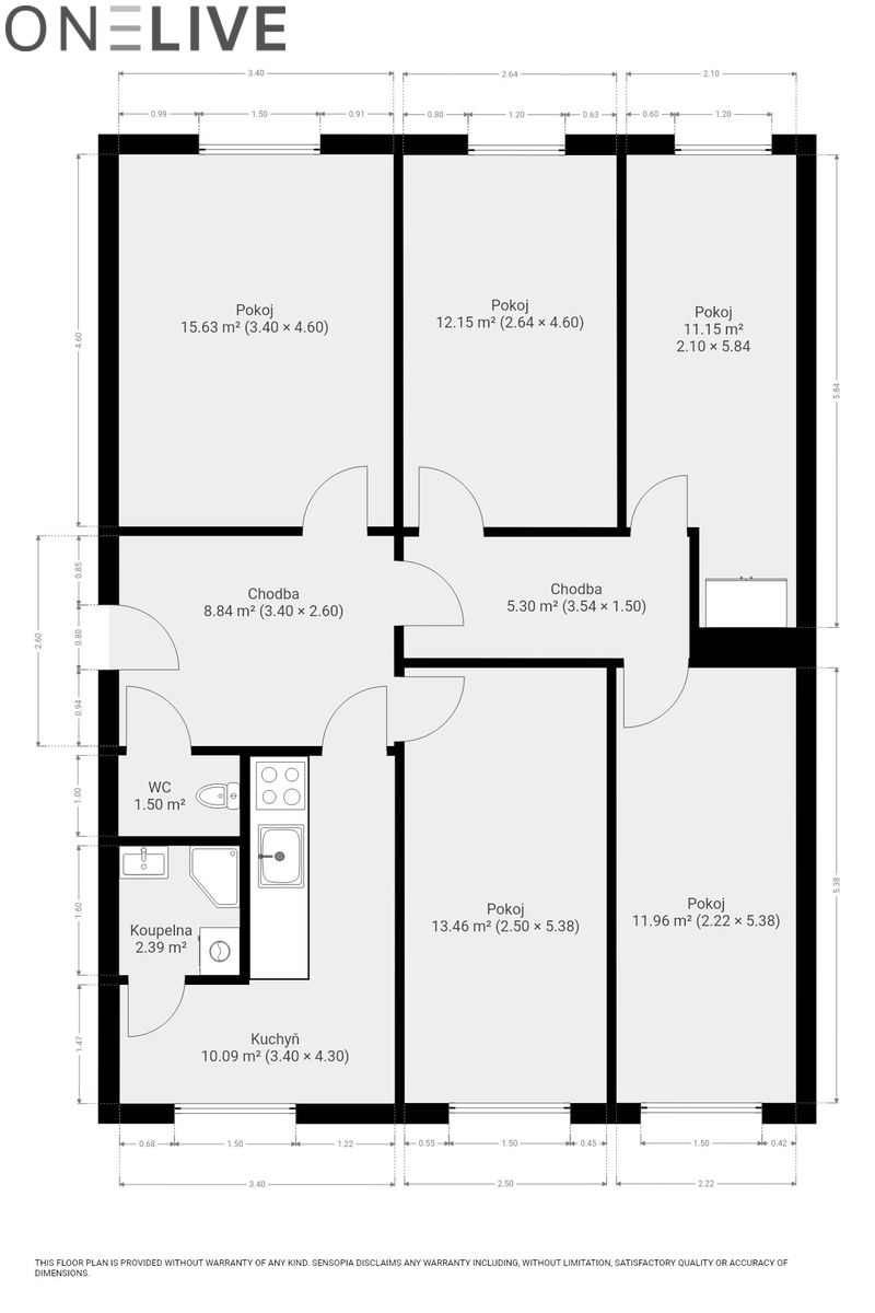
Nabízíme k prodeji prostorný byt o původní dispozici 4+1, který byl praktickou úpravou přestavěn na 5+1. Bytová jednotka se nachází v přízemí panelového domu v žádané lokalitě Plzně, ulice Sokolovská. Díky své variabilitě a velikosti představuje ideální příležitost jak pro investory (např. za účelem studentského bydlení), tak pro rodinné bydlení s důrazem na prostor a soukromí.

Byt je převážně v původním stavu, což umožňuje novému majiteli realizaci rekonstrukce dle vlastních představ a standardů. Výjimkou je koupelna, která v minulosti prošla částečnou úpravou. Je zde ústřední topení, plyn je zaveden pouze pro vaření. Okna jsou plastová. Internetové připojení je dostupné například prostřednictvím sítě PilsFree.

Elektroinstalace je v původním stavu. Rozvody vody jsou původní, s plánovanou modernizací.

Dispoziční řešení bytu nabízí vysokou míru praktičnosti: ze vstupní předsíně je přístup do kuchyně, dvou samostatných pokojů a na oddělené WC. Dále byt disponuje koupelnou se sprchovým koutem a třemi dalšími neprůchozími pokoji.

K bytu náleží sklepní kóje. Dům prošel částečnou revitalizací – střecha byla rekonstruována v roce 2011, fasáda a výtah byly modernizovány na přelomu let 2006–2007.

Lokalita Plzeň – Bolevec, ulice Sokolovská, nabízí kompletní občanskou vybavenost v docházkové vzdálenosti. V okolí se nachází mateřské i základní školy, obchody, obchodní centrum, pošta, lékárna i zdravotnická zařízení. Samozřejmostí je výborná dostupnost MHD s rychlým spojením do centra města. Parkovaní je možné v okolních ulicích domu. Velkou výhodou je také blízkost přírody a Boleveckých rybníků, které poskytují ideální podmínky pro relaxaci i volnočasové aktivity.

Pro více informací či sjednání prohlídky nás neváhejte kontaktovat.

Makléř

Máte zájem o tento byt?

Tímto, v souladu s nařízením Evropského parlamentu a Rady (EU) 2016/679, v platném znění, prohlašuji, že mi je alespoň 16 let a uděluji tak svůj souhlas se zpracováním zadaných údajů (jméno, telefon, e-mail, ip adresa) společnosti B3 Technology, s.r.o., IČ: 07330600, se sídlem Novostavby 126/23, 435 11 Lom (správce dat), za účelem předání dotazu z tohoto formuláře Vámi vybranému inzerentovi a zpětného kontaktování mé osoby. Osobní údaje bude správce zpracovávat manuálně i automaticky přímo prostřednictvím svých zaměstnanců. Informace předané tímto formulářem budou uloženy v databázi správce maximálně po dobu 10 let. Odvolání souhlasu s uložením a zpracováním poskytnutých dat lze e-mailem na info@origo-reality.cz. V případě podezření na neoprávněné použití Vámi poskytnutých údajů máte právo předat podnět k šetření Úřadu pro ochranu osobních údajů. Více informací
Chystáte se prodat nemovitost?
Pomůžeme Vám!

Přihlášení k odběru

Nenechte si ujít nejnovější nabídky prodeje bytů 4+1 v Plzni.