Pronájem bytu 3+kk, Sušice - Sušice II, Nádražní, 69 m2

Nádražní, Sušice II

10 000 Kč
/za měsíc
+ zálohy na energie (elektřina (odečtová), vodné, stočné, teplo cca 5.000,-Kč/2os.), internet jako pevná složka. Vratná kauce 20.000,-Kč. Provize za služby 9.000,-Kč.
Získejte výhodnou HYPOTÉKU Chci hypotéku

Parametry bytu

AdresaNádražní, Sušice II
IDPR283
StavbaCihlová
Stav objektuVelmi dobrý
Patro3. z 3
VybavenoČástečně
Typ objektuPatrový
Lokalita objektuOkraj obce
VlastnictvíOsobní
Užitná plocha69 m2
Podlahová plocha69 m2
Třída energetické náročnostiG - Mimořádně nehospodárná
Elektřina230V, 400V
OdpadVeřejná kanalizace
TopeníÚstřední tuhá paliva
KomunikaceAsfaltová
TelekomunikaceInternet, Kabelové rozvody
DopravaVlak, Silnice, MHD, Autobus
VodaVodovod
Topné tělesoRadiátory, Kotel na tuhá paliva
Zdroj topeníCentrální dálkové
Zdroj teplé vodyBojler - elektro
Sklep
Výtah
Bezbarierový přístup
Převod do OV
Parkování

Origo partneři v Sušici

Stěhovací služby

Popis

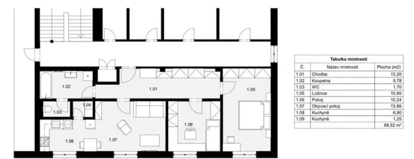
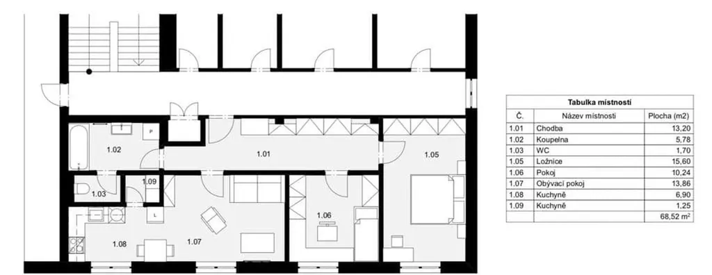
Nabízíme k pronájmu zděný, modernizovaný byt 3+kk (rekonstrukce v roce 2019) v klidném zděném domě na okraji města Sušice. Byt o celkové ploše 68,5 m² se nachází ve 3. NP a jeho největší předností je výborné dispoziční řešení se všemi pokoji neprůchozími, což zajišťuje maximální soukromí pro všechny členy domácnosti.
Vnitřní dispozice: prostorná obývací kuchyně ( 20.76 m²) s moderní linkou a elektrickým sporákem propojená s obývacím prostorem, spíž 1,25m2. Dvě samostatné ložnice (15,6 m² a 10,2 m²). Koupelna 5,79m2 s vanou, umyvadlem, topným žebříkem, připojením k pračce a samostatné WC. K bytu dále náleží komora/sklep v přízemí domu.
Byt se pronajímá nezařízený, připravený k vybavení podle vašeho vkusu.
Vytápění je řešeno centrálně (ústředním topením kotlem na tuhá paliva). El. energie s odečtovými měřiči. Parkování je bezproblémové přímo u domu.
Měsíční platby spojené s užíváním bytu: 10.000,-Kč + zálohy na energie (elektřina (odečtová), vodné, stočné, teplo cca 5.000,-Kč/2os.), internet jako pevná složka. Vratná kauce 20.000,-Kč.
Dům má strategickou polohu – jen 150 m od řeky, ideální na procházky, koupání s nově vybudovaným kempem s občerstvením v letní sezoně a 200 m od nádraží i autobusových spojů. Veškerá občanská vybavenost je v centru Sušice.
PENB ve třídě G. Volné od 1.5.2026.

Makléř

Máte zájem o tento byt?

Tímto, v souladu s nařízením Evropského parlamentu a Rady (EU) 2016/679, v platném znění, prohlašuji, že mi je alespoň 16 let a uděluji tak svůj souhlas se zpracováním zadaných údajů (jméno, telefon, e-mail, ip adresa) společnosti B3 Technology, s.r.o., IČ: 07330600, se sídlem Novostavby 126/23, 435 11 Lom (správce dat), za účelem předání dotazu z tohoto formuláře Vámi vybranému inzerentovi a zpětného kontaktování mé osoby. Osobní údaje bude správce zpracovávat manuálně i automaticky přímo prostřednictvím svých zaměstnanců. Informace předané tímto formulářem budou uloženy v databázi správce maximálně po dobu 10 let. Odvolání souhlasu s uložením a zpracováním poskytnutých dat lze e-mailem na info@origo-reality.cz. V případě podezření na neoprávněné použití Vámi poskytnutých údajů máte právo předat podnět k šetření Úřadu pro ochranu osobních údajů. Více informací
Chystáte se prodat nemovitost?
Pomůžeme Vám!

Přihlášení k odběru

Nenechte si ujít nejnovější nabídky pronájmu bytů 3+kk v Sušici (okr. Klatovy).