Prodej bytu 3+kk, Neratovice, 17. listopadu, 72 m2

17. listopadu, Neratovice

5 900 000 Kč
/za nemovitost
Hypotéka od 26 369 Kč /měs. Chci hypotéku

Parametry bytu

Adresa17. listopadu, Neratovice
StavbaPanelová
Stav objektuVelmi dobrý
Patro6.
VybavenoČástečně
Lokalita objektuSídliště
VlastnictvíDružstevní
Užitná plocha72 m2
Podlahová plocha74 m2
Třída energetické náročnostiC - Úsporná
Ukazatel energetické náročnosti78 kWh/m2 za rok
Elektřina230V
OdpadVeřejná kanalizace
KomunikaceAsfaltová
TelekomunikaceTelefon, Internet, Kabelové rozvody
DopravaVlak, Dálnice, Silnice, MHD, Autobus
VodaVodovod
Topné tělesoRadiátory
Zdroj topeníÚstřední dálkové
Balkon
Sklep
Výtah
Bezbarierový přístup
Převod do OV

Origo partneři v Neratovicích

Popis

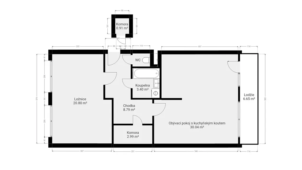
Zrekonstruovaný, družstevní byt 2+kk (původně 3+1), o podlahové ploše 64 m² a celkové ploše 72 m², v 6. patře revitalizovaného panelového domu v Neratovicích.
Vynikající dostupnost MHD směr Praha (30 minut Ládví, do hodiny Masarykovo nádraží), autobusové nádraží v Mělníku do 30 minut.

Obývací pokoj s kuchyňským koutem (27,4 m²) se vstupem na zasklenou lodžii (6 m²), ložnice s jižní orientací (21 m²; tento pokoj lze rozdělit na 2 pokoje s vlastním vstupem), samostatná šatna, koupelna s vanou a oddělené WC.

Při zajištění jinou nemovitostí lze koupi bytu financovat hypotečním úvěrem. Ráda vám pomohu s financováním a vše srozumitelně vysvětlím a zařídím za Vás.

Součástí prodeje je komora na patře a sklepní kóje. Dům je zateplený, má novou střechu, zasklené lodžie a kamerový systém, v domě je k dispozici kolárna a sušárna.

Výborná lokalita s veškerou občanskou vybaveností, parkování přímo před domem.
Měsíční poplatky jsou 4049 Kč + elektřina.

Makléř

Máte zájem o tento byt?

Tímto, v souladu s nařízením Evropského parlamentu a Rady (EU) 2016/679, v platném znění, prohlašuji, že mi je alespoň 16 let a uděluji tak svůj souhlas se zpracováním zadaných údajů (jméno, telefon, e-mail, ip adresa) společnosti B3 Technology, s.r.o., IČ: 07330600, se sídlem Novostavby 126/23, 435 11 Lom (správce dat), za účelem předání dotazu z tohoto formuláře Vámi vybranému inzerentovi a zpětného kontaktování mé osoby. Osobní údaje bude správce zpracovávat manuálně i automaticky přímo prostřednictvím svých zaměstnanců. Informace předané tímto formulářem budou uloženy v databázi správce maximálně po dobu 10 let. Odvolání souhlasu s uložením a zpracováním poskytnutých dat lze e-mailem na info@origo-reality.cz. V případě podezření na neoprávněné použití Vámi poskytnutých údajů máte právo předat podnět k šetření Úřadu pro ochranu osobních údajů. Více informací
Chystáte se prodat nemovitost?
Pomůžeme Vám!

Přihlášení k odběru

Nenechte si ujít nejnovější nabídky prodeje bytů 3+kk v Neratovicích.