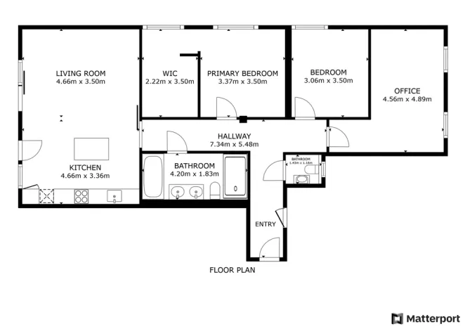
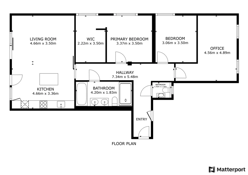
Prodej bytu 4+kk, Zlín, Hřebíčkova, 114 m2 (ID: 2029578)

Hřebíčkova, Zlín

10 390 000 Kč
/za nemovitost
včetně provize, včetně právního servisu
Hypotéka od 46 437 Kč /měs. Chci hypotéku

Parametry bytu

AdresaHřebíčkova, Zlín
ID02723
StavbaCihlová
Stav objektuNovostavba
Patro2. z 4
VybavenoČástečně
Lokalita objektuKlidná část obce
VlastnictvíOsobní
Užitná plocha114 m2
Třída energetické náročnostiB - Velmi úsporná
Ukazatel energetické náročnosti604.7 kWh/m2 za rok
OdpadVeřejná kanalizace
KomunikaceAsfaltová
TelekomunikaceTelefon, Internet, Kabelové rozvody
DopravaDálnice, Silnice, MHD, Autobus
Sklep
Terasa
Výtah
Parkování

Origo partneři v Zlíně

Popis

Hledáte opravdu mimořádný byt, kde se moderní technologie snoubí s elegancí a maximálním komfortem? Mgr. Alice Nováková & Explicit Reality pro vás připravili do posledního detailu vyladěný byt, kde každý centimetr vyzařuje preciznost a vkus.

Tato krásná nemovitost s dispozicí 4+kk a terasou je situovaná ve druhém patře stylové novostavby a nabízí velkorysou plochu 131 m².

Interiér je vybaven luxusními švýcarskými podlahami na míru, které kombinují špičkovou estetiku, odolnost a zdravotní nezávadnost. Pod povrchem se skrývá podlahové vytápění, které poskytuje příjemné teplo a pohodlí po celý rok.

Dominantou bytu je obývací pokoj s francouzskými okny a vstupem na terasu. Nepřehlédnutelným prvkem je luxusní kuchyně na míru značky Nobilia se sedmivrstvým lakem a spotřebiči nejvyšší řady Siemens Studio Line, které zaručují nejen nádherný design, ale i maximální spolehlivost a funkčnost.

Ložnice má svou privátní otevřenou šatnu, která nabízí dostatek úložného prostoru a dokonale se přizpůsobuje potřebám moderního bydlení.

Interiér zdobí bezfalcové dveře Sapeli s magnetickým kováním, které jsou špičkou v interiérovém designu.

Prostorná koupelna je vybavena vanou i sprchovým walk-in koutem.
Pro koupelnové vybavení byla zvolena značka Ravak, doplněná o baterie Grohe.

Díky inteligentní domácnosti můžete jednoduše ovládat osvětlení, okenní žaluzie a i hudbu přes smart systém Alexa. Celý byt je propojen s moderními technologiemi, které zajišťují snadné a pohodlné ovládání vašeho domova na dálku.
Stabilní a rychlý optický internet pak poskytuje ideální připojení pro práci i zábavu.

K bytu náleží dvě parkovací stání před domem a sklep o rozměrech 8m².

Tento byt je dokonalým spojením luxusu, moderních technologií a designu bez kompromisů. Ideální místo pro náročné klienty, kteří hledají něco výjimečného.
Malenovice jsou vynikající lokalitou pro ty, kteří hledají pohodlí a klid s výbornou dostupností do centra Zlína. Tato čtvrť je známá svou strategickou polohou, která nabízí nejen skvělé dopravní spojení, ale také veškeré občanské vybavení na dosah ruky.

Líbí se Vám tato nemovitost?
Na prohlídce se na vás těší Mgr. Alice Nováková & Explicit Reality.

Makléř

Máte zájem o tento byt?

Tímto, v souladu s nařízením Evropského parlamentu a Rady (EU) 2016/679, v platném znění, prohlašuji, že mi je alespoň 16 let a uděluji tak svůj souhlas se zpracováním zadaných údajů (jméno, telefon, e-mail, ip adresa) společnosti B3 Technology, s.r.o., IČ: 07330600, se sídlem Novostavby 126/23, 435 11 Lom (správce dat), za účelem předání dotazu z tohoto formuláře Vámi vybranému inzerentovi a zpětného kontaktování mé osoby. Osobní údaje bude správce zpracovávat manuálně i automaticky přímo prostřednictvím svých zaměstnanců. Informace předané tímto formulářem budou uloženy v databázi správce maximálně po dobu 10 let. Odvolání souhlasu s uložením a zpracováním poskytnutých dat lze e-mailem na info@origo-reality.cz. V případě podezření na neoprávněné použití Vámi poskytnutých údajů máte právo předat podnět k šetření Úřadu pro ochranu osobních údajů. Více informací
Chystáte se prodat nemovitost?
Pomůžeme Vám!

Přihlášení k odběru

Nenechte si ujít nejnovější nabídky prodeje bytů 4+kk v Zlíně.