Prodej bytu 2+kk, Karlovy Vary, Bulharská, 44 m2

Bulharská, Karlovy Vary

3 560 000 Kč
/za nemovitost
Hypotéka od 15 911 Kč /měs. Chci hypotéku

Parametry bytu

AdresaBulharská, Karlovy Vary
ID294-NP01818
StavbaCihlová
Stav objektuV rekonstrukci
Patro3. z 5
VybavenoNe
Lokalita objektuCentrum obce
VlastnictvíOsobní
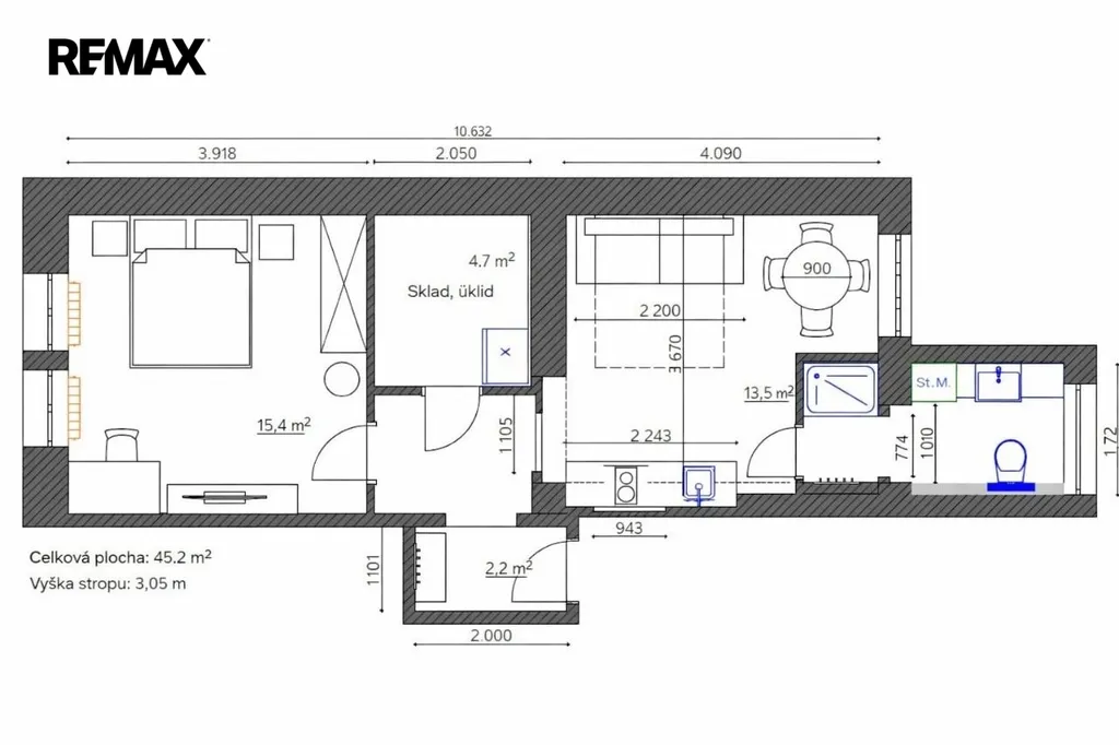
Užitná plocha44 m2
Zastavěná plocha148 m2
Třída energetické náročnostiG - Mimořádně nehospodárná
PlynPlynovod
OdpadVeřejná kanalizace
KomunikaceAsfaltová
DopravaMHD
VodaVodovod

Origo partneři v Karlových Varech

Popis

Bydlení v centru s vysokými stropy a možností vytvořit hodnotu podle vlastních představ.

Nabízíme k prodeji byt 2+kk o velikosti 44 m² v atraktivní lokalitě – ul. Bulharská, Karlovy Vary.

Byt se nachází ve 2. patře (3. NP) a jeho hlavní předností jsou vysoké stropy 3,05 m,
které prostoru dodávají vzdušnost, eleganci a architektonický potenciál.

K bytu náleží praktická komora v mezipatře a výhodou jsou také nová plastová okna.

Stav a potenciál
Nemovitost je připravena k dokončení, což dává novému majiteli plnou kontrolu
nad finálním vzhledem, dispozicí i standardem bydlení.

Oproti běžným bytům zde neplatíte za kompromisy ani staré řešení – vše si nastavíte
moderně, úsporně a přesně podle svých požadavků.

Předpokládané investice do dokončení (bez vybavení) se pohybují cca
550 000 Kč – 900 000 Kč v závislosti na zvoleném standardu a technologiích.

Rádi zajistíme kompletní realizaci rekonstrukce i návrh interiéru dle požadavků klienta.

Investiční i vlastní bydlení
Menší byty v centru Karlových Varů mají dlouhodobě stabilní poptávku a dobrou likviditu.

Nemovitost je vhodná pro:
- dlouhodobý pronájem
- krátkodobý pronájem
- komfortní městské bydlení

Bonusové služby
Zajistíme pro vás - správu pronájmu.

Lokalita
Bulharská ulice patří mezi vyhledávané adresy v Karlových Varech.
V docházkové vzdálenosti najdete veškerou občanskou vybavenost – obchody,
restaurace, služby i centrum města.

Kupujete adresu, prostor a možnost vytvořit si moderní bydlení bez kompromisů.

Pro více informací nebo sjednání prohlídky mě neváhejte kontaktovat. Prodávající si vyhrazuje právo vybrat kupujícího na základě jím zvolených kritérií.

Makléř

Máte zájem o tento byt?

Tímto, v souladu s nařízením Evropského parlamentu a Rady (EU) 2016/679, v platném znění, prohlašuji, že mi je alespoň 16 let a uděluji tak svůj souhlas se zpracováním zadaných údajů (jméno, telefon, e-mail, ip adresa) společnosti B3 Technology, s.r.o., IČ: 07330600, se sídlem Novostavby 126/23, 435 11 Lom (správce dat), za účelem předání dotazu z tohoto formuláře Vámi vybranému inzerentovi a zpětného kontaktování mé osoby. Osobní údaje bude správce zpracovávat manuálně i automaticky přímo prostřednictvím svých zaměstnanců. Informace předané tímto formulářem budou uloženy v databázi správce maximálně po dobu 10 let. Odvolání souhlasu s uložením a zpracováním poskytnutých dat lze e-mailem na info@origo-reality.cz. V případě podezření na neoprávněné použití Vámi poskytnutých údajů máte právo předat podnět k šetření Úřadu pro ochranu osobních údajů. Více informací
Chystáte se prodat nemovitost?
Pomůžeme Vám!

Přihlášení k odběru

Nenechte si ujít nejnovější nabídky prodeje bytů 2+kk v Karlových Varech.