Pronájem bytu 2+kk, Prostějov, 50 m2 (ID: 2025815)

Prostějov

15 500 Kč
/za měsíc
Získejte výhodnou HYPOTÉKU Chci hypotéku

Parametry bytu

AdresaProstějov
ID9771
StavbaCihlová
Stav objektuNovostavba
Patro3. z 5
VybavenoNe
VlastnictvíOsobní
Užitná plocha50 m2
Podlahová plocha60 m2
Třída energetické náročnostiA - Mimořádně úsporná
Elektřina230V
OdpadVeřejná kanalizace
KomunikaceAsfaltová
TelekomunikaceInternet
DopravaSilnice, MHD
VodaVodovod
Topné tělesoRadiátory
Zdroj topeníPlynový kotel, Ústřední dálkové
Zdroj teplé vodyPlynový kotel, Centrální dálkový ohřev
Sklep
Lodžie
Výtah
Parkování

Origo partneři v Prostějově

Popis

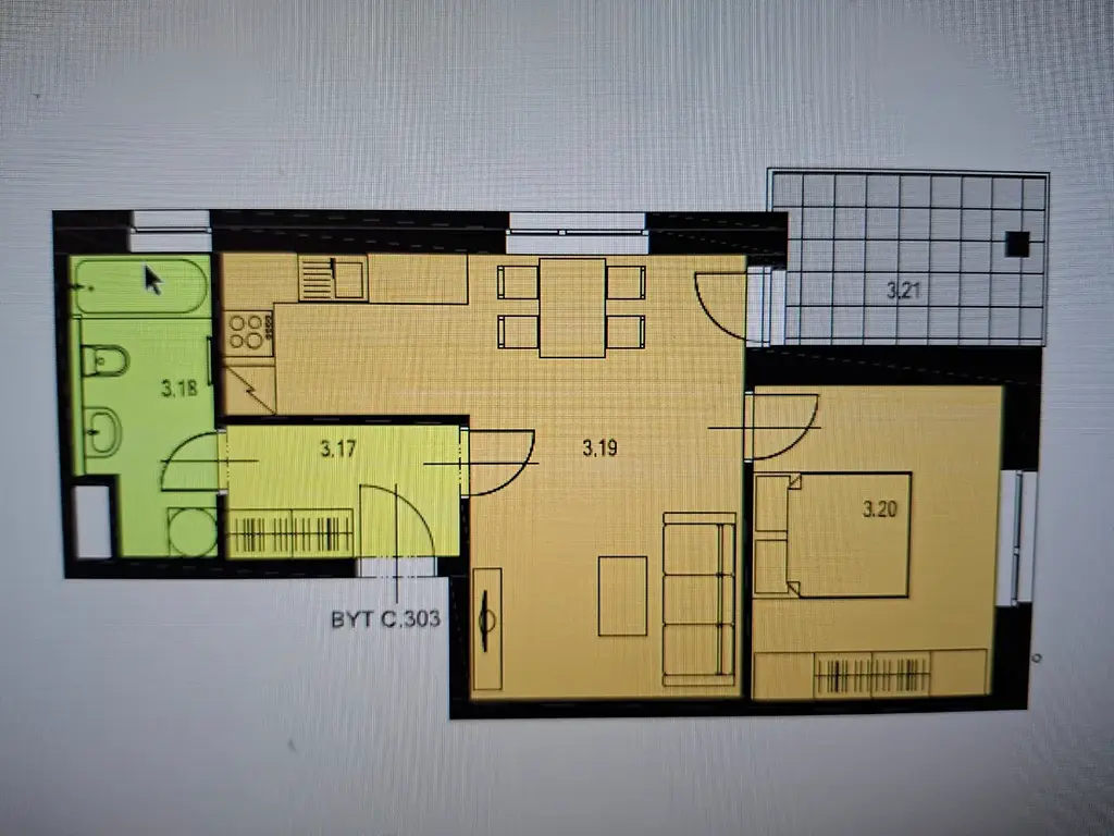
Nabízíme k pronájmu nadstandardní nový byt 2+kk v OV s velkou lodžií, komorou a venkovním parkovacím stáním ve zděném bytovém domě ve vyhledávané lokalitě města Prostějov, ul. J. Sedláčka.
Byt s pěknou dispozicí se nachází ve 3.NP (2.patro) menšího pětipodlažního bytového domu s výtahem a má výměru 59,9 m2 vč. lodžie (6,9 m2) a komory v mezipatře (3,4 m2). Dům byl postaven a zkolaudován v roce 2023, je zděný, s výtahem a parkovacími místy před domem.
V bytě je chodba s věšákovou stěnou a botníkem, pěkná koupelna s vanou se sprchovou zástěnou, umyvadlem se skříňkou, WC, otopným žebříkem (okno, místo pro pračku), útulná ložnice s vestavěnou skříní přes celou hloubku místnosti, světlý obývací pokoj (sestava skříněk) s kuchyňským koutem - moderní kuchyňská linka z kvalitních materiálů na míru s vestavěnými spotřebiči (indukční varná deska, myčka nádobí, elektrická trouba, mikrovlnná trouba, digestoř, LED podsvícené části kuchyně, granitový keramický dřez Franke, baterie Franke). Z obývacího pokoje je přímý vstup na lodžii. Lodžie je osvětlená a je zde zásuvka.
Na podlaze plovoucí podlaha, v koupelně dlažba, plast. okna (trojsklo), plisé roletky, sítě proti hmyzu, garnýže. Vnitřní dveře v provedení lamino, vstupní dveře jsou bezpečnostní. Osvětlení.
Byt se pronajímá prázdný – pouze kuchyňská linka se spotřebiči a vestavěný nábytek v koupelně, ložnici a chodbě, sestava skříněk v obývacím pokoji a osvětlení.
Vytápění a ohřev vody – dálkové, samostatné měřiče energií. Samostatný plynový kotel pro dům. Přípojka internet optika, společná anténa. Rekuperace.
K bytu patří venkovní parkovací místo (za příplatek 1000 Kč/měsíc) a komora v mezipatře domu.
Za domem k využití klidová zóna s posezením.
Byt je světlý a působí vzdušně díky velkým oknům.
Velmi žádaná lokalita k bydlení v pěší vzdálenosti do centra města. V blízkosti bytového domu MHD. V dostupné vzdálenosti je veškeré obč.vybavení (MŠ, ZŠ, lékaři, obchody).
Volné od 1.5.2026. Měs. nájemné 15 500 Kč + zálohy na služby a energie 3 833 Kč, vratná kauce 20 000 Kč, provize RK ve výši 1 měs. nájmu bez energií.
Majitel preferuje 1-2 osoby, bez domácích mazlíčků, nekuřáky, bez zatížení exekucí či insolvencí. Dlouhodobý pronájem.
Kompletní informace o stavu nemovitosti obdržíte u makléře, veškeré uvedené údaje jsou pouze informativní. PENB A.

Makléř

Máte zájem o tento byt?

Tímto, v souladu s nařízením Evropského parlamentu a Rady (EU) 2016/679, v platném znění, prohlašuji, že mi je alespoň 16 let a uděluji tak svůj souhlas se zpracováním zadaných údajů (jméno, telefon, e-mail, ip adresa) společnosti B3 Technology, s.r.o., IČ: 07330600, se sídlem Novostavby 126/23, 435 11 Lom (správce dat), za účelem předání dotazu z tohoto formuláře Vámi vybranému inzerentovi a zpětného kontaktování mé osoby. Osobní údaje bude správce zpracovávat manuálně i automaticky přímo prostřednictvím svých zaměstnanců. Informace předané tímto formulářem budou uloženy v databázi správce maximálně po dobu 10 let. Odvolání souhlasu s uložením a zpracováním poskytnutých dat lze e-mailem na info@origo-reality.cz. V případě podezření na neoprávněné použití Vámi poskytnutých údajů máte právo předat podnět k šetření Úřadu pro ochranu osobních údajů. Více informací
Chystáte se prodat nemovitost?
Pomůžeme Vám!

Přihlášení k odběru

Nenechte si ujít nejnovější nabídky pronájmu bytů 2+kk v Prostějově.