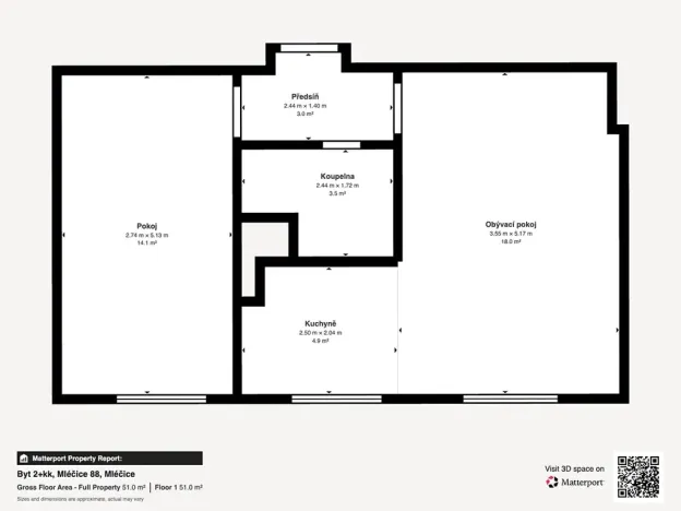
Pronájem bytu 2+kk, Mlečice, 51 m2

Mlečice

9 000 Kč
/za měsíc
Služby, které v BJ jsou: Vodné a stočné - 400 Kč Záloha na teplou vodu - 600 Kč Záloha na teplo - 1 800 Kč
Získejte výhodnou HYPOTÉKU Chci hypotéku

Parametry bytu

Náklady na bydlení2800
AdresaMlečice
StavbaCihlová
Stav objektuVelmi dobrý
Patro2.
VlastnictvíOsobní
Užitná plocha51 m2

Origo partneři v Mlečicích

Stěhovací služby

Popis

Moderní 2+kk po kompletní rekonstrukci – buďte prvními nájemníky!

Nabízíme k pronájmu světlý a vkusně zrekonstruovaný byt o dispozici 2+kk v klidné obci Mléčice (č.p. 88). Byt právě prošel celkovou rekonstrukcí a čeká na svého úplně prvního nájemníka. Pokud hledáte moderní bydlení v čistém prostředí a klidné lokalitě, je tento byt přesně pro vás.

Vybavení a stav bytu:
Stav: Kompletní rekonstrukce (nové podlahy, rozvody, omítky).
Kuchyně: Nová kuchyňská linka.
Koupelna: Moderní koupelna se sprchovým koutem (bude ještě doplněna o nové zrcadlo).
Parkování: Bezproblémové parkování přímo u domu.

Lokalita a dostupnost:
Byt se nachází v klidné části obce s výbornou dostupností do okolních měst:

Plzeň: 40 km (cca 35 min autem)
Praha (Zličín): 60 km (cca 45 min autem po D5)
Rokycany: 20 km (cca 20 min autem)

Měsíční náklady:
Nájemné: 9 000 Kč
Zálohy na služby: 2 800 Kč (rozpis: vodné/stočné 400 Kč, teplá voda 600 Kč, teplo 1 800 Kč)
Elektřina: Přepis na nájemníka
-uvedené zálohy jsou pro 1 osobu, Bytová jednotka má tepelná čerpadla, která zajistí velmi úsporné vytápění v zimních měsících,

Vratná kauce: 27 000 Kč

Byt je volný k nastěhování ihned. Pro více informací nebo domluvení prohlídky mě neváhejte kontaktovat.

Makléř

Máte zájem o tento byt?

Tímto, v souladu s nařízením Evropského parlamentu a Rady (EU) 2016/679, v platném znění, prohlašuji, že mi je alespoň 16 let a uděluji tak svůj souhlas se zpracováním zadaných údajů (jméno, telefon, e-mail, ip adresa) společnosti B3 Technology, s.r.o., IČ: 07330600, se sídlem Novostavby 126/23, 435 11 Lom (správce dat), za účelem předání dotazu z tohoto formuláře Vámi vybranému inzerentovi a zpětného kontaktování mé osoby. Osobní údaje bude správce zpracovávat manuálně i automaticky přímo prostřednictvím svých zaměstnanců. Informace předané tímto formulářem budou uloženy v databázi správce maximálně po dobu 10 let. Odvolání souhlasu s uložením a zpracováním poskytnutých dat lze e-mailem na info@origo-reality.cz. V případě podezření na neoprávněné použití Vámi poskytnutých údajů máte právo předat podnět k šetření Úřadu pro ochranu osobních údajů. Více informací
Chystáte se prodat nemovitost?
Pomůžeme Vám!

Přihlášení k odběru

Nenechte si ujít nejnovější nabídky pronájmu bytů 2+kk v Mlečicích.