Pronájem bytu 4+1, Plzeň, Hálkova, 104 m2

Hálkova, Plzeň 3

Cena na vyžádání
/za měsíc
služby, elektřina a plyn 9.500,-, vratná kauce, poplatek RK
Získejte výhodnou HYPOTÉKU Chci hypotéku

Parametry bytu

AdresaHálkova, Plzeň 3
ID2914
StavbaCihlová
Stav objektuDobrý
Patro5. z 5
VybavenoNe
Lokalita objektuCentrum obce
VlastnictvíOsobní
Užitná plocha104 m2
Třída energetické náročnostiG - Mimořádně nehospodárná

Origo partneři v Plzni

Stěhovací služby

Popis

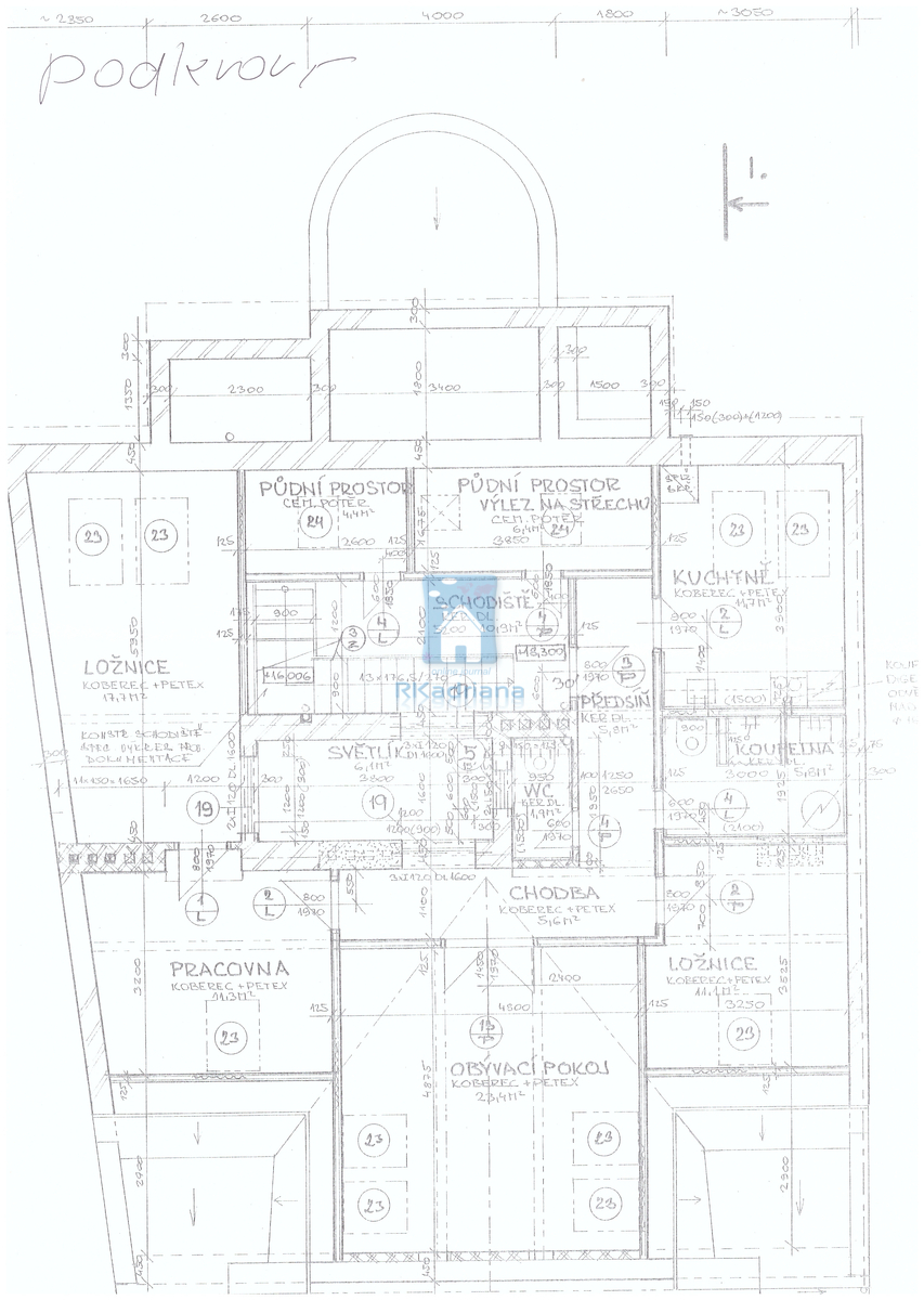
Nabízíme k pronájmu prostorný podkrovní byt o dispozici 4+1 a celkové výměře 107 m², který se nachází v 5. patře budovy s výtahem v ulici Hálkova, Plzeň – Jižní Předměstí.
Nemovitost je vhodná nejen k bydlení, ale také jako kancelářské prostory. V budově je k dispozici recepce, která zajišťuje komfort a reprezentativní zázemí.
K užívání je také příjemný dvorek ve vnitrobloku, ideální pro odpočinek či neformální setkání.
V objektu jsou k dispozici i další prostory o následujících výměrách:
suterén: 21 m²
přízemí: 59,7 m² a 38 m²
patro: 125,7 m²
patro: 125,7 m²
patro: 125,2 m²
patro: 133,4 m² (obsazeno)
patro: 104,3 m²
Majitel si vyhrazuje právo vybrat nájemce a dává přednost zájemcům o dlouhodobý pronájem, kteří prokáží finanční stabilitu a spolehlivost. Více informací rádi poskytneme v realitní kanceláři nebo po telefonu. Prohlídky jsou možné po domluvě.
V případě zájmu o více informací nás neváhejte kontaktovat v naší realitní kanceláři.

Makléř

Máte zájem o tento byt?

Tímto, v souladu s nařízením Evropského parlamentu a Rady (EU) 2016/679, v platném znění, prohlašuji, že mi je alespoň 16 let a uděluji tak svůj souhlas se zpracováním zadaných údajů (jméno, telefon, e-mail, ip adresa) společnosti B3 Technology, s.r.o., IČ: 07330600, se sídlem Novostavby 126/23, 435 11 Lom (správce dat), za účelem předání dotazu z tohoto formuláře Vámi vybranému inzerentovi a zpětného kontaktování mé osoby. Osobní údaje bude správce zpracovávat manuálně i automaticky přímo prostřednictvím svých zaměstnanců. Informace předané tímto formulářem budou uloženy v databázi správce maximálně po dobu 10 let. Odvolání souhlasu s uložením a zpracováním poskytnutých dat lze e-mailem na info@origo-reality.cz. V případě podezření na neoprávněné použití Vámi poskytnutých údajů máte právo předat podnět k šetření Úřadu pro ochranu osobních údajů. Více informací
Chystáte se prodat nemovitost?
Pomůžeme Vám!

Přihlášení k odběru

Nenechte si ujít nejnovější nabídky pronájmu bytů 4+1 v Plzni.